목록으로
최종 업데이트: 2026-04-22 13:21
2025타경6896
서울남부지방법원 본원 4계(02-2192-1334)
부동산
부동산강제경매
유찰
진행중
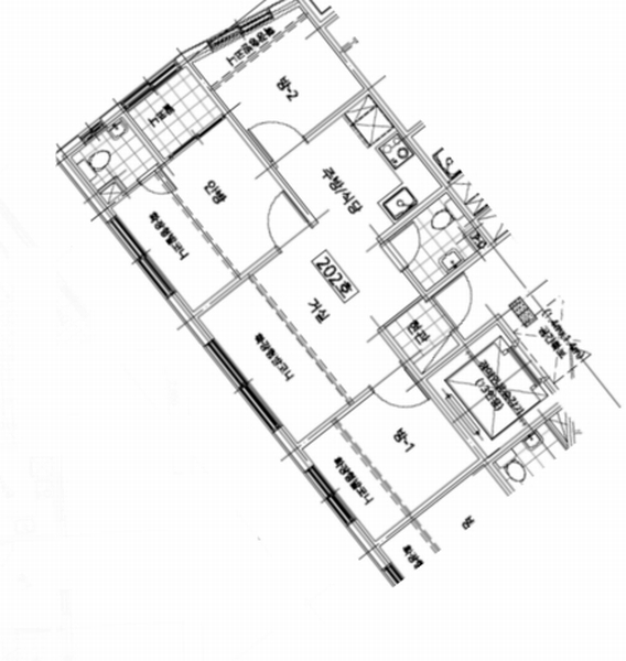
| 소재지 |
서울특별시 구로구 오리로11길 99, 다원리치타운 107동 2층 202호
(서울특별시 구로구 오류동 358)
|
|---|---|
| 물건종류 | 다세대(빌라) |
| 면적 |
토지: 23.41㎡ (7.08평)
건물: 35.39㎡ (10.71평)
|
| 현재 위치 | 서울특별시 구로구 오리로11길 99, 다원리치타운 107동 2층 202호 |
| 소유자 / 채무자 | 백상훈 / 백상훈 |
| 채권자 | 주택도시보증공사 |
| 배당종기일 | 2025-05-12 |
감정가
318,000,000
최저가
254,400,000
보증금
25,440,000
입찰 진행 내역
| 회차/구분 | 입찰기일 | 최저매각가격 | 결과 |
|---|---|---|---|
| 1차 (진행) | 2026-03-11 | 318,000,000 | 유찰 |
| 2차 (진행) | 2026-04-16 | 254,400,000 | |
| 3차 (진행) | 2026-05-28 | 203,520,000 | |
| 4차 (진행) | 2026-07-17 | 162,816,000 |
임차인 현황
| 임차인명 | 점유여부 | 전입/확정/배당 | 보증금 / 차임 | 예상배당액 | 대항력 |
|---|---|---|---|---|---|
| 김혜숙 | 주거용 전부 |
전입: 2021-02-19
확정: 2021-02-04 배당: 2023-03-13 |
303,000,000
월 0
|
0 | 있음 |
| 박진희 | 주거용 202호 |
전입: 2023-08-04
확정: - 배당: - |
1,000,000
월 750,000
|
0 | 없음 |
| 주택도시보증공사 | 주거용 107동 202호 전부 |
전입: 2021-02-19
확정: 2021-02-04 배당: 2025-04-15 |
303,000,000
월 0
|
0 | 있음 |
매각물건 현황
| 구분 | 순번 | 소재지 | 용도/구조/면적 | 감정가 | 비고 |
|---|---|---|---|---|---|
| 건물 | 6층중 2층 | 20.09.16 | 35.39㎡(10.71평) / 도시형생활주택(단지형다세대주택) | 95,400,000 |
등기부 현황
건물
| 순위 | 접수일자 | 권리종류 | 권리자 | 채권금액 | 소멸여부 | 비고 |
|---|---|---|---|---|---|---|
| 1(갑3) | 2021-02-19 | 공유자전원지분전부이전 | 백OO | 0 | 거래가액:303,000,000,매매 | |
| 2(갑4) | 2022-11-10 | 가압류 | 주OOOOOOO | 778,000,000 | 소멸 | 말소기준등기2022카단105682 |
| 3(을3) | 2023-03-13 | 주택임차권(전부) | 김OO | 303,000,000 | 소멸 | 전입:2021.02.19확정:2021.02.04 |
| 4(갑5) | 2023-03-24 | 압류 | 국OOOOOOOO | 0 | 소멸 | |
| 5(갑6) | 2025-02-05 | 강제경매 | 주OOOOOOOOOOOOOOO | 303,000,000 | 소멸 | 2025타경6896 |
| 6(갑7) | 2025-02-17 | 압류 | 국OOOOOOO | 0 | 소멸 |
관련 문서 (PDF)
클릭하면 원본 파일이 열립니다