목록으로
최종 업데이트: 2026-04-22 13:21
2025타경101096
수원지방법원 안양지원 3계(031-8086-1283)
부동산
부동산강제경매
유찰
진행중
| 소재지 |
-
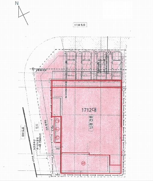
(경기도 안양시 동안구 관양동 1712)
|
|---|---|
| 물건종류 | 근린주택 |
| 면적 |
토지: 0.00㎡ (0평)
건물: 564.95㎡ (170.9평)
|
| 현재 위치 | 경기도 안양시 동안구 관양동 1712 |
| 소유자 / 채무자 | 박설자외 1명 / 박설자외 1명 |
| 채권자 | 전영지 |
| 배당종기일 | 2025-08-06 |
감정가
2,705,180,980
최저가
1,385,053,000
보증금
138,505,300
입찰 진행 내역
| 회차/구분 | 입찰기일 | 최저매각가격 | 결과 |
|---|---|---|---|
| 1차 (진행) | 2026-01-13 | 2,705,180,980 | 유찰 |
| 2차 (진행) | 2026-02-10 | 2,164,145,000 | 유찰 |
| 3차 (진행) | 2026-03-17 | 1,731,316,000 | 유찰 |
| 4차 (진행) | 2026-04-21 | 1,385,053,000 |
임차인 현황
| 임차인명 | 점유여부 | 전입/확정/배당 | 보증금 / 차임 | 예상배당액 | 대항력 |
|---|---|---|---|---|---|
| 김지연 | 주거용 302호 |
전입: 2019-03-29
확정: 2019-03-21 배당: 2025-07-25 |
240,000,000
월 0
|
0 | 있음 |
| 남궁생 | 점포 1층 전부 |
전입: -
확정: - 배당: - |
40,000,000
월 2,500,000
|
0 | 있음 |
| 류관우 | 주거용 2층 201호 |
전입: 2021-11-26
확정: 2021-11-04 배당: 2025-06-12 |
120,000,000
월 0
|
0 | 있음 |
| 신영민 | 주거용 401호 |
전입: 2020-05-04
확정: 2020-04-01 배당: 2025-05-30 |
110,000,000
월 0
|
0 | 있음 |
| 윤선희 | 주거용 402호 |
전입: 2020-10-29
확정: 2020-10-29 배당: 2025-06-11 |
250,000,000
월 0
|
0 | 있음 |
| 전영지 | 주거용 2층 202호 |
전입: 2019-08-20
확정: 2019-07-31 배당: 2024-03-25 |
210,000,000
월 0
|
0 | 있음 |
| 최민녕 | 주거용 301호 |
전입: 2024-06-03
확정: - 배당: - |
0
월 0
|
0 | - |
| 최지은 | 주거용 3층 303호 |
전입: 2022-03-14
확정: 2022-02-14 배당: 2024-04-02 |
160,000,000
월 0
|
0 | 있음 |
| 홍승우 | 주거용 203호 |
전입: 2016-10-20
확정: - 배당: - |
0
월 0
|
0 | - |
매각물건 현황
| 구분 | 순번 | 소재지 | 용도/구조/면적 | 감정가 | 비고 |
|---|---|---|---|---|---|
| 토지 | 토지 | 관양동 1712 | 과밀억제권역,도시교통정비지역,교통기타용도지역지구미분류,대기관리...과밀억제권역,도시교통정비지역,교통기타용도지역지구미분류,대기관리권역,도시지역,국민임대주택단지예정지구,제1종일반주거지역,지구단위계획구역,토지거래계약에관한허가구역,가축사육제한구역 / 대 246.4㎡ (74.54평) | 8,450,000 | 2,082,080,000원 |
| 건물 | 1 | 동편로39번길 17 [관양동 1712]철근콘크리트조,평지붕 | 1층 / 점포 | 117 | 1,026,000원 |
| 2 | 2층 | 단독주택(다가구주택) | 139.3㎡(42.14평) / 1,178,000원 | 164,095,400 | * 사용승인:2012.09.03* 공부상 124.62㎡ |
| 3 | 3층 | 단독주택(다가구주택) | 139.3㎡(42.14평) / 1,178,000원 | 164,095,400 | * 사용승인:2012.09.03* 공부상 124.62㎡ |
| 4 | 4층 | 단독주택(다가구주택) | 139.3㎡(42.14평) / 1,178,000원 | 164,095,400 | * 사용승인:2012.09.03* 공부상 124.62㎡ |
| 제시외건물 | 1 | 동편로39번길 17 [관양동 1712]샷시조 등 1.샷시조, 2.샷시조, 3.샷시조, 4.철근콘크리트조 | 2층 / 발코니 | 19 | 150,000원 |
| 2 | 3층 | 발코니 | 4.19㎡(1.27평) / 150,000원 | 628,500 | 매각포함 |
| 3 | 4층 | 발코니 | 4.19㎡(1.27평) / 150,000원 | 628,500 | 매각포함 |
| 4 | 옥탑 | 계단실및기계실 | 17.2㎡(5.2평) / 500,000원 | 8,600,000 | 매각포함 |
현황 및 위치
* 본건은 경기도 안양시 동안구 관양동 소재 ""관악초등학교"" 북동측 인근에 위치하며 주위는 단독주택, 다가구주택, 다세대주택, 아파트, 점포, 공원등이 혼재하는 지역으로 주위환경 보통임. * 본건까지 차량접근이 용이하며 인근에 노선버스 정류자이 소재하고 지하철역과의 거리 등 으로 보아 대중교통사정은 무난함. * 사다리형의 평탄한 토지로서 주상용 건물부지로 이용중임. * 본건은 북동측으로 소로1류 및 서측으로 소로2류와 접함.
참고사항
* 일괄매각 * 제시외 건물 포함 * 공부상 다가주주택이나, 현황은 상가주택임(1층은 점포, 2,3,4층은 각 주택으로 사용하고 있음.) * 본 건물 2층~4층 공부상 면적은 각124.62㎡이나 현황2층~4층은 확장형발코니 면적 증가로 현황 2층~4층 개략적인 실측면적은 각 139.3㎡임. * 본 건물 건축물대장상 2층~4층은 각 다가구주택 1가구이나, 현황은 2층 3가구(2층 201호,202호,203호), 3층 3가구(3층 301호,302호,303호), 4층 3가구(4층 401호, 402호,403호)임. * 건축물 대장상 위반건축물임. * 본 건물 옥상에 이동통신사 통신장비가 설치되어 있으나 타인소유로 조사되어 평가에서 제외 하였음
전문가 코멘트
☞ 위반(불법)건축물일 경우 건축법 제80조에 의해 계고 및 원상복구명령을 받게되고, 원상복구 하지 않으면 매년 2회 이내 이행강제금이 부과되므로 관할 관청을 통하여 위반내용, 이행강제금 부과내역 또는 양성화방안 등을 확인하시고 이로 인해 잔금대출에 영향이 없는지 금융기관에 확인하시기 바랍니다.(상가의 경우 기존 영업허가는 승계가 가능하나 신규 영업허가는 발급이 어려우니 주의하시기 바랍니다.)
등기부 현황
건물
| 순위 | 접수일자 | 권리종류 | 권리자 | 채권금액 | 소멸여부 | 비고 |
|---|---|---|---|---|---|---|
| 1(갑2) | 2019-07-19 | 소유권이전(매매) | 박OOOOOO | 0 | 각 1/2, 이지완 개명 전:이해영 | |
| 2(을6) | 2024-03-25 | 주택임차권(2층 202호) | 전OO | 210,000,000 | 전입:2019.08.20확정:2019.07.31 | |
| 3(을7) | 2024-04-02 | 주택임차권(3층 303호) | 최OO | 160,000,000 | 전입:2022.03.14확정:2022.02.14 | |
| 4(갑7) | 2025-05-23 | 강제경매 | 전OO | 238,192,729 | 소멸 | 말소기준등기2025타경101096 |
| 5(갑8) | 2025-10-23 | 이지완지분가압류 | 이OO | 80,000,000 | 소멸 | 2025카단824900 |
| 6(을9) | 2025-12-02 | 주택임차권(2층 201호) | 류OO | 120,000,000 | 전입:2021.11.26확정:2021.11.04 | |
| 7(을10) | 2026-02-06 | 주택임차권(4층 401호) | 신OO | 110,000,000 | 전입:2020.05.04확정:2020.04.012차 확:없음 | |
| 8(갑9) | 2026-02-10 | 박설자지분압류 | 국OOOOOOO | 0 | 소멸 |
관련 문서 (PDF)
클릭하면 원본 파일이 열립니다