목록으로
최종 업데이트: 2026-04-28 03:42
2024타경110044
수원지방법원 안양지원 4계(031-8086-1284)
부동산
부동산강제경매
유찰
진행중
| 소재지 |
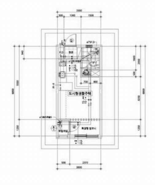
경기도 안양시 만안구 만안로 191, 일번가이지움 4층 420호
(경기도 안양시 만안구 안양동 622-5)
|
|---|---|
| 물건종류 | 아파트[공급7평형] |
| 면적 |
토지: 6.12㎡ (1.85평)
건물: 19.01㎡ (5.75평)
|
| 현재 위치 | 경기도 안양시 만안구 만안로 191, 일번가이지움 4층 420호 |
| 소유자 / 채무자 | 김다운 / 김다운 |
| 채권자 | 김준혁 |
| 배당종기일 | 2025-02-07 |
감정가
127,000,000
최저가
41,615,000
보증금
4,161,500
입찰 진행 내역
| 회차/구분 | 입찰기일 | 최저매각가격 | 결과 |
|---|---|---|---|
| 1차 (진행) | 2025-10-21 | 127,000,000 | 유찰 |
| 2차 (진행) | 2025-11-18 | 101,600,000 | 유찰 |
| 3차 (진행) | 2025-12-16 | 81,280,000 | 유찰 |
| 4차 (진행) | 2026-02-03 | 65,024,000 | 유찰 |
| 5차 (진행) | 2026-04-14 | 52,019,000 | 유찰 |
| 6차 (진행) | 2026-05-19 | 41,615,000 | |
| 7차 (진행) | 2026-06-23 | 33,292,000 | |
| 8차 (진행) | 2026-08-11 | 26,634,000 |
임차인 현황
| 임차인명 | 점유여부 | 전입/확정/배당 | 보증금 / 차임 | 예상배당액 | 대항력 |
|---|---|---|---|---|---|
| 김준혁 | 주거용 전부 |
전입: 2022-02-28
확정: 2022-02-10 배당: 2024-12-17 |
142,000,000
월 0
|
0 | 있음 |
매각물건 현황
| 구분 | 순번 | 소재지 | 용도/구조/면적 | 감정가 | 비고 |
|---|---|---|---|---|---|
| 건물 | 8층중 4층 | 16.11.28 | 19.01㎡(5.75평)[공급7평] / 도시형생활주택 | 63,500,000 | * 지하주차장 |
현황 및 위치
* 본건은 경기도 안양시 만안구 안양동 소재 "안양역" 남동측 인근에 위치하고, 주위는 오피스텔, 도시형생활주택, 근린생활시설, 숙박시설 등이 혼재하는 지역임 * 본건이 속한 건물까지 차량접근이 가능하고, 인근에 버스정류장 및 1호선 "안양역" 이 소재하는 등 제반 교통여건은 무난한 편임 * 대체로 사다리형인 6필1단의 토지로서, 주상용 건부지로 이용중임. * 북동측의 중로, 남서측의 소로에 각각 접함.
참고사항
* 외필지 : 안양동 622-6, 622-7, 622-225, 622-356, 622-391
전문가 코멘트
☞ 본건은 소액임차인의 최우선변제금 지급기준이 되는 담보물권이 없어 배당시점을 기준으로 소액임차인을 판단하였으니 참고하시기 바랍니다.
등기부 현황
건물
| 순위 | 접수일자 | 권리종류 | 권리자 | 채권금액 | 소멸여부 | 비고 |
|---|---|---|---|---|---|---|
| 1(갑4) | 2022-03-07 | 소유권이전(매매) | 김OO | 0 | 거래가액:142,000,000 | |
| 2(갑5) | 2023-03-20 | 압류 | 국OOOOOOOO | 0 | 소멸 | 말소기준등기 |
| 3(갑6) | 2023-11-27 | 압류 | 부OO | 0 | 소멸 | |
| 4(갑7) | 2024-07-25 | 가압류 | 주OOOOOOO | 2,699,000,000 | 소멸 | 2024카단104340 |
| 5(갑8) | 2024-11-27 | 강제경매 | 김OO | 142,000,000 | 소멸 | 2024타경110044 |
| 6(갑9) | 2025-09-11 | 압류 | 광OO | 0 | 소멸 |
관련 문서 (PDF)
클릭하면 원본 파일이 열립니다