목록으로
최종 업데이트: 2026-04-27 04:27
2025타경1296
청주지방법원 충주지원 1계(043-841-9121)
부동산
부동산임의경매
유찰
진행중
| 소재지 |
-
(충청북도 충주시 주덕읍 대곡리 119-1)
|
|---|---|
| 물건종류 | 주택 |
| 면적 |
토지: 0.00㎡ (0평)
건물: 179.53㎡ (54.31평)
|
| 현재 위치 | 충청북도 충주시 주덕읍 대곡리 119-1 |
| 소유자 / 채무자 | 유칠성 / 윤학단 |
| 채권자 | 충주축협 |
| 배당종기일 | 2025-09-18 |
감정가
274,899,650
최저가
175,936,000
보증금
17,593,600
입찰 진행 내역
| 회차/구분 | 입찰기일 | 최저매각가격 | 결과 |
|---|---|---|---|
| 1차 (진행) | 2026-03-09 | 274,899,650 | 유찰 |
| 2차 (진행) | 2026-04-13 | 219,920,000 | 유찰 |
| 3차 (진행) | 2026-05-18 | 175,936,000 | |
| 4차 (진행) | 2026-06-22 | 140,749,000 |
임차인 현황
| 임차인명 | 점유여부 | 전입/확정/배당 | 보증금 / 차임 | 예상배당액 | 대항력 |
|---|---|---|---|---|---|
| 방창성 | 주거용 미상 |
전입: 2019-03-29
확정: - 배당: - |
0
월 0
|
0 | 없음 |
매각물건 현황
| 구분 | 순번 | 소재지 | 용도/구조/면적 | 감정가 | 비고 |
|---|---|---|---|---|---|
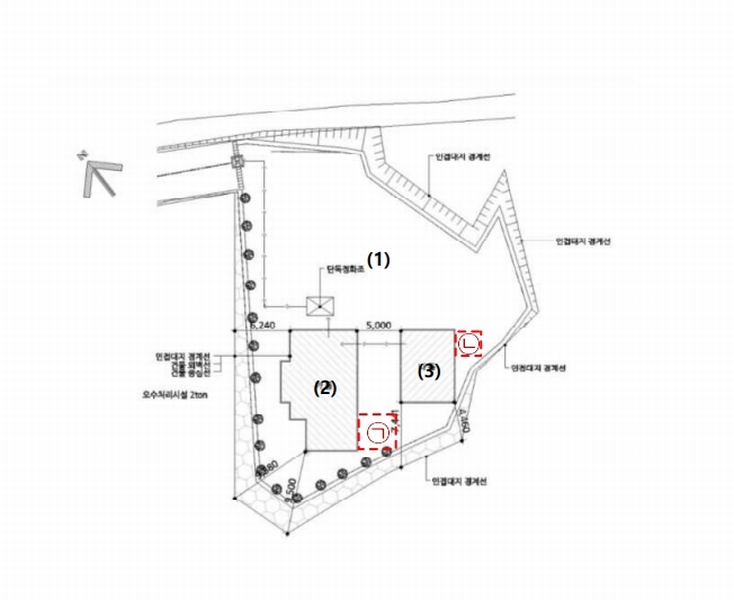
| 토지 | 토지 | 대곡리 119-1 | 계획관리지역,성장관리계획구역,가축사육제한구역 / 대 1103㎡ (333.66평) | 161,000 | 177,583,000원 |
| 건물 | 1 | 충청대로 2220-10 [대곡리 119-1외 1필지 가동]경량철골구조 기타지붕(판넬) | 단층 / 단독주택 | 99 | 617,000원 |
| 2 | 충청대로 2220-10 [대곡리 119-1외 1필지 나동]경량철골구조 기타지붕(판넬) | 단층 | 단독주택 / 48㎡(14.52평) | 582,000 | 27,936,000원 |
| 제시외건물및기타 | 1 | 충청대로 2220-10 [대곡리 119-1외 1필지 가동]경량철골구조 판넬지붕 | 단층 / 보일러실 및 창고 | 24 | 250,000원 |
| 2 | 충청대로 2220-10 [대곡리 119-1외 1필지 나동]경량철골구조 판넬지붕 | 단층 | 보일러실 및 창고 / 11.84㎡(3.58평) | 250,000 | 2,960,000원 |
현황 및 위치
* 본건은 충청북도 충주시 주덕읍 대곡리 소재 ""동산미제"" 서쪽 인근에 위치하며, 인근은 소규모 공장, 모텔, 근린생활시설, 농경지, 자연림 등으로 형성되어 있음. * 본건까지 차량 출입이 가능하며, 인근에 국도(36호선) 및 노선버스 정류장이 소재하나 버스정류장까지의 거리, 배차간격, 노선 등을 고려할 때 대중교통 이용은 다소 불편시 됨. * 본건 토지는 완경사의 부정형 토지로서 단독주택 건부지로 이용 중임. * 본건 토지 북서쪽으로 세로한면 폭의 포장도로와 접함.
참고사항
* 일괄매각. * 제시외 건물 포함(대곡리 119-21은 대곡리 119-1과 합병 말소됨) * 토지 지상에 조경수 및 조경석이 소재하나 그 경제적 가치가 미미하여 토지에 포함하여 감정평가하였음 * 건1,2)건물에 부속물 형태로 소재하는 데크부분은 단독의 효용가치가 희박하고 건물과 불가분의 관계인 점 등을 고려하여 건물에 포함하여 감정평가하였음 ☞현황서상 내용: 건1,2)소유자 미상의 판넬조 판넬지붕 창고 각1동씩 소재함.
등기부 현황
건물
| 순위 | 접수일자 | 권리종류 | 권리자 | 채권금액 | 소멸여부 | 비고 |
|---|---|---|---|---|---|---|
| 1(갑2) | 2016-02-26 | 공유자전원지분전부이전 | 윤OO | 0 | 매매 | |
| 2(을2) | 2016-02-26 | 근저당 | 충OOOOOOOOO | 148,800,000 | 소멸 | 말소기준등기 |
| 3(갑3) | 2023-11-15 | 소유권이전(매매) | 유OO | 0 | ||
| 4(갑4) | 2024-07-03 | 가압류 | 한OOOOOOO | 32,908,086 | 소멸 | 2024카단103921 |
| 5(갑5) | 2024-12-12 | 소유권이전청구권가등기 | 강OO | 0 | 소멸 | 매매예약 |
| 6(갑6) | 2025-06-18 | 임의경매 | 충OOO | 126,905,845 | 소멸 | 2025타경1296 |
관련 문서 (PDF)
클릭하면 원본 파일이 열립니다