목록으로
최종 업데이트: 2026-04-22 13:21
2025타경8716
서울남부지방법원 본원 4계(02-2192-1334)
부동산
부동산강제경매
유찰
진행중
| 소재지 |
-
(서울특별시 강서구 화곡동 1088-6)
|
|---|---|
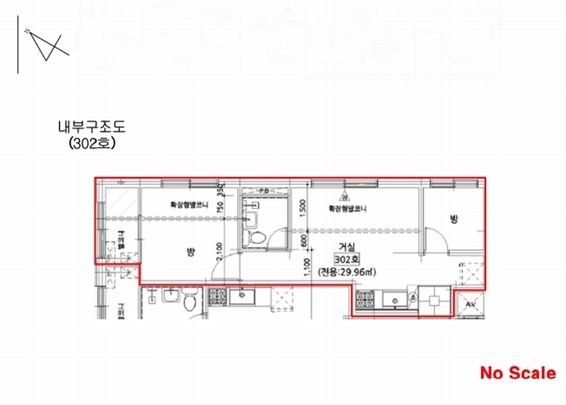
| 물건종류 | 다세대(빌라) |
| 면적 |
토지: 18.74㎡ (5.67평)
건물: 29.96㎡ (9.06평)
|
| 현재 위치 | 서울특별시 강서구 화곡동 1088-6 |
| 소유자 / 채무자 | 김연희 / 김연희 |
| 채권자 | 주택도시보증공사 |
| 배당종기일 | 2025-05-26 |
감정가
301,000,000
최저가
240,800,000
보증금
24,080,000
입찰 진행 내역
| 회차/구분 | 입찰기일 | 최저매각가격 | 결과 |
|---|---|---|---|
| 1차 (진행) | 2026-03-11 | 301,000,000 | 유찰 |
| 2차 (진행) | 2026-04-16 | 240,800,000 | |
| 3차 (진행) | 2026-05-28 | 192,640,000 | |
| 4차 (진행) | 2026-07-17 | 154,112,000 |
임차인 현황
| 임차인명 | 점유여부 | 전입/확정/배당 | 보증금 / 차임 | 예상배당액 | 대항력 |
|---|---|---|---|---|---|
| 김선영 | 주거용 미상 |
전입: 2023-11-27
확정: - 배당: - |
0
월 0
|
0 | 없음 |
| 김정휘 | 주거용 건물전부 |
전입: 2021-08-02
확정: 2021-07-13 배당: 2023-08-25 |
315,000,000
월 0
|
0 | 있음 |
| 주택도시보증공사 | 주거용 302호 전부 |
전입: 2021-08-02
확정: 2021-07-13 배당: 2025-05-19 |
315,000,000
월 0
|
0 | 있음 |
매각물건 현황
| 구분 | 순번 | 소재지 | 용도/구조/면적 | 감정가 | 비고 |
|---|---|---|---|---|---|
| 건물 | 6층중 3층 | 21.06.14 | 29.96㎡(9.06평) / 주거용 | 90,300,000 |
등기부 현황
건물
| 순위 | 접수일자 | 권리종류 | 권리자 | 채권금액 | 소멸여부 | 비고 |
|---|---|---|---|---|---|---|
| 1(갑2) | 2021-09-13 | 소유권이전(매매) | 김OO | 0 | 거래가액:315,000,000 | |
| 2(갑3) | 2023-08-18 | 압류 | 국OOOOOOOO | 0 | 소멸 | 말소기준등기 |
| 3(을3) | 2023-08-25 | 주택임차권(건물전부) | 김OO | 315,000,000 | 소멸 | 전입:2021.08.02확정:2021.07.13 |
| 4(갑4) | 2025-02-20 | 강제경매 | 주OOOOOOOOOOOOOOOOO | 315,000,000 | 소멸 | 2025타경8716 |
관련 문서 (PDF)
클릭하면 원본 파일이 열립니다