목록으로
최종 업데이트: 2026-04-28 18:51
2025타경50835
춘천지방법원 본원 3계(033-259-9712)
부동산
임의경매(청산을위한형식적경매)
매각
진행중
| 소재지 |
강원특별자치도 춘천시 서부대성로 332, 청구아파트 102동 9층 903호
(강원특별자치도 춘천시 석사동 727-6)
|
|---|---|
| 물건종류 | 아파트[공급23평형] |
| 면적 |
토지: 36.10㎡ (10.92평)
건물: 59.40㎡ (17.97평)
|
| 현재 위치 | 강원특별자치도 춘천시 서부대성로 332, 청구아파트 102동 9층 903호 |
| 소유자 / 채무자 | 망 함순자의 상속인 송명순 외 1 / 망 함순자의 상속인 송명순 외 1 |
| 채권자 | 송명순외 1명 |
| 배당종기일 | 2025-11-03 |
감정가
168,000,000
최저가
117,600,000
보증금
11,760,000
진행 상태 / 매각 결과
매각
completed = false
매각허가결정
| 상태 코드 | 2 | 상태 텍스트 | 매각허가결정 |
|---|---|---|---|
| 매각가 | 147,847,700원 | 매각가율 | 0% |
| 입찰 수 | 16 | 매수인 | 홍천군 김혜린 |
| 차순위 입찰가 | 0원 | 매각허가 결정 | 매각허가결정 |
| 매각허가 결정일 | 2026-04-20 | 대금 지급기한 | - |
| 대금 지급상태 | - | 배당기일 | - |
| 배당 종결일 | - | 다음 확인 예정 | 2026-04-29 09:00 |
입찰 진행 내역
| 회차/구분 | 입찰기일 | 최저매각가격 | 결과 |
|---|---|---|---|
| 1차 (진행) | 2026-03-09 | 168,000,000 | 유찰 |
| 2차 (진행) | 2026-04-13 | 117,600,000 |
진행 메모
매각 : 147,847,700 원 (88%)
(입찰 16 명,매수인:홍천군 김혜린)
매각결정기일 : 2026.04.20 - 매각허가결정
임차인 현황
| 임차인명 | 점유여부 | 전입/확정/배당 | 보증금 / 차임 | 예상배당액 | 대항력 |
|---|---|---|---|---|---|
| 송명석 | 주거용 |
전입: 2019-01-04
확정: - 배당: - |
0
월 0
|
0 | 없음 |
매각물건 현황
| 구분 | 순번 | 소재지 | 용도/구조/면적 | 감정가 | 비고 |
|---|---|---|---|---|---|
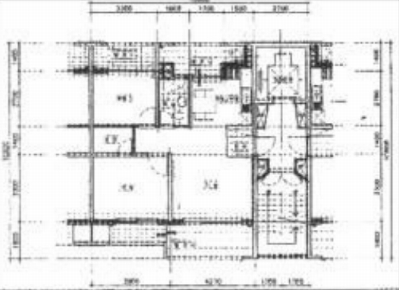
| 건물 | 18층중 9층 | 97.09.09 | 59.4㎡(17.97평)[공급23평] / 방2, 주방 및 거실1, 화장실1 등 | 117,600,000 | * 가스보일러에 의한 난방설비 |
현황 및 위치
* 본건은 강원특별자치도 춘천시 석사동 소재 "우석중학교" 북서측 인근에 소재하는 청구아파트 제102동 제9층 제903호 건으로서, 주위는 아파트단지, 근린생활시설 및 단독주택 등으로 이루어진 지역으로 제반 주위 환경은 보통임. * 본건 단지까지 차량 접근 가능하며, 제반 교통사황은 보통시 됨. * 사다리 완경사지를 평탄하게 조성한 아파트 건부지임. * 본건 단지내 도로를 통하여 외곽 공도와 접함.
등기부 현황
건물
| 순위 | 접수일자 | 권리종류 | 권리자 | 채권금액 | 소멸여부 | 비고 |
|---|---|---|---|---|---|---|
| 1(갑4) | 2014-11-05 | 소유권이전(매매) | 함OO | 0 | 거래가액 금110,000,000원 | |
| 2(을5) | 2018-07-05 | 근저당 | 춘OOOOOOOO | 123,500,000 | 소멸 | 말소기준등기 |
| 3(갑5) | 2025-07-24 | 소유권이전(상속) | 송OOOOOO | 0 | 각 1/2 | |
| 4(갑6) | 2025-07-31 | 임의경매 | 송OOOOOO | 0 | 소멸 | 2025타경50835 |
관련 문서 (PDF)
클릭하면 원본 파일이 열립니다