목록으로
최종 업데이트: 2026-04-23 15:18
2024타경54088
춘천지방법원 본원 4계(033-259-9713)
부동산
부동산강제경매
매각
진행중
| 소재지 |
-
(강원특별자치도 춘천시 동면 감정리 173-1)
|
|---|---|
| 물건종류 | 주택 |
| 면적 |
토지: 0.00㎡ (0평)
건물: 172.08㎡ (52.05평)
|
| 현재 위치 | 강원특별자치도 춘천시 동면 감정리 173-1 |
| 소유자 / 채무자 | 한철이 / 한철이 |
| 채권자 | 주택도시보증공사 |
| 배당종기일 | 2024-11-27 |
감정가
309,405,000
최저가
74,288,000
보증금
7,428,800
진행 상태 / 매각 결과
매각
completed = false
매각허가결정
| 상태 코드 | 2 | 상태 텍스트 | 매각허가결정 |
|---|---|---|---|
| 매각가 | 112,600,000원 | 매각가율 | 0% |
| 입찰 수 | 2 | 매수인 | 춘천시 용 순 |
| 차순위 입찰가 | 0원 | 매각허가 결정 | 매각허가결정 |
| 매각허가 결정일 | 2026-03-23 | 대금 지급기한 | - |
| 대금 지급상태 | - | 배당기일 | - |
| 배당 종결일 | - | 다음 확인 예정 | 2026-04-24 09:00 |
입찰 진행 내역
| 회차/구분 | 입찰기일 | 최저매각가격 | 결과 |
|---|---|---|---|
| 1차 (진행) | 2025-03-17 | 309,405,000 | 유찰 |
| 2차 (진행) | 2025-04-21 | 216,584,000 | 유찰 |
| 3차 (진행) | 2025-05-26 | 151,609,000 | 유찰 |
| 4차 (진행) | 2025-06-30 | 106,126,000 | 유찰 |
| 5차 (진행) | 2025-08-04 | 74,288,000 | 유찰 |
| (진행) | 2025-09-08 | 52,002,000 | 변경 |
| 6차 (진행) | 2025-10-20 | 309,405,000 | 유찰 |
| 7차 (진행) | 2025-11-24 | 216,584,000 | 유찰 |
| 8차 (진행) | 2026-01-05 | 151,609,000 | 유찰 |
| 9차 (진행) | 2026-02-09 | 106,126,000 | 유찰 |
| 10차 (진행) | 2026-03-16 | 74,288,000 |
진행 메모
매각 : 112,600,000 원 (36.39%)
(입찰 2 명,매수인:춘천시 용 순)
매각결정기일 : 2026.03.23 - 매각허가결정
대금지급기한 : 2026.05.08
임차인 현황
| 임차인명 | 점유여부 | 전입/확정/배당 | 보증금 / 차임 | 예상배당액 | 대항력 |
|---|---|---|---|---|---|
| 김준영 | 주거용 주택 전부 |
전입: 2021-04-05
확정: 2021-03-08 배당: 2023-04-17 |
180,000,000
월 0
|
0 | 있음 |
매각물건 현황
| 구분 | 순번 | 소재지 | 용도/구조/면적 | 감정가 | 비고 |
|---|---|---|---|---|---|
| 토지 | 토지 | 감정리 173-1 | 도시지역,가축사육제한구역,자연녹지지역 / 대 429㎡ (129.77평) | 297,000 | 127,413,000원 |
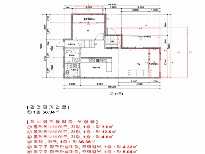
| 건물 | 1 | 버들숲길 62-12 [감정리 172-1외 1필지]일반목구조 기타지붕 | 1층 / 단독주택 | 56 | 1,600,000원 |
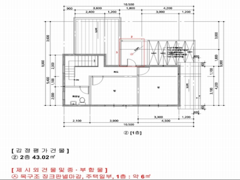
| 2 | 2층 | 단독주택 | 43.02㎡(13.01평) / 1,600,000원 | 68,832,000 | * 사용승인:2019.03.26 |
| 제시외건물및기타 | 1 | 버들숲길 62-12 [감정리 172-1외 1필지]폴리카보네이트 등 1.폴리카보네이트, 2.폴리카보네이트, 3.폴리카보네이트, 4.목재, 5.목구조, 6.목구조, 7.각파이프조징크판넬마감(면적)6㎡ 물건상태 매각준비 -> 매각공고 | 1층 / 차양 | 6 | |
| 2 | 1층 | 차양 | 12.6㎡(3.81평) / | 900,000 | 매각포함 |
| 3 | 1층 | 차양 | 4.8㎡(1.45평) / | 480,000 | 매각포함 |
| 4 | 1층 | 데크 | 36.36㎡(11평) / | 1,800,000 | 매각포함 |
| 5 | 1층 | 주택일부 | 4.32㎡(1.31평) / 1,600,000원 | 6,912,000 | 매각포함 |
| 6 | 1층 | 주택일부 | 5.04㎡(1.52평) / 1,600,000원 | 8,064,000 | 매각포함 |
| 7 | 1층 | 발코니 | 6㎡(1.82평) / | 4,500,000 | 매각포함 |
현황 및 위치
* 본건은 강원특별자치도 춘천시 동면 감정리 소재 ‘감정2리마을회관’ 동측 인근에 소재하며, 주위는 단독주택 및 전, 답 등이 농경지 등이 혼재하는 농촌지대임. * 본건까지 차량접근이 가능하며, 인근에 버스정류장이 소재하는 등 대중교통상황은 보통임. * 인접 토지 및 도로 대비 완경사지의 부정형 토지로서 단독주택의 건부지로 이용중임. * 본건 북측으로 세로(가)에 접함.
참고사항
* 일괄매각. 제시외 건물 포함 * 본건 건물은 등기부, 건축물대장상 172-1, 173-1번지 양 지상에 소재하나, 172-1번지는 토지대장상 173-1번지와 합병되어 말소된 바, 현황 173-1번지 지상에 소재함. * 본건 토지 상에 소재하는 담장, 대문, 조경수, 조경석, 계단 등은 거래관행 등을 고려하여 토지가치에 포함하여 감정평가하였음.
등기부 현황
건물
| 순위 | 접수일자 | 권리종류 | 권리자 | 채권금액 | 소멸여부 | 비고 |
|---|---|---|---|---|---|---|
| 1(갑1) | 2019-03-28 | 소유권보존 | 한OO | 0 | ||
| 2(을1) | 2023-04-17 | 주택임차권(주택 전부) | 김OO | 180,000,000 | 소멸 | 전입:2021.04.05확정:2021.03.08 |
| 3(갑4) | 2024-05-03 | 가압류 | 김OO | 50,000,000 | 소멸 | 말소기준등기2024카단376 |
| 4(갑5) | 2024-08-22 | 강제경매 | 주OOOOOOOOOOOOOOOOO | 190,375,889 | 소멸 | 2024타경54088 |
관련 문서 (PDF)
클릭하면 원본 파일이 열립니다