목록으로
최종 업데이트: 2026-04-23 15:22
2025타경2022
춘천지방법원 본원 4계(033-259-9713)
부동산
부동산임의경매
취하/변경
진행중
| 소재지 |
-
(강원특별자치도 춘천시 석사동 648-3)
|
|---|---|
| 물건종류 | 주택 |
| 면적 |
토지: 0.00㎡ (0평)
건물: 293.34㎡ (88.74평)
|
| 현재 위치 | 강원특별자치도 춘천시 석사동 648-3 |
| 소유자 / 채무자 | 남○○ / 엄○○ |
| 채권자 | 춘천남부새마을금고 |
| 배당종기일 | 2025-11-25 |
감정가
381,668,600
최저가
267,168,000
보증금
26,716,800
입찰 진행 내역
| 회차/구분 | 입찰기일 | 최저매각가격 | 결과 |
|---|---|---|---|
| 1차 (진행) | 2026-02-09 | 381,668,600 | 유찰 |
| (진행) | 2026-03-16 | 267,168,000 | 취하 |
진행 메모
본사건은 취하(으)로 경매절차가 종결되었습니다.
매각물건 현황
| 구분 | 순번 | 소재지 | 용도/구조/면적 | 감정가 | 비고 |
|---|---|---|---|---|---|
| 토지 | 토지 | 석사동 648-3석○○ | 도시지역,제2종일반주거지역,지구단위계획구역,중점경관관리구역,상대...도시지역,제2종일반주거지역,지구단위계획구역,중점경관관리구역,상대보호구역,가축사육제한구역 / 대 265㎡ (80.16평) | 987,000 | 261,555,000원 |
| 건물 | 1 | 후석로59번길 14-19 [석사동 648-3]후○○철근콘크리트조적조스라브지붕 | 1층 / 주택 | 95 | 560,000원 |
| 2 | 2층 | 주택 | 61.9㎡(18.72평) / 560,000원 | 34,664,000 | * 도시가스보일러에 의한 난방설비 |
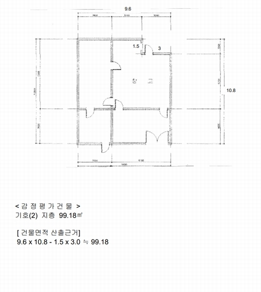
| 3 | 지하 | 창고 | 99.18㎡(30평) / 300,000원 | 29,754,000 | * 공부상 목재제조업 * 도시가스보일러에 의한 난방설비 |
| 제시외건물및기타 | 1 | 석사동 648-3석○○샤시조 강판지붕 등 1.샤시조 강판지붕, 2.파이프조 강판지붕, 3.샤시조 강판지붕, 4.샤시조, 5.샤시조 | / 차양 | 23 | |
| 2 | 차양 | 3.4㎡(1.03평) / | 150,000 | 매각포함 | |
| 3 | 창고 | 3㎡(0.91평) / | 200,000 | 매각포함 | |
| 4 | 창고 | 4㎡(1.21평) / | 250,000 | 매각포함 | |
| 5 | 창고 | 3.6㎡(1.09평) / | 250,000 | 매각포함 |
현황 및 위치
* 본건은 강원특별자치도 춘천시 석사동 소재 "석사사거리" 서측 인근에 위치하고, 주위는 단독주택, 근린생활시설 등이 소재하며 주위환경은 보통임. * 본건까지 차량접근이 가능하고, 대중교통의 편의성은 보통임. * 사다리형 평지로서 단독주택 건부지임. * 본건 남동측으로 로폭 약6미터 내외의 포장도로에 접함.
참고사항
* 일괄매각. * 제시외 건물 포함 * 본건 토지 지상 수목, 수도전, 담장 등은 토지에, 본건 건물 지하층 차양부분 등 가치가 미미한 부합물은 건물에 각 포함하여 평가함 * 본건 건물 지하층은 공부상 "목재제조업"이나 현황 "창고"로 조사됨▶ 본 물건은 공부상과 현황상 물건 상태가 다르니 확인하시고 입찰하시기 바랍니다.
등기부 현황
건물
| 순위 | 접수일자 | 권리종류 | 권리자 | 채권금액 | 소멸여부 | 비고 |
|---|---|---|---|---|---|---|
| 1(갑1) | 1995-01-07 | 소유권보존 | 엄OO | 0 | ||
| 2(을4) | 2003-08-25 | 근저당 | 춘OOOOOOOO | 130,000,000 | 소멸 | 말소기준등기 |
| 3(갑2) | 2008-06-11 | 소유권이전(매매) | 남OO | 0 | 2019년1월16일 가등기에 기한 본등기이행 | |
| 4(갑17) | 2025-08-25 | 임의경매 | 춘OOOOOOOO | 55,210,880 | 소멸 | 2025타경2022 |