목록으로
최종 업데이트: 2026-04-22 13:21
2025타경50926
춘천지방법원 본원 4계(033-259-9713)
부동산
부동산임의경매
유찰
진행중
| 소재지 |
-
(강원특별자치도 인제군 북면 용대리 1633)
|
|---|---|
| 물건종류 | 주택 |
| 면적 |
토지: 0.00㎡ (0평)
건물: 426.48㎡ (129.01평)
|
| 현재 위치 | 강원특별자치도 인제군 북면 용대리 1633 |
| 소유자 / 채무자 | 파산자 최미랑의 파산관재인 김용진 / 파산자 최미랑의 파산관재인 김용진 |
| 채권자 | 인제새마을금고 |
| 배당종기일 | 2025-12-31 |
감정가
795,482,400
최저가
556,838,000
보증금
55,683,800
입찰 진행 내역
| 회차/구분 | 입찰기일 | 최저매각가격 | 결과 |
|---|---|---|---|
| 1차 (진행) | 2026-03-16 | 795,482,400 | 유찰 |
| 2차 (진행) | 2026-04-20 | 556,838,000 | |
| 3차 (진행) | 2026-06-01 | 389,787,000 | |
| 4차 (진행) | 2026-07-06 | 272,851,000 |
임차인 현황
| 임차인명 | 점유여부 | 전입/확정/배당 | 보증금 / 차임 | 예상배당액 | 대항력 |
|---|---|---|---|---|---|
| 강유미 | 주거용 |
전입: 2025-04-17
확정: - 배당: - |
0
월 0
|
0 | 없음 |
매각물건 현황
| 구분 | 순번 | 소재지 | 용도/구조/면적 | 감정가 | 비고 |
|---|---|---|---|---|---|
| 토지 | 토지 | 1 | 용대리 1633 / 계획관리지역,가축사육제한구역,성장관리계획구역 | 628 | 211,000원 |
| 토지 | 2 | 용대리 1633-4 | 계획관리지역,가축사육제한구역,성장관리계획구역 / 대 396㎡ (119.79평) | 211,000 | 83,556,000원 |
| 건물 | 1 | 황태길 321 [용대리 1633]블록구조 기와지붕 | 단층 / 단독주택 | 192 | 1,560,000원 |
| 2 | 1층 | 단독주택 | 97.83㎡(29.59평) / 1,320,000원 | 129,135,600 | * 사용승인:2007.11.02* 부속건물 |
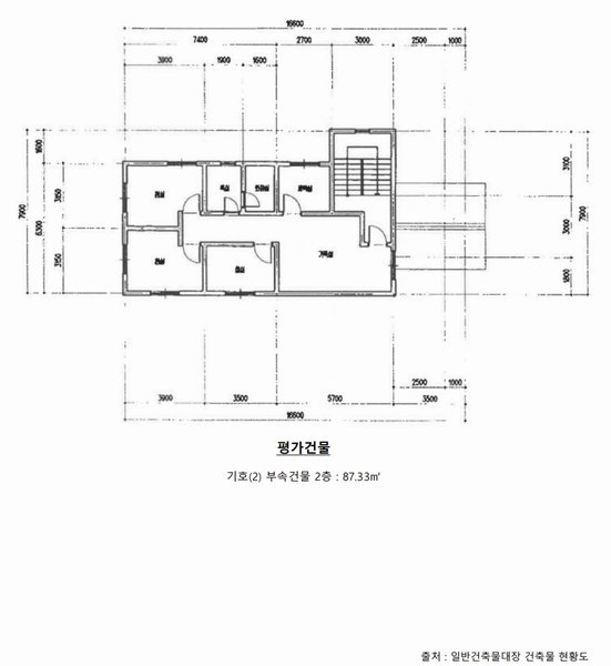
| 3 | 2층 | 단독주택 | 87.33㎡(26.42평) / 1,320,000원 | 115,275,600 | * 사용승인:2007.11.02 |
| 제시외건물 | 1 | 용대리 1633목조 기와지붕 등 1.목조 기와지붕, 2.목조 기와지붕, 3.블럭조 기와지붕 | 단층 / 창고 등 | 21 | |
| 2 | 단층 | 창고 등 | 14.4㎡(4.36평) / | 10,300,000 | 매각포함 |
| 3 | 단층 | 부속사 등 | 13.2㎡(3.99평) / | 9,500,000 | 매각포함 |
현황 및 위치
* 본건은 강원특별자지도 인제군 국면 용대리 소재 국천교 남서측 인근에 위치하며, 주위는 단독주택. 농경지 및 근린생활시설 등이 소재하는 지역으로서 주위 환경은 보통시 됩니다. * 본건까지 차량접근 가능하며. 대중교통 등 전반적인 교통상황은 보통시 됩니다. * 부정형 평지의 토지로서 단독주택 건부지로 이용중입니다. * 남동측으로 폭 약 8이터 내외의 아스팔트 포장도로에 접합니다.
참고사항
* 일괄매각 * 제시외 건물 포함 * 본건 건물이 1633번지 지상에 소재하는 것으로 되어있으나, 1633번지 일부가 1633-4번지로 분할되어 본건 건물의 주건물은 1633번지, 부속건물은 1633-4번지 지상에 소재함
등기부 현황
건물
| 순위 | 접수일자 | 권리종류 | 권리자 | 채권금액 | 소멸여부 | 비고 |
|---|---|---|---|---|---|---|
| 1(갑1) | 2007-11-13 | 소유권보존 | 김OO | 0 | ||
| 2(을4) | 2016-04-29 | 근저당 | 인OOOOOO | 637,000,000 | 소멸 | 말소기준등기 |
| 3(갑2) | 2023-03-09 | 소유권이전(상속) | 최OO | 0 | 협의분할에 의한 상속 | |
| 5(갑4) | 2025-10-01 | 임의경매 | 인OOOOOO | 500,835,410 | 소멸 | 2025타경50926 |
관련 문서 (PDF)
클릭하면 원본 파일이 열립니다