목록으로
최종 업데이트: 2026-04-22 13:21
2025타경30513
춘천지방법원 강릉지원 3계(033-640-1133)
부동산
부동산강제경매
유찰
진행중
| 소재지 |
-
(강원특별자치도 강릉시 구정면 여찬리 676-69)
|
|---|---|
| 물건종류 | 주택 |
| 면적 |
토지: 0.00㎡ (0평)
건물: 162.03㎡ (49.01평)
|
| 현재 위치 | 강원특별자치도 강릉시 구정면 여찬리 676-69 |
| 소유자 / 채무자 | 서운정 / 서운정 |
| 채권자 | 농업회사법인(주)좋은생각 외1명 |
| 배당종기일 | 2025-06-30 |
감정가
487,713,840
최저가
341,400,000
보증금
34,140,000
입찰 진행 내역
| 회차/구분 | 입찰기일 | 최저매각가격 | 결과 |
|---|---|---|---|
| 1차 (진행) | 2026-03-16 | 487,713,840 | 유찰 |
| 2차 (진행) | 2026-04-20 | 341,400,000 | |
| 3차 (진행) | 2026-06-01 | 238,980,000 | |
| 4차 (진행) | 2026-07-20 | 167,286,000 |
매각물건 현황
| 구분 | 순번 | 소재지 | 용도/구조/면적 | 감정가 | 비고 |
|---|---|---|---|---|---|
| 토지 | 토지 | 1 | 여찬리 676-69 / 비행안전제2구역(전술),상대보호구역,가축사육제한구역,계획관리지역 | 83 | 136,000원 |
| 토지 | 2 | 여찬리 676-125 | 비행안전제2구역(전술),상대보호구역,가축사육제한구역,계획관리지역 / 대 417㎡ (126.14평) | 412,000 | 171,804,000원 |
| 건물 | 1 | 말미길 122-29 [여찬리 676-125]철근콘크리트구조 (철근)콘크리트지붕 | 1층 / 단독주택 | 102 | 1,880,000원 |
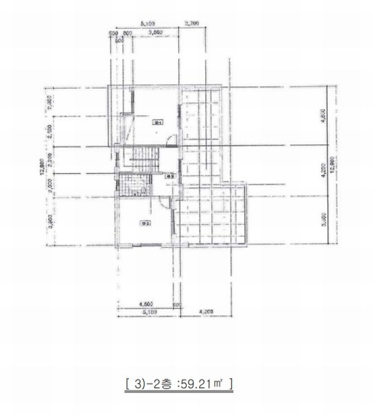
| 2 | 2층 | 단독주택 | 59.21㎡(17.91평) / 1,880,000원 | 111,314,800 | * 사용승인:2021.06.18 |
현황 및 위치
* 본건은 강원특별자치도 강릉시 구정면 여찬리에 소재하는 “강원예술고등학교” 남동측 인근에 위치하며, 주위는 단독주택, 주거나지 등이 혼재하는 지역으로 주위환경은 보통시 됩니다. * 본건까지 차량진입 가능하며, 인근 버스정류장까지의 거리, 노선, 운행빈도 등으로 보아 교통사정은 보통시 됩니다. * 1)부정형 완경사로서, 현황 ""도로"" 입니다. 2)남동향 완경사지를 평탄하게 조성한 사다리형 토지로서, 현황 ""주거용건부지"" 입 니다. * 1)폭 약 4m내외의 도로입니다. 2)본건 남동측으로 폭 약 7m내외, 북동측으로 폭 약4m내외 도로와 각각 접합니다.
참고사항
* 일괄매각 * 토1) 지분매각
등기부 현황
건물
| 순위 | 접수일자 | 권리종류 | 권리자 | 채권금액 | 소멸여부 | 비고 |
|---|---|---|---|---|---|---|
| 1(갑1) | 2021-06-25 | 소유권보존 | 서OO | 0 | ||
| 2(을1) | 2021-08-12 | 근저당 | 초OOOOOOOO | 352,000,000 | 소멸 | 말소기준등기 |
| 3(갑2) | 2025-01-16 | 소유권이전청구권가등기 | 서OO | 0 | 소멸 | 매매예약 |
| 4(갑3) | 2025-03-27 | 강제경매 | 농OOOOOOOOOOOO | 32,412,680 | 소멸 | 2025타경30513 |
| 5(갑4) | 2025-04-16 | 가압류 | 농OOO | 130,142,536 | 소멸 | 2025카단201219 |
| 6(갑5) | 2025-04-29 | 가압류 | 토OOOOOO | 102,252,542 | 소멸 | 2025카단20359 |
| 7(을4) | 2025-05-30 | 근저당 | 황OO | 150,000,000 | 소멸 | |
| 8(갑6) | 2025-05-30 | 가압류 | 엔OOOOOOOOOOO | 10,635,734 | 소멸 | 2025카단20440 |
| 9(갑7) | 2025-06-10 | 가압류 | (OOOO | 112,520,795 | 소멸 | 2025카단10680 |
| 10(갑8) | 2025-06-10 | 가압류 | 강OOOOOOO | 25,500,000 | 소멸 | 2025카단10583 |
| 11(갑9) | 2025-07-16 | 임의경매 | 초OOOOOOOO | 311,288,359 | 소멸 | 2025타경30645 |
관련 문서 (PDF)
클릭하면 원본 파일이 열립니다