목록으로
최종 업데이트: 2026-04-27 05:02
2024타경406791
춘천지방법원 원주지원 2계(033-738-1121)
부동산
부동산강제경매
취하/변경
진행중
| 소재지 |
-
(강원특별자치도 횡성군 횡성읍 마옥리 269-2)
|
|---|---|
| 물건종류 | 주택 |
| 면적 |
토지: 0.00㎡ (0평)
건물: 346.29㎡ (104.75평)
|
| 현재 위치 | 강원특별자치도 횡성군 횡성읍 마옥리 269-2 |
| 소유자 / 채무자 | 홍○○ / 홍○○ |
| 채권자 | 김○○ |
| 배당종기일 | 2025-03-12 |
감정가
411,997,600
최저가
141,315,000
보증금
14,131,500
입찰 진행 내역
| 회차/구분 | 입찰기일 | 최저매각가격 | 결과 |
|---|---|---|---|
| 1차 (진행) | 2025-12-15 | 411,997,600 | 유찰 |
| 2차 (진행) | 2026-01-26 | 288,398,000 | 유찰 |
| 3차 (진행) | 2026-03-16 | 201,879,000 | 유찰 |
| (진행) | 2026-04-13 | 141,315,000 | 기각 |
진행 메모
본사건은 기각(으)로 경매절차가 종결되었습니다.
매각물건 현황
| 구분 | 순번 | 소재지 | 용도/구조/면적 | 감정가 | 비고 |
|---|---|---|---|---|---|
| 토지 | 토지 | 마옥리 269-2마○○ | 비행안전제3구역(전술),가축사육제한구역,성장관리계획구역,계획관리지역 / 대 963㎡ (291.31평) | 80,000 | 77,040,000원 |
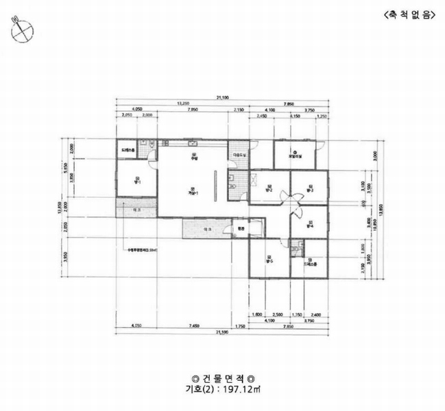
| 건물 | 성동로 401-30 [마옥리 269-2]성○○경량철골구조 경량철골구조위판넬및콘크리트슬라브지붕 | 단층 | 주택 / 197.12㎡(59.63평) | 1,230,000 | 242,457,600원 |
| 제시외건물및기타 | 1 | 성동로 401-30 [마옥리 269-2]성○○경량철골구조 등 1.경량철골구조, 2.각파이프조, 3.판넬조, 4.시멘트벽돌조 | 옥탑 / 주택(다락) | 85 | |
| 2 | 1층 | 차고 및 휴게실 | 58㎡(17.55평) / | 2,000,000 | 매각포함* 1,2층 소재 |
| 3 | 단층 | 창고 등 | 4㎡(1.21평) / | 300,000 | 매각포함 |
| 4 | 단층 | 창고 등 | 2㎡(0.61평) / | 200,000 | 매각포함 |
현황 및 위치
* 본건은 강원특별자치도 횡성군 횡성읍 옥동리 소재 옥동리 마을회관북서측 인근에 위치하며 주위는 단독주택 및 농경지임야 등이 소재하는 지역으로서 제반주위환경은 보통임, * 본건까지 차량을 통한 접근이 가능하며인근 버스정류장과의 거리운행 횟수 등을 고려할 때 대중교통사정은 보통임, , . * 부정형 완경사 토지로서 주거용 건부지로 이용 중임. * 서측 및 남동측으로 노폭 약 미터 내외의 도로와 접함4 .
참고사항
* 일괄매각. 제시외 건물 포함 * 토지 지상에 매각에서 제외되는 이동식창고 1동이 소재함 * 건물 지붕에 매각에서 제외되는 태양광 설비가 설치되어 있음
등기부 현황
건물
| 순위 | 접수일자 | 권리종류 | 권리자 | 채권금액 | 소멸여부 | 비고 |
|---|---|---|---|---|---|---|
| 1(갑1) | 2017-03-27 | 소유권보존 | 홍OO | 0 | ||
| 2(을1) | 2017-04-04 | 근저당 | 횡OOOOOO | 162,500,000 | 소멸 | 말소기준등기 |
| 3(을2) | 2019-03-21 | 근저당 | 횡OOOOOO | 42,000,000 | 소멸 | |
| 4(갑2) | 2023-10-10 | 압류 | 국OOOOOOOO | 0 | 소멸 | |
| 5(갑3) | 2024-01-25 | 가압류 | 김OO | 60,000,000 | 소멸 | 2024카단10006 |
| 6(갑4) | 2024-12-11 | 강제경매 | 김OO | 30,197,260 | 소멸 | 2024타경406791, 김명옥 가압류의 본 압류로의 이행 |
| 7(갑5) | 2024-12-19 | 압류 | 국OOOOOOO | 0 | 소멸 | |
| 8(갑6) | 2025-01-21 | 가압류 | 농OOOO | 191,755,182 | 소멸 | 2025카단13 |
| 9(갑7) | 2025-01-23 | 가압류 | 횡OOOOOO | 10,092,378 | 소멸 | 2025카단1 |
관련 문서 (PDF)
클릭하면 원본 파일이 열립니다