목록으로
최종 업데이트: 2026-04-22 13:21
2025타경1049
춘천지방법원 원주지원 3계(033-738-1122)
부동산
부동산임의경매
유찰
진행중
| 소재지 |
-
(강원특별자치도 원주시 문막읍 건등리 1714-9)
|
|---|---|
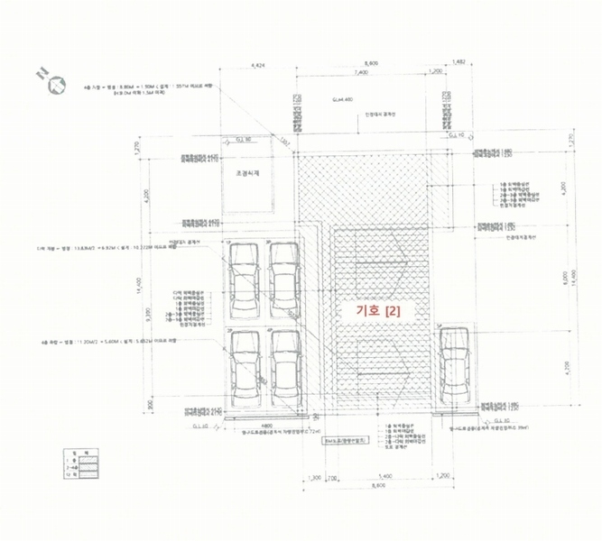
| 물건종류 | 근린주택 |
| 면적 |
토지: 0.00㎡ (0평)
건물: 463.62㎡ (140.25평)
|
| 현재 위치 | 강원특별자치도 원주시 문막읍 건등리 1714-9 |
| 소유자 / 채무자 | 전상하 / 전상하 |
| 채권자 | 원주밝음신협 |
| 배당종기일 | 2025-09-01 |
감정가
849,874,420
최저가
416,438,000
보증금
41,643,800
입찰 진행 내역
| 회차/구분 | 입찰기일 | 최저매각가격 | 결과 |
|---|---|---|---|
| 1차 (진행) | 2026-02-02 | 849,874,420 | 유찰 |
| 2차 (진행) | 2026-03-23 | 594,912,000 | 유찰 |
| 3차 (진행) | 2026-04-20 | 416,438,000 | |
| 4차 (진행) | 2026-06-01 | 291,507,000 |
임차인 현황
| 임차인명 | 점유여부 | 전입/확정/배당 | 보증금 / 차임 | 예상배당액 | 대항력 |
|---|---|---|---|---|---|
| 김재민 | 주거용 3층 302호 |
전입: -
확정: 2021-03-17 배당: 2025-03-26 |
35,000,000
월 0
|
0 | 없음 |
| 박서현 | 주거용 202호 |
전입: 2023-02-20
확정: 2023-02-20 배당: 2025-06-20 |
40,000,000
월 0
|
0 | 없음 |
| 이다경 | 주거용 201호 |
전입: 2022-04-19
확정: 2022-04-19 배당: 2025-06-16 |
55,000,000
월 0
|
0 | 없음 |
| 이지수 | 주거용 3층 301호 |
전입: 2022-02-23
확정: 2022-03-07 배당: 2025-06-27 |
55,000,000
월 0
|
0 | 없음 |
| 전봉자 | 주거용 미상 |
전입: 2019-01-10
확정: - 배당: - |
0
월 0
|
0 | 없음 |
| 정준환 | 주거용 3층 303호 |
전입: 2022-02-28
확정: 2022-02-28 배당: 2025-08-11 |
55,000,000
월 0
|
0 | 없음 |
| 한상희 | 주거용 401호 |
전입: 2025-02-19
확정: - 배당: - |
0
월 0
|
0 | 없음 |
매각물건 현황
| 구분 | 순번 | 소재지 | 용도/구조/면적 | 감정가 | 비고 |
|---|---|---|---|---|---|
| 토지 | 토지 | 건등리 1714-9 | 배출시설설치제한지역,제1종일반주거지역,지구단위계획구역,가축사육...배출시설설치제한지역,제1종일반주거지역,지구단위계획구역,가축사육제한구역,상대보호구역 / 대 231.9㎡ (70.15평) | 755,000 | 175,084,500원 |
| 건물 | 1 | 건등로 2-7 [건등리 1714-9]철근콘크리트구조 (철근)콘크리트지붕 | 1층 / 근린생활시설 | 87 | 1,408,000원 |
| 2 | 2층 | 주택 | 109.44㎡(33.11평) / 1,584,000원 | 173,352,960 | * 사용승인:2018.12.26* 공부상 제2종근린생활시설(사무소. 단독주택(1가구) |
| 3 | 3층 | 주택 | 101.38㎡(30.67평) / 1,584,000원 | 160,585,920 | * 사용승인:2018.12.26 |
| 4 | 4층 | 주택 | 99.64㎡(30.14평) / 1,584,000원 | 157,829,760 | * 사용승인:2018.12.26 |
| 제시외건물및기타 | 1 | 건등로 2-7 [건등리 1714-9]판넬조 판넬지붕 등 1.판넬조 판넬지붕, 2.철근콘크리트구조 철근콘크리트지붕 | / 창고 | 92 | |
| 2 | 다락 | 55.08㎡(16.66평) / | 58,000,000 | 매각포함 |
현황 및 위치
* 강원특별자치도 원주시 문막읍 건등리 소재 문막초등학교 남서측 인근에 위치하며, 주위는 주택, 근린생활시설 등으로 형성된 주택지대임. * 본건까지 차량 접근이 가능하며, 대중교통상황은 버스정류장과의 거리 및 운행횟수 등을 고려할 때 보통시 됨. * 정방형 평지의 토지로서 주상용임. * 본건 남서측으로 노폭 약 6m 내외의 포장도로가 소재함.
참고사항
* 일괄매각. 제시외 건물 포함 * 지상에 매각에서 제외된 컨테이너 1동 소재 * 건물은 일반건축물대장 및 건축물현황도상 1층 근린생활시설 1개호, 2층 근린생활시설 1개호, 주택 1가구, 3층 주택 2가구, 4층 주택 1가구로 등재되어 있으나 세대 분리 등으로 공부상 세대수와 현황 세대수의 차이가 있을 수 있는 바 경매(입찰) 진행 시 반드시 재확인 하시기 바람. * 건물의 2층 일부는 일반건축물대장상 근린생활시설로 등재되어 있으나 현장조사(인근 탐문조사 등) 시 현황 주택으로 이용 중인 것으로 조사되었는 바 현황을 기준하여 평가하였으며, 정확한 이용상황은 경매(입찰) 진행 시 재확인 하시기 바람. ☞현황서상 내용:1층: 건축물대장상 인터넷컴퓨터게임시설제공업소이나 현황은 일부는 인터넷컴퓨터게임시설제공업소, 일부는 원룸으로 보임,2층: 건축물대장상 단독주택(1가구)이나 현황은 201,202,203호로 되어 있음,3층: 건축물대장상 단독주택(2가구)이나 현황은 301,302,303호로 되어 있음,4층: 건축물대장상 단독주택(1가구)이고 현황도 1가구로 보임
등기부 현황
건물
| 순위 | 접수일자 | 권리종류 | 권리자 | 채권금액 | 소멸여부 | 비고 |
|---|---|---|---|---|---|---|
| 1(갑1) | 2018-12-26 | 소유권보존 | 전OO | 0 | ||
| 2(을1) | 2018-12-26 | 근저당 | 진OOOOOOOOOO | 372,000,000 | 소멸 | 말소기준등기확정채권양도전:원주밝음신용협동조합 |
| 3(갑4) | 2024-03-28 | 압류 | 국OOOOOOO | 0 | 소멸 | |
| 4(을2) | 2024-04-16 | 주택임차권(3층 303호) | 정OO | 55,000,000 | 소멸 | 전입:2022.02.28확정:2022.02.28 |
| 5(을3) | 2024-04-22 | 주택임차권(3층 301호) | 이OO | 55,000,000 | 소멸 | 전입:2022.02.23확정:2022.03.07 |
| 6(갑5) | 2024-05-22 | 압류 | 국OOOOOOOO | 0 | 소멸 | |
| 7(갑7) | 2024-08-16 | 가압류 | 강OOOOOOO | 23,665,000 | 소멸 | 2024카단11173 |
| 8(갑9) | 2024-11-15 | 압류 | 국OOOOOO | 0 | 소멸 | |
| 9(갑10) | 2025-02-11 | 가압류 | 소OOOOOOOOO | 18,660,567 | 소멸 | 2025카단10195 |
| 10(을4) | 2025-03-26 | 주택임차권(3층 302호) | 김OO | 35,000,000 | 소멸 | 전입:0000.00.00확정:2021.03.17 |
| 11(갑11) | 2025-05-30 | 임의경매 | 진OOOOOOOOOO | 344,437,205 | 소멸 | 2025타경1049 |
관련 문서 (PDF)
클릭하면 원본 파일이 열립니다