목록으로
최종 업데이트: 2026-04-23 04:45
2025타경9530
서울남부지방법원 본원 4계(02-2192-1334)
부동산
부동산강제경매
매각
진행중
| 소재지 |
서울특별시 양천구 오목로10길 10, 레베랑스 에이동 6층 601호
(서울특별시 양천구 신월동 513-7)
|
|---|---|
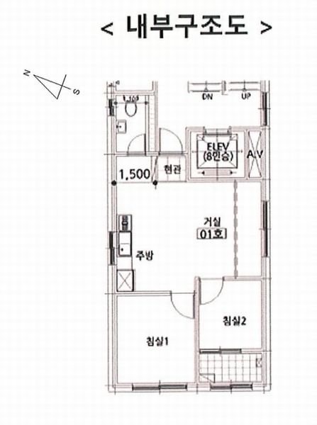
| 물건종류 | 다세대(빌라)[공급19평형] |
| 면적 |
토지: 22.17㎡ (6.71평)
건물: 37.99㎡ (11.49평)
|
| 현재 위치 | 서울특별시 양천구 오목로10길 10, 레베랑스 에이동 6층 601호 |
| 소유자 / 채무자 | 망 김대성의 상속재산관리인 김효정 / 망 김대성의 상속재산관리인 김효정 |
| 채권자 | 주택도시보증공사 |
| 배당종기일 | 2025-07-15 |
감정가
312,000,000
최저가
159,744,000
보증금
15,974,400
진행 상태 / 매각 결과
매각
completed = false
매각허가결정
| 상태 코드 | 2 | 상태 텍스트 | 매각허가결정 |
|---|---|---|---|
| 매각가 | 175,247,400원 | 매각가율 | 0% |
| 입찰 수 | 2 | 매수인 | 양천구 김경순 |
| 차순위 입찰가 | 161,500,000원 | 매각허가 결정 | 매각허가결정 |
| 매각허가 결정일 | 2026-03-18 | 대금 지급기한 | - |
| 대금 지급상태 | - | 배당기일 | - |
| 배당 종결일 | - | 다음 확인 예정 | 2026-04-24 09:00 |
입찰 진행 내역
| 회차/구분 | 입찰기일 | 최저매각가격 | 결과 |
|---|---|---|---|
| 1차 (진행) | 2025-10-23 | 312,000,000 | 유찰 |
| 2차 (진행) | 2025-11-26 | 249,600,000 | 유찰 |
| 3차 (진행) | 2026-01-21 | 199,680,000 | 유찰 |
| 4차 (진행) | 2026-03-11 | 159,744,000 |
진행 메모
매각 : 175,247,400 원 (56.17%)
(입찰 2 명,매수인:양천구 김경순 / 차순위금액 161,500,000원)
매각결정기일 : 2026.03.18 - 매각허가결정
대금지급기한 : 2026.04.23
대금납부 2026.03.26 / 배당기일 2026.05.12
임차인 현황
| 임차인명 | 점유여부 | 전입/확정/배당 | 보증금 / 차임 | 예상배당액 | 대항력 |
|---|---|---|---|---|---|
| 박지선 | 주거용 건물전부 |
전입: 2020-08-31
확정: 2020-07-30 배당: 2023-09-18 |
247,000,000
월 0
|
0 | 있음 |
| 주택도시보증공사 | 주거용 에이동 601호 전부 |
전입: 2020-08-31
확정: 2020-07-30 배당: 2025-06-24 |
247,000,000
월 0
|
0 | 있음 |
매각물건 현황
| 구분 | 순번 | 소재지 | 용도/구조/면적 | 감정가 | 비고 |
|---|---|---|---|---|---|
| 건물 | 6층중 6층 | 18.08.31 | 37.99㎡(11.49평)[공급19평] / 주거용 | 93,600,000 | * 도시가스보일러에 의한 난방 |
현황 및 위치
* 본건은 서울특별시 양천구 신월동 소재 ‘강서초등학교’ 남동측 인근에 위치하며, 주위는 아파트, 다세대주택, 공원 등이 소재하는 주택지대로서 제반 주위환경은 무난함. * 본건 건물까지 차량의 진출입이 가능하며, 인근에 버스정류장 및 근거리에 신정네거리역(2호선)이 소재하는 등 제반 교통상황은 무난함. * 인접토지와 등고평탄한 3필 일단의 부정형 토지로서, 도시형생활주택(단지형다세대주택) 건부지로 이용 중임. * 동측으로 폭 약 5미터 내외, 남측으로 폭 약 4미터 내외의 포장도로와 접하였음.
참고사항
* 외필지 :신월동 513-8, 513-17
등기부 현황
건물
| 순위 | 접수일자 | 권리종류 | 권리자 | 채권금액 | 소멸여부 | 비고 |
|---|---|---|---|---|---|---|
| 1(갑5) | 2020-08-31 | 소유권이전(매매) | 김OO | 0 | 거래가액:247,000,000 | |
| 2(갑8) | 2022-10-19 | 압류 | 양OOOOOOOOO | 0 | 소멸 | 말소기준등기 |
| 3(갑9) | 2022-12-08 | 압류 | 국OOOOOOOO | 0 | 소멸 | |
| 4(을1) | 2023-09-18 | 주택임차권(건물전부) | 박OO | 247,000,000 | 소멸 | 전입:2020.08.31확정:2020.07.30 |
| 5(갑10) | 2025-04-11 | 강제경매 | 주OOOOOOOOOOOOOOO | 247,000,000 | 소멸 | 2025타경9530 |
관련 문서 (PDF)
클릭하면 원본 파일이 열립니다