목록으로
최종 업데이트: 2026-04-23 04:46
2025타경9698
서울남부지방법원 본원 4계(02-2192-1334)
부동산
부동산강제경매
매각
진행중
| 소재지 |
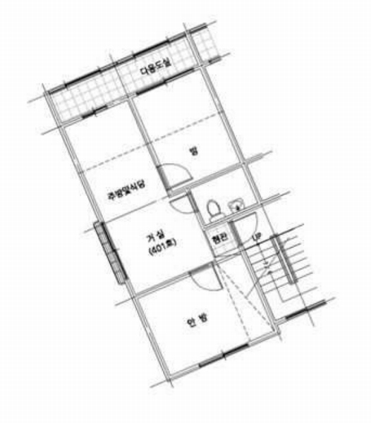
서울특별시 강서구 초록마을로7길 11, 이스트빌 4층 401호
(서울특별시 강서구 화곡동 51-26)
|
|---|---|
| 물건종류 | 다세대(빌라)[공급16평형] |
| 면적 |
토지: 20.07㎡ (6.07평)
건물: 49.56㎡ (14.99평)
|
| 현재 위치 | 서울특별시 강서구 초록마을로7길 11, 이스트빌 4층 401호 |
| 소유자 / 채무자 | 이재훈 / 이재훈 |
| 채권자 | 주택도시보증공사 |
| 배당종기일 | 2025-07-28 |
감정가
237,000,000
최저가
121,344,000
보증금
12,134,400
진행 상태 / 매각 결과
매각
completed = false
매각허가결정
| 상태 코드 | 2 | 상태 텍스트 | 매각허가결정 |
|---|---|---|---|
| 매각가 | 130,336,000원 | 매각가율 | 0% |
| 입찰 수 | 2 | 매수인 | 성남시 김보람 |
| 차순위 입찰가 | 121,355,000원 | 매각허가 결정 | 매각허가결정 |
| 매각허가 결정일 | 2026-03-18 | 대금 지급기한 | - |
| 대금 지급상태 | - | 배당기일 | - |
| 배당 종결일 | - | 다음 확인 예정 | 2026-04-24 09:00 |
입찰 진행 내역
| 회차/구분 | 입찰기일 | 최저매각가격 | 결과 |
|---|---|---|---|
| 1차 (진행) | 2025-10-23 | 237,000,000 | 유찰 |
| 2차 (진행) | 2025-11-26 | 189,600,000 | 유찰 |
| 3차 (진행) | 2026-01-21 | 151,680,000 | 유찰 |
| 4차 (진행) | 2026-03-11 | 121,344,000 |
진행 메모
매각 : 130,336,000 원 (54.99%)
(입찰 2 명,매수인:성남시 김보람 / 차순위금액 121,355,000원)
매각결정기일 : 2026.03.18 - 매각허가결정
대금지급기한 : 2026.04.23
대금납부 2026.04.02 / 배당기일 2026.05.12
임차인 현황
| 임차인명 | 점유여부 | 전입/확정/배당 | 보증금 / 차임 | 예상배당액 | 대항력 |
|---|---|---|---|---|---|
| 김은철 | 주거용 전부 |
전입: 2021-09-13
확정: 2021-08-05 배당: 2023-09-25 |
200,000,000
월 0
|
0 | 있음 |
| 주택도시보증공사 | 주거용 전부 |
전입: 2021-09-13
확정: 2021-08-05 배당: 2025-07-23 |
200,000,000
월 0
|
0 | 있음 |
매각물건 현황
| 구분 | 순번 | 소재지 | 용도/구조/면적 | 감정가 | 비고 |
|---|---|---|---|---|---|
| 건물 | 5층중 4층 | 10.08.06 | 49.56㎡(14.99평)[공급16평] / 주거용 | 71,100,000 | * 도시가스에 의한 개별난방설비 |
현황 및 위치
* 본건은 서울특별시 강서구 화곡동 소재 “화곡초등학교” 동측 인근에 위치하며, 주위는 다세대주택, 다가구주택, 학교 및 근린생활시설 등이 혼재한 주거지대로 제반 주위환경은 보통임. * 본건까지 차량 접근이 가능하며, 인근에 노선버스정류장 등이 소재하는 등 교통상황은 보통임. * 인접지 및 인접도로와 등고평탄한 정방형 토지로서, 다세대주택(8세대) 건부지로 이용중임. * 동측으로 노폭 약 6m 내외의 포장도로에 접함.
참고사항
* 본건 401호는 변동사항이 2014년 9월 17일자로 집합건축물대장 표제부상 특정건축물 정리에 관한 특별조치법(법률 제11930호, 2013.7.16.) 및 건축과-23508(2014.09.17.)호에 의거 사용승인(증축면적) : 기존 전용면적 401호 34.48㎡ → 49.56㎡로 사용승인되었음이 기재되어 있으므로 경매진행 및 입찰시 참조하시기 바랍니다
등기부 현황
건물
| 순위 | 접수일자 | 권리종류 | 권리자 | 채권금액 | 소멸여부 | 비고 |
|---|---|---|---|---|---|---|
| 1(갑3) | 2021-09-13 | 소유권이전(매매) | 이OO | 0 | 거래가액:200,000,000 | |
| 2(을3) | 2023-09-25 | 주택임차권(전부) | 김OO | 200,000,000 | 소멸 | 전입:2021.09.13확정:2021.08.05 |
| 3(갑6) | 2024-03-04 | 가압류 | 서OOOOOO | 12,534,969 | 소멸 | 말소기준등기2024카단804784 |
| 4(갑7) | 2025-04-24 | 강제경매 | 주OOOOOOOOOOOOOOOOO | 200,000,000 | 소멸 | 2025타경9698 |
| 5(갑8) | 2025-09-08 | 압류 | 미OOOOOOOOOO | 0 | 소멸 |
관련 문서 (PDF)
클릭하면 원본 파일이 열립니다