목록으로
최종 업데이트: 2026-04-22 13:21
2025타경4445
청주지방법원 본원 1계(043-249-7301)
부동산
부동산임의경매
유찰
진행중
| 소재지 |
-
(충청북도 청주시 상당구 가덕면 상대리 294-4)
|
|---|---|
| 물건종류 | 주택 |
| 면적 |
토지: 0.00㎡ (0평)
건물: 342.09㎡ (103.48평)
|
| 현재 위치 | 충청북도 청주시 상당구 가덕면 상대리 294-4 |
| 소유자 / 채무자 | 전상원 / 전상원 |
| 채권자 | 청주중앙새마을금고 |
| 배당종기일 | 2025-12-02 |
감정가
874,001,700
최저가
428,260,000
보증금
42,826,000
입찰 진행 내역
| 회차/구분 | 입찰기일 | 최저매각가격 | 결과 |
|---|---|---|---|
| 1차 (진행) | 2026-02-10 | 874,001,700 | 유찰 |
| 2차 (진행) | 2026-03-17 | 611,801,000 | 유찰 |
| 3차 (진행) | 2026-04-21 | 428,260,000 | |
| 4차 (진행) | 2026-05-26 | 299,782,000 |
임차인 현황
| 임차인명 | 점유여부 | 전입/확정/배당 | 보증금 / 차임 | 예상배당액 | 대항력 |
|---|---|---|---|---|---|
| 함선현 | 주거용 토5, 건1-3 |
전입: 2024-06-03
확정: 2025-08-20 배당: 2025-11-04 |
50,000,000
월 0
|
0 | 있음 |
매각물건 현황
| 구분 | 순번 | 소재지 | 용도/구조/면적 | 감정가 | 비고 |
|---|---|---|---|---|---|
| 토지 | 토지 | 1 | 상대리 294-4 / 비행안전제2구역(지원),자연취락지구,도시지역,보전녹지지역,자연녹지...비행안전제2구역(지원),자연취락지구,도시지역,보전녹지지역,자연녹지지역,공익용산지,지적재조사사업지구,가축사육제한구역 | 60 | 143,000원(45,000원) |
| 토지 | 2 | 상대리 294-17 | 비행안전제2구역(지원),도시지역,보전녹지지역,공익용산지,지적재조사...비행안전제2구역(지원),도시지역,보전녹지지역,공익용산지,지적재조사사업지구,가축사육제한구역 / 도로 29㎡ (8.77평) | 143,000 | 4,147,000원 |
| 토지 | 3 | 상대리 294-20 | 비행안전제2구역(지원),도시지역,보전녹지지역,공익용산지,지적재조사...비행안전제2구역(지원),도시지역,보전녹지지역,공익용산지,지적재조사사업지구,가축사육제한구역 / 도로 1.2㎡ (0.36평) | 143,000 | 171,600원 |
| 토지 | 4 | 상대리 294-22 | 비행안전제2구역(지원),도시지역,보전녹지지역,공익용산지,지적재조사...비행안전제2구역(지원),도시지역,보전녹지지역,공익용산지,지적재조사사업지구,가축사육제한구역 / 도로 19㎡ (5.75평) | 143,000 | 2,717,000원 |
| 토지 | 5 | 상대리 294-19 | 비행안전제2구역(지원),도시지역,보전녹지지역,공익용산지,지적재조사...비행안전제2구역(지원),도시지역,보전녹지지역,공익용산지,지적재조사사업지구,가축사육제한구역 / 대 663㎡ (200.56평) | 419,000 | 277,797,000원 |
| 건물 | 1 | 고은두산로 191-12 [상대리 294-19 주건축물제에이동]철근콘크리트구조 슬래브지붕 | 1층 / 단독주택 | 118 | 2,150,000원 |
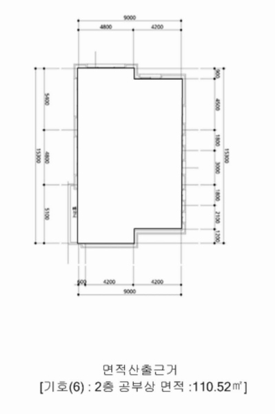
| 2 | 2층 | 단독주택 | 110.52㎡(33.43평) / 2,150,000원 | 237,618,000 | * 사용승인:2024.08.01 |
| 3 | 고은두산로 191-12 [상대리 294-19 주건축물제비동]철근콘크리트구조 슬래브지붕 | 지하1층 | 차고 / 113.4㎡(34.3평) | 784,000 | 88,905,600원 |
현황 및 위치
* 본건은 충청북도 청주시 상당구 가덕면 상대리 소재 ""상대1구 마을회관"" 남측 인근에 위치하며 부근은 전원주택으로 조성된 단독주택과 농경지, 자연림 등이 혼재된 전원주택지대임. * 본건까지 제반 차량의 출입이 가능하며, 인근 간선도로에 버스정류장이 소재하나 면소재지 및 시내와의 거리 등을 감안시 일반적 교통상황은 보통시됨. * (1)~(4) : 도로임. (5) : 완경사지대내 조성된 사다리형의 단독주택 부지로 이용중임. * (1)~(4) : 도로임. (5) : 본건 서측 및 동측으로 (1)~(4)의 콘크리트 포장된 도로와 접하고 있음.
참고사항
* 일괄매각. * 토1,2,3,4) 토지는 지분 매각함. * 토1,2,3,4,5) 토지는 향후 지적재조사 결과에 따라 토지의 면적이 변경될 수 있음. * 토5) 토지지상의정원에식재된소규모조경수나 마당포장 울타리 등은 통상적인 단독주택의 부속물로서 일반적으로 토지 및 건물과 일체로 거래되는 것이 일반적이므로 별도로 평가하지 아니하고 본건 토지 및 건물에 포함하여 평가하였으니 경매진행시 유의바람-토지는 토지대장상 2025년 04월 25일 지적재조사 지구지정으로 표기되어있으며, 향후 지적재조사 결과에 따라 토지의 면적 등이 변경될 수 있으니 유의바람
등기부 현황
건물
| 순위 | 접수일자 | 권리종류 | 권리자 | 채권금액 | 소멸여부 | 비고 |
|---|---|---|---|---|---|---|
| 1(갑1) | 2024-09-03 | 소유권보존 | 전OO | 0 | ||
| 2(을1) | 2024-09-03 | 근저당 | 청OOOOOOOO | 530,000,000 | 소멸 | 말소기준등기 |
| 3(갑2) | 2024-10-02 | 압류 | 국OOOOOOOOO | 0 | 소멸 | |
| 4(갑3) | 2024-10-30 | 가압류 | 장OO | 57,439,143 | 소멸 | 2024카단53365 |
| 5(갑4) | 2025-07-31 | 가압류 | 에OOOOOO | 340,400,000 | 소멸 | 2025카단5629 |
| 6(갑5) | 2025-09-01 | 임의경매 | 청OOOOOOOO | 432,439,440 | 소멸 | 2025타경4445 |
관련 문서 (PDF)
클릭하면 원본 파일이 열립니다