목록으로
최종 업데이트: 2026-04-24 03:20
2025타경51721
청주지방법원 본원 3계(043-249-7303)
부동산
임의경매(공유물분할을위한경매)
매각
진행중
| 소재지 |
-
(충청북도 진천군 이월면 내촌리 743)
|
|---|---|
| 물건종류 | 주택 |
| 면적 |
토지: 0.00㎡ (0평)
건물: 133.72㎡ (40.45평)
|
| 현재 위치 | 충청북도 진천군 이월면 내촌리 743 |
| 소유자 / 채무자 | 오옥분 외 1명 / 오옥분 |
| 채권자 | (주)비봄 |
| 배당종기일 | 2025-12-08 |
감정가
152,807,200
최저가
106,965,000
보증금
10,696,500
진행 상태 / 매각 결과
매각
completed = false
매각허가결정
| 상태 코드 | 2 | 상태 텍스트 | 매각허가결정 |
|---|---|---|---|
| 매각가 | 110,200,000원 | 매각가율 | 0% |
| 입찰 수 | 2 | 매수인 | 서영희 |
| 차순위 입찰가 | 108,690,000원 | 매각허가 결정 | 매각허가결정 |
| 매각허가 결정일 | 2026-03-25 | 대금 지급기한 | - |
| 대금 지급상태 | - | 배당기일 | - |
| 배당 종결일 | - | 다음 확인 예정 | 2026-04-25 09:00 |
입찰 진행 내역
| 회차/구분 | 입찰기일 | 최저매각가격 | 결과 |
|---|---|---|---|
| 1차 (진행) | 2026-02-11 | 152,807,200 | 유찰 |
| 2차 (진행) | 2026-03-18 | 106,965,000 |
진행 메모
매각 : 110,200,000 원 (72.12%)
(입찰 2 명,매수인:서영희 / 차순위금액 108,690,000원)
매각결정기일 : 2026.03.25 - 매각허가결정
대금지급기한 : 2026.05.01
대금납부 2026.04.06 / 배당기일 2026.05.12
매각물건 현황
| 구분 | 순번 | 소재지 | 용도/구조/면적 | 감정가 | 비고 |
|---|---|---|---|---|---|
| 토지 | 토지 | 내촌리 743 | 계획관리지역,자연취락지구,가축사육제한구역 / 대 314.6㎡ (95.17평) | 255,000 | 80,223,000원 |
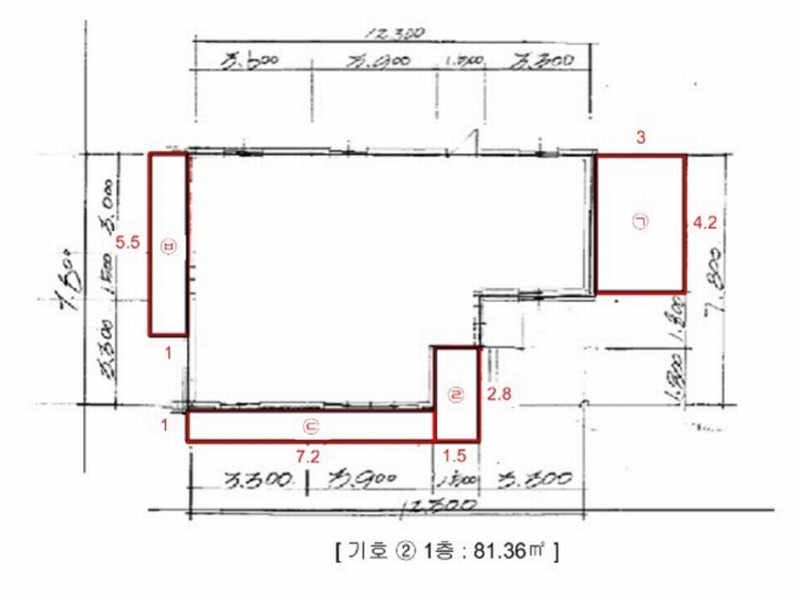
| 건물 | 문화마을길 19-5 [내촌리 743]조적조 슬래브지붕 | 단층 | 주택 / 81.36㎡(24.61평) | 600,000 | 48,816,000원 |
| 제시외건물및기타 | 1 | 문화마을길 19-5 [내촌리 743]조적조 함석지붕 등 1.조적조 함석지붕, 2.샤시조 슬래브지붕, 3.파이프조 썬라이트지붕, 4.판넬조 판넬지붕 | 1층 / 창고 | 12 | |
| 2 | 1층 | 베란다 | 7.2㎡(2.18평) / | 4,176,000 | 매각포함 |
| 3 | 1층 | 가추 | 4.2㎡(1.27평) / | 840,000 | 매각포함 |
| 4 | 1층 | 보일러실 | 5.5㎡(1.66평) / | 1,375,000 | 매각포함 |
| 5 | 내촌리 743조적조 판넬지붕 등 5.조적조 판넬지붕, 6.조적조 | 1층 | 창고 / 9㎡(2.72평) | 0 | 3,240,000원 |
| 6 | 지하 | 창고 | 13.86㎡(4.19평) / | 7,207,200 | 매각포함 |
현황 및 위치
* 본건은 충청북도 진천군 이월면 내촌리 소재 "문화마을" 내에 위치하며 인근은 단독주택, 농경지, 근린생활시설 등이 혼재되어 있음 * 본건까지 차량 접근이 가능하며, 인근에 버스정류장이 소재하고, 인근 간선도로를 통한 차량 접근성은 보통인바, 제반 교통상황은 보통시됨 * 인접지 대비 평지의 가장형 토지로서, 기준시점 현재 "단독주택" 건부지로 이용중임 * 북동측으로 노폭 약 7m 내외의 포장도로가 소재함
참고사항
* 일괄매각. 제시외 건물 포함 ☞현황서상 내용: 제시외소재함 1. 철재파이프조 썬라이트 비가림시설.
등기부 현황
건물
| 순위 | 접수일자 | 권리종류 | 권리자 | 채권금액 | 소멸여부 | 비고 |
|---|---|---|---|---|---|---|
| 1(갑2) | 2022-10-28 | 소유권이전(상속) | 오OOOOOO | 0 | 협의분할에 의한 상속, 오옥분 7/9, 이상수 2/9 | |
| 3(갑8) | 2025-09-08 | 임의경매 | (OOOO | 0 | 소멸 | 말소기준등기2025타경51721 |
관련 문서 (PDF)
클릭하면 원본 파일이 열립니다