목록으로
최종 업데이트: 2026-04-22 13:21
2025타경4087
청주지방법원 본원 7계(043-249-7307)
부동산
부동산임의경매
유찰
진행중
| 소재지 |
-
(충청북도 괴산군 괴산읍 검승리 282-5)
|
|---|---|
| 물건종류 | 주택 |
| 면적 |
토지: 0.00㎡ (0평)
건물: 224.71㎡ (67.97평)
|
| 현재 위치 | 충청북도 괴산군 괴산읍 검승리 282-5 |
| 소유자 / 채무자 | 윤지훈 / 윤명호 |
| 채권자 | 괴산증평산림조합 |
| 배당종기일 | 2025-11-24 |
감정가
280,176,850
최저가
96,100,000
보증금
9,610,000
입찰 진행 내역
| 회차/구분 | 입찰기일 | 최저매각가격 | 결과 |
|---|---|---|---|
| 1차 (진행) | 2026-01-15 | 280,176,850 | 유찰 |
| 2차 (진행) | 2026-02-19 | 196,123,000 | 유찰 |
| 3차 (진행) | 2026-03-26 | 137,286,000 | 유찰 |
| 4차 (진행) | 2026-04-30 | 96,100,000 |
임차인 현황
| 임차인명 | 점유여부 | 전입/확정/배당 | 보증금 / 차임 | 예상배당액 | 대항력 |
|---|---|---|---|---|---|
| 김경순 | 주거용 전체 및 제시외 1번 ~ 4번 |
전입: -
확정: - 배당: - |
50,000,000
월 0
|
0 | 없음 |
매각물건 현황
| 구분 | 순번 | 소재지 | 용도/구조/면적 | 감정가 | 비고 |
|---|---|---|---|---|---|
| 토지 | 토지 | 1 | 검승리 282-5 / 계획관리지역,가축사육제한구역,성장관리계획구역 | 910 | 111,000원(87,100원) |
| 토지 | 2 | 검승리 282-9 | 준보전산지,계획관리지역,가축사육제한구역,성장관리계획구역 / 임야 465㎡ (140.66평) | 51,000 | 23,715,000원 |
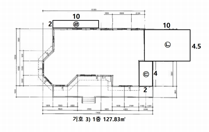
| 건물 | 1 | 충민로기곡1길 37 [검승리 282-5]일반철골구조 철판넬지붕 | 1층 / 단독주택 | 127 | 735,000원 |
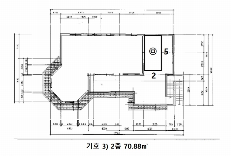
| 2 | 2층 | 단독주택 | 70.88㎡(21.44평) / 735,000원 | 52,096,800 | * 사용승인:2005.09.30 |
| 제시외건물및기타 | 1 | 검승리 282-5철골조 아스팔트슁글지붕 등 1.철골조 아스팔트슁글지붕, 2.판넬조 판넬지붕, 3.판넬조 판넬지붕, 4.철골조 판넬지붕, 5.판넬조 판넬지붕 | 1층 / 휴게시설 | 20 | |
| 2 | 1층 | 창고 등 | 45㎡(13.61평) / | 2,250,000 | 매각제외 |
| 3 | 1층 | 창고 등 | 20㎡(6.05평) / | 1,600,000 | 매각제외 |
| 4 | 1층 | 계단실 | 16㎡(4.84평) / | 6,400,000 | 매각포함* 1,2층 |
| 5 | 2층 | 창고 | 10㎡(3.03평) / | 3,000,000 | 매각포함 |
현황 및 위치
* 본건은 충청북도 괴산군 괴산읍 검승리 소재 ""기곡리노인회관"" 남동측 인근에 위치하며, 주위는 주택, 농경지 및 임야 등이 소재하여 제반 주위환경은 보통시 됨. * 본건까지 차량접근이 가능하며, 인근에 간선도로 및 버스정류장이 소재하여 제반 교통상황은 보통시 됨. * 1) 사다리형 완경사지로 단독주택 건부지로 이용중임. 2) 부정형 완경사지로 임야기타로 이용중임. * 1) 서측으로 로폭 약 3M 내외의 포장도로와 접함. 2) 남서측으로 로폭 약 3M 내외의 포장도로와 접함.
참고사항
* 일괄매각 * 제시외 건물 매각포함. * 제시외 철골조 아스팔트슁글지붕 휴게시설, 판넬조 판넬지붕 창고(45㎡)등, 판넬조 판넬지붕 창고(20㎡)등, 본건 지상에 소재하는 저온창고, 견사, 소나무 등 매각제외함. * 본건 지상에 데크 및 소나무 등 제시외 수목이 식재되어 있으나, 이는 세입자 소유인 것으로 탐문조사되었는 바, 경매 진행 및 응찰시 참고 바람. ☞현황서상 내용:제시외 토1,2) 지상에(임차인 김경순 소유, 점유) (1) 경량철골조 강판지붕 창고.(2) 쇠파이프조 판넬지붕 저온저장고
등기부 현황
건물
| 순위 | 접수일자 | 권리종류 | 권리자 | 채권금액 | 소멸여부 | 비고 |
|---|---|---|---|---|---|---|
| 1(갑15) | 2013-01-17 | 소유권이전(매매) | 윤OO | 0 | 2014년4월7일 가등기에 기한 본등기이행 | |
| 2(을15) | 2016-05-17 | 근저당 | 괴OOOOOOO | 156,000,000 | 소멸 | 말소기준등기 |
| 3(갑30) | 2023-08-31 | 압류 | 국OOOOOOOO | 0 | 소멸 | |
| 4(갑32) | 2024-07-01 | 가압류 | 소OOOOOOOOO | 12,870,926 | 소멸 | 2024카단54393 |
| 5(갑36) | 2024-11-08 | 소유권이전청구권가등기 | 김OO | 0 | 소멸 | 매매예약 |
| 6(갑37) | 2024-12-18 | 압류 | 괴OO | 0 | 소멸 | |
| 7(갑30) | 2025-05-02 | 공매공고 | 국OOOOOOOO | 0 | 소멸 | (한국자산관리공사2024-06941-006) |
| 8(갑39) | 2025-08-21 | 임의경매 | 괴OOOOOOO | 113,876,833 | 소멸 | 2025타경4087 |
관련 문서 (PDF)
클릭하면 원본 파일이 열립니다