목록으로
최종 업데이트: 2026-04-22 13:21
2025타경51345
청주지방법원 본원 2계(043-249-7302)
부동산
부동산강제경매
유찰
진행중
| 소재지 |
-
(충청북도 청주시 흥덕구 봉명동 1265)
|
|---|---|
| 물건종류 | 주택 |
| 면적 |
토지: 0.00㎡ (0평)
건물: 71.56㎡ (21.65평)
|
| 현재 위치 | 충청북도 청주시 흥덕구 봉명동 1265 |
| 소유자 / 채무자 | 최은애 / 최은애 |
| 채권자 | 충북신용보증재단 |
| 배당종기일 | 2025-09-04 |
감정가
208,639,480
최저가
50,095,000
보증금
5,009,500
입찰 진행 내역
| 회차/구분 | 입찰기일 | 최저매각가격 | 결과 |
|---|---|---|---|
| 1차 (진행) | 2025-12-09 | 208,639,480 | 유찰 |
| 2차 (진행) | 2026-01-13 | 146,048,000 | 유찰 |
| 3차 (진행) | 2026-02-24 | 102,234,000 | 유찰 |
| 4차 (진행) | 2026-03-31 | 71,564,000 | 유찰 |
| 5차 (진행) | 2026-05-12 | 50,095,000 |
임차인 현황
| 임차인명 | 점유여부 | 전입/확정/배당 | 보증금 / 차임 | 예상배당액 | 대항력 |
|---|---|---|---|---|---|
| 이은호 | 주거용 전체 및 제시외 1번 |
전입: 2022-07-06
확정: - 배당: - |
85,000,000
월 0
|
0 | 있음 |
매각물건 현황
| 구분 | 순번 | 소재지 | 용도/구조/면적 | 감정가 | 비고 |
|---|---|---|---|---|---|
| 토지 | 토지 | 봉명동 1265 | 상대보호구역,지구단위계획구역,주거용지,도시지역,가축사육제한구역,...상대보호구역,지구단위계획구역,주거용지,도시지역,가축사육제한구역,제2종일반주거지역 / 대 156.4㎡ (47.31평) | 1,040,000 | 162,656,000원 |
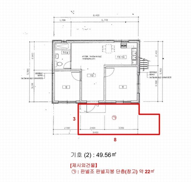
| 건물 | 1순환로634번길 53-6 [봉명동 1265]벽돌구조 (철근)콘크리트지붕 | 단층 | 단독주택 / 49.56㎡(14.99평) | 833,000 | 41,283,480원 |
| 제시외건물 | 봉명동 1265판넬조 판넬지붕 | 단층 | 창고 / 22㎡(6.66평) | 0 | 4,700,000원 |
현황 및 위치
* 본건은 충청북도 청주시 흥덕구 복대동 소재 “청주고등학교” 북측 인근에 위치하며 주위에는 단독주택, 근린생활시설, 상가 등이 혼재되어 있는 등 제반 주위환경 보통시 됨. * 본건 인근까지 차량으로 접근이 가능하며, 인근에 간선도로 및 버스정류장이 소재하는 등 제반 교통상황 보통시 됨. * 정방형 평지로서, 단독주택 건부지로 이용중임 * 본건 북동측으로 노폭 약 3미터 내외의 보도블록 포장도로를 통하여 접근 가능함
참고사항
* 일괄매각. 제시외 건물 매각 포함
등기부 현황
건물
| 순위 | 접수일자 | 권리종류 | 권리자 | 채권금액 | 소멸여부 | 비고 |
|---|---|---|---|---|---|---|
| 1(갑3) | 2021-12-31 | 소유권이전(매매) | 최OO | 0 | ||
| 2(갑8) | 2025-06-04 | 강제경매 | 충OOOOOOO | 40,335,749 | 소멸 | 말소기준등기2025타경51345 |
| 3(갑9) | 2025-07-24 | 강제경매 | 신OOOOOO | 28,520,567 | 소멸 | 2025타경51555 |
관련 문서 (PDF)
클릭하면 원본 파일이 열립니다