목록으로
최종 업데이트: 2026-04-22 13:21
2025타경501909
대전지방법원 본원 10계(042-470-1810)
부동산
부동산강제경매
유찰
진행중
| 소재지 |
세종특별자치시 갈매로 364, 푸르지오시티 15층 1551호
(세종특별자치시 어진동 656)
|
|---|---|
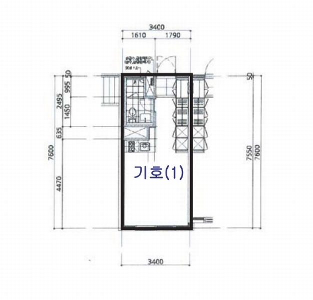
| 물건종류 | 오피스텔[계약17평형] |
| 면적 |
토지: 6.28㎡ (1.9평)
건물: 24.32㎡ (7.36평)
|
| 현재 위치 | 세종특별자치시 갈매로 364, 푸르지오시티 15층 1551호 |
| 소유자 / 채무자 | 김광오 / 김광오 |
| 채권자 | 문승규 |
| 배당종기일 | 2025-06-03 |
감정가
105,000,000
최저가
12,352,000
보증금
1,235,200
입찰 진행 내역
| 회차/구분 | 입찰기일 | 최저매각가격 | 결과 |
|---|---|---|---|
| 1차 (진행) | 2025-09-04 | 105,000,000 | 유찰 |
| 2차 (진행) | 2025-10-16 | 73,500,000 | 유찰 |
| 3차 (진행) | 2025-11-13 | 51,450,000 | 유찰 |
| 4차 (진행) | 2025-12-18 | 36,015,000 | 유찰 |
| 5차 (진행) | 2026-01-29 | 25,210,000 | 유찰 |
| 6차 (진행) | 2026-03-05 | 17,647,000 | 유찰 |
| 7차 (진행) | 2026-04-30 | 12,352,000 | |
| 8차 (진행) | 2026-06-04 | 8,646,000 |
임차인 현황
| 임차인명 | 점유여부 | 전입/확정/배당 | 보증금 / 차임 | 예상배당액 | 대항력 |
|---|---|---|---|---|---|
| 문승규 | 주거용 전부 |
전입: 2021-12-27
확정: 2021-12-27 배당: 2025-03-06 |
105,000,000
월 0
|
0 | 있음 |
매각물건 현황
| 구분 | 순번 | 소재지 | 용도/구조/면적 | 감정가 | 비고 |
|---|---|---|---|---|---|
| 건물 | 20층중 15층 | 14.09.04 | 24.324㎡(7.36평)[계약17평] / 업무시설(오피스텔) | 73,500,000 |
현황 및 위치
*본건은 세종특별자치시 보람동 소재 "한국토지주택공사 세종특별본부" 북서측 인근에 위치하며, 주위는 정부세종청사,오피스텔, 근린생활시설 등이 혼재하는 지역으로서, 제반 주위환경 등은 보통임. *본건까지 제반 차량의 접근이 용이하고 인근에 버스승강장이 소재하는 바, 교통사정 등은 무난시 됨. *대체로 사다리형 평지로서, 업무시설 및 근린생활시설 건부지로 이용 중임. *본건 주위로 대로 및 중로 등에 접함.
전문가 코멘트
☞ 본건은 소액임차인의 최우선변제금 지급기준이 되는 담보물권이 없어 배당시점을 기준으로 소액임차인을 판단하였으니 참고하시기 바랍니다.
등기부 현황
건물
| 순위 | 접수일자 | 권리종류 | 권리자 | 채권금액 | 소멸여부 | 비고 |
|---|---|---|---|---|---|---|
| 1(갑5) | 2021-12-27 | 소유권이전(매매) | 김OO | 0 | 거래가액:104,000,000 | |
| 2(을1) | 2025-02-26 | 주택임차권(전부) | 문OO | 105,000,000 | 전입:2021.12.27확정:2021.12.27 | |
| 3(갑6) | 2025-02-28 | 강제경매 | 문OO | 105,000,000 | 소멸 | 말소기준등기2025타경501909 |
관련 문서 (PDF)
클릭하면 원본 파일이 열립니다