목록으로
최종 업데이트: 2026-04-22 13:21
2025타경501968
대전지방법원 본원 10계(042-470-1810)
부동산
부동산강제경매
유찰
진행중
| 소재지 |
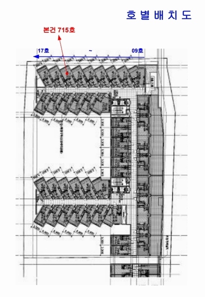
세종특별자치시 보듬3로 8-12, 라온프라이빗시티1 7층 715호
(세종특별자치시 도담동 664)
|
|---|---|
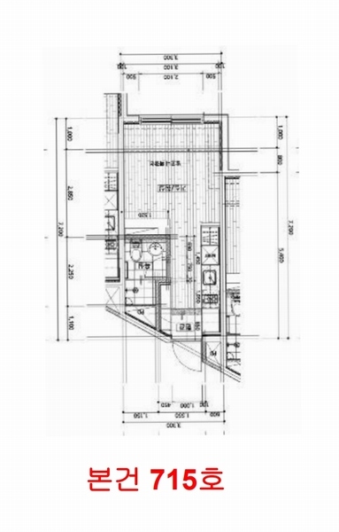
| 물건종류 | 아파트[공급11평형] |
| 면적 |
토지: 7.30㎡ (2.21평)
건물: 19.17㎡ (5.8평)
|
| 현재 위치 | 세종특별자치시 보듬3로 8-12, 라온프라이빗시티1 7층 715호 |
| 소유자 / 채무자 | 한해란 / 한해란 |
| 채권자 | 이종찬 |
| 배당종기일 | 2025-06-10 |
감정가
93,000,000
최저가
10,941,000
보증금
1,094,100
입찰 진행 내역
| 회차/구분 | 입찰기일 | 최저매각가격 | 결과 |
|---|---|---|---|
| 1차 (진행) | 2025-09-04 | 93,000,000 | 유찰 |
| 2차 (진행) | 2025-10-16 | 65,100,000 | 유찰 |
| 3차 (진행) | 2025-11-13 | 45,570,000 | 유찰 |
| 4차 (진행) | 2025-12-18 | 31,899,000 | 유찰 |
| 5차 (진행) | 2026-01-29 | 22,329,000 | 유찰 |
| 6차 (진행) | 2026-03-05 | 15,630,000 | 유찰 |
| 7차 (진행) | 2026-04-30 | 10,941,000 | |
| 8차 (진행) | 2026-06-04 | 7,658,000 |
임차인 현황
| 임차인명 | 점유여부 | 전입/확정/배당 | 보증금 / 차임 | 예상배당액 | 대항력 |
|---|---|---|---|---|---|
| 이종찬 | 주거용 전부 |
전입: 2022-09-19
확정: 2022-09-05 배당: 2025-03-14 |
100,000,000
월 0
|
0 | 있음 |
매각물건 현황
| 구분 | 순번 | 소재지 | 용도/구조/면적 | 감정가 | 비고 |
|---|---|---|---|---|---|
| 건물 | 8층중 7층 | 14.11.12 | 19.1676㎡(5.8평)[공급11평] / 도시형생활주택 | 65,100,000 |
현황 및 위치
*본건은 세종특별자치시 도담동 소재 "도담초등학교" 북서측 인근에 위치하는 도시형생활주택으로서 주위는 도시형생활주택, 오피스텔, 근린생활시설, 아파트단지 등으로 이루어져 있으며 제반 주위환경 보통시됨. *본건까지 차량의 출입이 용이하고 인근에 버스정류장이 소재하는 등 제반 교통상황 보통시됨. *2필 일단의 장방형으로서 도시형생활주택, 근린생활시설, 판매시설 부지로 이용중임. *주위로 대로 등에 접함.
참고사항
* 외필지 :도담동665
전문가 코멘트
☞ 본건은 소액임차인의 최우선변제금 지급기준이 되는 담보물권이 없어 배당시점을 기준으로 소액임차인을 판단하였으니 참고하시기 바랍니다.
등기부 현황
건물
| 순위 | 접수일자 | 권리종류 | 권리자 | 채권금액 | 소멸여부 | 비고 |
|---|---|---|---|---|---|---|
| 1(갑5) | 2021-09-02 | 소유권이전(매매) | 한OO | 0 | 거래가액:93,000,000 | |
| 2(갑6) | 2024-08-22 | 압류 | 국OOOOOOOO | 0 | 소멸 | 말소기준등기 |
| 3(을1) | 2024-09-30 | 주택임차권(전부) | 이OO | 100,000,000 | 전입:2022.09.19확정:2022.09.05 | |
| 4(갑7) | 2025-03-10 | 강제경매 | 이OO | 100,000,000 | 소멸 | 2025타경501968 |
| 5(갑8) | 2025-03-20 | 압류 | 국OOOOOOO | 0 | 소멸 |
관련 문서 (PDF)
클릭하면 원본 파일이 열립니다