목록으로
최종 업데이트: 2026-04-22 13:21
2025타경503281
대전지방법원 본원 5계(042-470-1805)
부동산
부동산임의경매
유찰
진행중
| 소재지 |
-
(대전광역시 중구 선화동 358-10)
|
|---|---|
| 물건종류 | 근린주택 |
| 면적 |
토지: 0.00㎡ (0평)
건물: 482.70㎡ (146.02평)
|
| 현재 위치 | 대전광역시 중구 선화동 358-10 |
| 소유자 / 채무자 | 이준희 / 이준희 |
| 채권자 | (주)새마을금고자산관리회사(한밭새마을금고의 승계인) |
| 배당종기일 | 2025-12-01 |
감정가
1,189,670,900
최저가
832,770,000
보증금
83,277,000
입찰 진행 내역
| 회차/구분 | 입찰기일 | 최저매각가격 | 결과 |
|---|---|---|---|
| 1차 (진행) | 2026-03-11 | 1,189,670,900 | 유찰 |
| 2차 (진행) | 2026-04-15 | 832,770,000 | |
| 3차 (진행) | 2026-05-20 | 582,939,000 | |
| 4차 (진행) | 2026-06-24 | 408,057,000 |
임차인 현황
| 임차인명 | 점유여부 | 전입/확정/배당 | 보증금 / 차임 | 예상배당액 | 대항력 |
|---|---|---|---|---|---|
| (101호)김신엽 | 주거용 101호 |
전입: 2024-02-21
확정: - 배당: - |
0
월 0
|
0 | 없음 |
| (101호)신서영 | 주거용 101호 |
전입: 2025-05-28
확정: 2025-05-28 배당: 2025-11-06 |
5,000,000
월 400,000
|
0 | 없음 |
| (201호)나상훈 | 주거용 201호 |
전입: 2020-02-04
확정: 2019-12-27 배당: 2025-11-24 |
73,500,000
월 0
|
0 | 없음 |
| (202호)윤덕환 | 주거용 202호 |
전입: 2018-11-21
확정: 2018-11-21 배당: 2025-10-15 |
75,000,000
월 0
|
0 | 없음 |
| (203호)권민 | 주거용 203호 |
전입: 2025-01-10
확정: 2024-12-26 배당: 2025-09-05 |
5,000,000
월 500,000
|
0 | 없음 |
| (204호)공갑숙 | 주거용 204호 |
전입: 2018-05-16
확정: 2025-09-10 배당: 2025-09-10 |
15,000,000
월 420,000
|
0 | 없음 |
| (301호)신동빈 | 주거용 301호 |
전입: 2024-07-01
확정: 2024-07-29 배당: 2025-10-23 |
20,000,000
월 440,000
|
0 | 없음 |
| (302호)정점수 | 주거용 302호 |
전입: 2023-02-28
확정: 2023-02-28 배당: 2025-09-10 |
80,000,000
월 0
|
0 | 없음 |
| (303호)최민현 | 주거용 303호 |
전입: 2025-02-07
확정: 2025-01-20 배당: 2025-11-07 |
5,000,000
월 500,000
|
0 | 없음 |
| (304호)김인혜 | 주거용 304호 |
전입: 2020-10-26
확정: 2020-10-26 배당: 2025-09-29 |
80,000,000
월 0
|
0 | 없음 |
| (401호)임철호 | 주거용 401호 |
전입: 2023-03-15
확정: 2023-03-07 배당: 2025-09-29 |
85,000,000
월 0
|
0 | 없음 |
| (402호)김영재 | 주거용 402호 |
전입: 2017-01-05
확정: 2017-01-05 배당: 2025-09-16 |
120,000,000
월 0
|
0 | 없음 |
| (501호)박미영 | 주거용 501호 |
전입: 2022-09-19
확정: 2022-09-19 배당: 2025-09-17 |
150,000,000
월 0
|
0 | 없음 |
매각물건 현황
| 구분 | 순번 | 소재지 | 용도/구조/면적 | 감정가 | 비고 |
|---|---|---|---|---|---|
| 토지 | 토지 | 선화동 358-10 | 도시계획구역,가축사육제한구역,제2종일반주거지역,토지거래계약에관...도시계획구역,가축사육제한구역,제2종일반주거지역,토지거래계약에관한허가구역,중점경관관리구역 / 대 250.1㎡ (75.66평) | 2,350,000 | 587,735,000원 |
| 건물 | 1 | 선화서로52번길 25 [선화동 358-10]철근콘크리트구조 평슬라브지붕 | 1층 / 계단실,ELEV | 20 | 714,000원 |
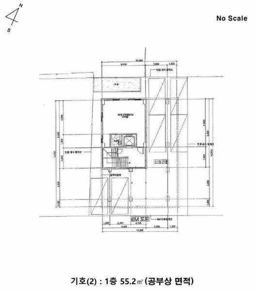
| 2 | 1층 | 사무소 | 34.8㎡(10.53평) / 1,000,000원 | 34,800,000 | * 사용승인:2016.10.21 |
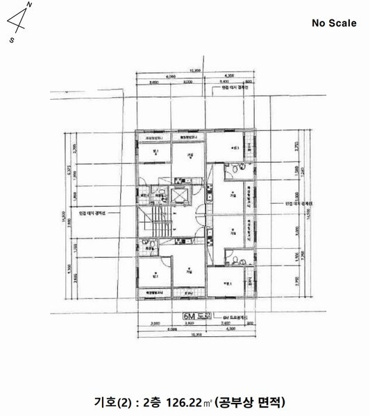
| 3 | 2층 | 다가구주택(4가구) | 126.22㎡(38.18평) / 1,340,000원 | 169,134,800 | * 사용승인:2016.10.21 |
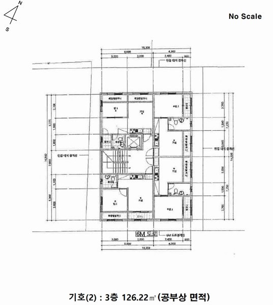
| 4 | 3층 | 다가구주택(4가구) | 126.22㎡(38.18평) / 1,340,000원 | 169,134,800 | * 사용승인:2016.10.21 |
| 5 | 4층 | 다가구주택(2가구) | 78.49㎡(23.74평) / 1,340,000원 | 105,176,600 | * 사용승인:2016.10.21 |
| 6 | 5층 | 사무소 | 96.57㎡(29.21평) / 1,130,000원 | 109,124,100 | * 사용승인:2016.10.21 |
현황 및 위치
* 본건은 대전광역시 중구 선화동 소재 ‘나라키움 대전통합청사’ 북서측 인근에 위치하며, 주위는 근린생활시설, 다가구주택, 다세대주택, 단독주택, 관공서 등이 소재하는 기존주택지대로서, 주위환경은 보통시됨. * 인근에 노선버스정류장, 지하철역이 소재하여 교통사정은 양호함. * 인접 필지 대비 평지 세장형의 토지로서 단독주택(다가구주택) 및 근린생활시설로 이용중임. * 남동측으로 노폭 약 6m 내외의 아스팔트포장도로에 접함.
참고사항
* 일괄매각 * 본건의 확장형 발코니, 새시구조의 베란다 확장, 옥탑 등은 본건물의 감정평가에 포함하여 감정평가하였으니, 경매진행시 참고바람.
등기부 현황
건물
| 순위 | 접수일자 | 권리종류 | 권리자 | 채권금액 | 소멸여부 | 비고 |
|---|---|---|---|---|---|---|
| 1(갑1) | 2016-10-27 | 소유권보존 | 이OO | 0 | ||
| 2(을1) | 2016-10-27 | 근저당 | (OOOOOOOOOOOOO | 650,000,000 | 소멸 | 말소기준등기확정채권양도전:한밭새마을금고 |
| 3(을2) | 2025-04-28 | 주택임차권(4층 약 30㎡ (401호)) | 임OO | 85,000,000 | 소멸 | 전입:2023.03.15확정:2023.03.07 |
| 4(을3) | 2025-07-25 | 주택임차권(3층29㎡(301호)) | 신OO | 20,000,000 | 소멸 | 전입:2024.07.01확정:2024.07.29차:월 금440,000원 |
| 5(갑2) | 2025-08-28 | 임의경매 | (OOOOOOOOOOOOO | 527,280,810 | 소멸 | 2025타경503281 |
| 6(을4) | 2025-10-15 | 주택임차권(3층 33㎡ (304호)) | 김OO | 80,000,000 | 소멸 | 전입:2020.10.26확정:2020.10.26 |
| 7(을5) | 2025-10-23 | 주택임차권(2층 약33.06㎡ (204호)) | 공OO | 15,000,000 | 소멸 | 전입:2018.05.16확정:2025.09.10차:월 금420,000원(2023.5.10. 월 금40,000원 증액) |
| 8(을6) | 2026-02-11 | 주택임차권(2층 32㎡ (201호)) | 나OO | 73,500,000 | 소멸 | 전입:2020.02.04확정:2019.12.271차보:금70,000,000원, 2차확:2022년1월6일 |
관련 문서 (PDF)
클릭하면 원본 파일이 열립니다