목록으로
최종 업데이트: 2026-04-22 13:21
2025타경3929
대전지방법원 본원 4계(042-470-1804)
부동산
부동산임의경매
유찰
진행중
| 소재지 |
-
(대전광역시 유성구 원신흥동 544-5)
|
|---|---|
| 물건종류 | 근린주택 |
| 면적 |
토지: 0.00㎡ (0평)
건물: 251.76㎡ (76.16평)
|
| 현재 위치 | 대전광역시 유성구 원신흥동 544-5 |
| 소유자 / 채무자 | 윤은정 / 윤은정 |
| 채권자 | 유성온천새마을금고 |
| 배당종기일 | 2026-02-05 |
감정가
932,371,200
최저가
652,660,000
보증금
65,266,000
입찰 진행 내역
| 회차/구분 | 입찰기일 | 최저매각가격 | 결과 |
|---|---|---|---|
| 1차 (진행) | 2026-03-19 | 932,371,200 | 유찰 |
| 2차 (진행) | 2026-04-22 | 652,660,000 | |
| 3차 (진행) | 2026-05-27 | 456,862,000 | |
| 4차 (진행) | 2026-07-01 | 319,803,000 |
임차인 현황
| 임차인명 | 점유여부 | 전입/확정/배당 | 보증금 / 차임 | 예상배당액 | 대항력 |
|---|---|---|---|---|---|
| (202호)민명기 | 주거용 2층 약30㎡ (202호) |
전입: 2023-10-12
확정: 2023-09-05 배당: 2025-12-02 |
65,000,000
월 0
|
0 | 없음 |
| 김현숙 | 주거용 201호( 방1칸), 3층(방4 칸), 4층(방1 칸) |
전입: 2023-11-03
확정: 2023-11-03 배당: 2025-11-25 |
100,000,000
월 900,000
|
0 | 없음 |
| 박종복 | 주거용 201호 |
전입: 2023-11-03
확정: - 배당: - |
0
월 0
|
0 | 없음 |
| 황정애 | 점포 1층 약 86.92㎡ (1층 전체) |
전입: -
확정: - 배당: 2025-10-31 |
20,000,000
월 1,000,000
|
0 | 없음 |
매각물건 현황
| 구분 | 순번 | 소재지 | 용도/구조/면적 | 감정가 | 비고 |
|---|---|---|---|---|---|
| 토지 | 토지 | 원신흥동 544-5 | 도시지역,제1종일반주거지역,지구단위계획구역,가축사육제한구역,상대보호구역 / 대 168㎡ (50.82평) | 2,900,000 | 487,200,000원 |
| 건물 | 1 | 원신흥남로42번길 27-9 [원신흥동 544-5]철근콘크리트구조 (철근)콘크리트지붕 | 1층 / 제1종근린생활시설(휴게음식점,계단실)-공실 | 92 | 1,160,000원 |
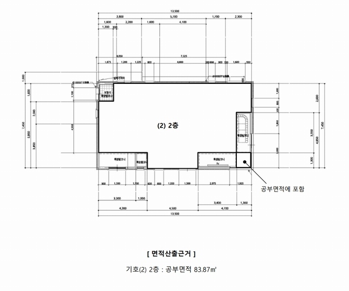
| 2 | 2층 | 다가구주택(2가구) | 83.87㎡(25.37평) / 2,120,000원 | 177,804,400 | * 사용승인:2015.10.23* 등기부상 단독주택 |
| 3 | 3층 | 다가구주택 | 75.64㎡(22.88평) / 2,120,000원 | 160,356,800 | * 사용승인:2015.10.23* 등기부상 단독주택 |
현황 및 위치
* 본건은 대전광역시 유성구 원신흥동 소재 '대전체육중.고등학교' 서측 인근에 위치하고, 주위는 단 독주택 및 다가구주택, 근린생활시설, 아파트단지, 학교 등으로 형성되어 있는 주거지대로서, 제반 주위 환경은 보통임. * 본건까지 차량 접근이 가능하며, 인근에 간선도로 및 버스정류장이 소재하는 등 제반 교통환경은 보통임. * 세장형의 평지인 토지로서, 현황 '주상용 건부지'로 이용중임. * 본건 동측으로 폭 8M내외의 포장도로를 이용중임.
참고사항
* 일괄매각 * 발코니, 누다락, 계단실, 데크시설은 건물가격에 포함하여 평가 옥상 소재 천막창고 평가 및 매각에서 제외 * 이용상태 : 3층: 현황 "다가구주택(2층 1가구의 상층이며, 3층 내부계단과 연결된 "누다락"이 소재))" 으로 이용중* 건물 옥상에는 천막창고"가 소재하나, 철거가 용이하여 이를 평가에서 제외하였으니 경매 진행 및 응찰시 참고 바람.
등기부 현황
건물
| 순위 | 접수일자 | 권리종류 | 권리자 | 채권금액 | 소멸여부 | 비고 |
|---|---|---|---|---|---|---|
| 1(갑1) | 2015-11-06 | 소유권보존 | 윤OO | 0 | ||
| 2(을2) | 2019-10-22 | 근저당 | 유OOOOOOOO | 429,000,000 | 소멸 | 말소기준등기 |
| 3(을4) | 2023-06-26 | 근저당 | 유OOOOOOOO | 130,000,000 | 소멸 | |
| 4(을7) | 2025-09-29 | 주택임차권(2층 약30㎡ (202호)) | 민OO | 65,000,000 | 소멸 | 전입:2023.10.12확정:2023.09.05 |
| 5(을8) | 2025-10-31 | 상가건물임차권(1층 약 86.92㎡ (1층 전체)) | 황OO | 20,000,000 | 소멸 | 사업자등록일:2022.11.03확정:0000.00.00차:월 금1,000,000원 |
| 6(갑6) | 2025-11-03 | 임의경매 | 유OOOOOOOO | 456,922,683 | 소멸 | 2025타경3929 |
| 7(갑7) | 2025-12-04 | 가압류 | 대OOOOOOO | 50,000,000 | 소멸 | 2025카단57811 |
관련 문서 (PDF)
클릭하면 원본 파일이 열립니다