목록으로
최종 업데이트: 2026-04-22 13:21
2025타경503574
대전지방법원 본원 4계(042-470-1804)
부동산
부동산임의경매
유찰
진행중
| 소재지 |
-
(대전광역시 서구 괴정동 65-17)
|
|---|---|
| 물건종류 | 근린주택 |
| 면적 |
토지: 0.00㎡ (0평)
건물: 572.81㎡ (173.28평)
|
| 현재 위치 | 대전광역시 서구 괴정동 65-17 |
| 소유자 / 채무자 | 남성현 / 남성현 |
| 채권자 | 동대전새마을금고 |
| 배당종기일 | 2026-01-19 |
감정가
1,349,572,400
최저가
944,701,000
보증금
94,470,100
입찰 진행 내역
| 회차/구분 | 입찰기일 | 최저매각가격 | 결과 |
|---|---|---|---|
| 1차 (진행) | 2026-03-19 | 1,349,572,400 | 유찰 |
| 2차 (진행) | 2026-04-22 | 944,701,000 | |
| 3차 (진행) | 2026-05-27 | 661,291,000 | |
| 4차 (진행) | 2026-07-01 | 462,904,000 |
임차인 현황
| 임차인명 | 점유여부 | 전입/확정/배당 | 보증금 / 차임 | 예상배당액 | 대항력 |
|---|---|---|---|---|---|
| (202호)최관용 | 주거용 202호 |
전입: 2019-11-12
확정: 2019-10-21 배당: 2026-01-02 |
80,000,000
월 0
|
0 | 없음 |
| (203호)여인주 | 주거용 2층 45㎡ (203호) |
전입: 2012-07-09
확정: 2012-07-09 배당: 2025-10-23 |
80,000,000
월 0
|
0 | 없음 |
| (301호)이세미 | 주거용 301호 |
전입: 2023-02-20
확정: 2025-10-23 배당: 2025-11-06 |
5,000,000
월 450,000
|
0 | 없음 |
| (302호)주원철 | 주거용 302호 |
전입: 2015-07-02
확정: 2015-06-05 배당: 2025-10-27 |
80,000,000
월 0
|
0 | 없음 |
| (303호)이서희 | 주거용 303호 |
전입: 2020-05-20
확정: 2020-05-11 배당: 2025-12-04 |
80,000,000
월 0
|
0 | 없음 |
| (401호)김인창 | 주거용 401호 |
전입: 2017-06-28
확정: - 배당: - |
10,000,000
월 300,000
|
0 | 없음 |
| (402호)한국토지주택공사(조민주) | 주거용 402호 |
전입: 2024-03-11
확정: 2024-02-20 배당: 2025-10-30 |
80,000,000
월 0
|
0 | 없음 |
| (403호)김성운 | 주거용 403호 |
전입: 2016-03-28
확정: 2016-03-28 배당: 2025-10-28 |
110,000,000
월 0
|
0 | 없음 |
| 조민주 | 주거용 402호 |
전입: 2024-03-11
확정: - 배당: - |
0
월 0
|
0 | 없음 |
| 최효선 | 주거용 201호 |
전입: 2021-12-31
확정: - 배당: - |
0
월 0
|
0 | 없음 |
| 한지훈 | 주거용 3층 304호 약 30㎡ |
전입: 2023-05-26
확정: 2023-05-12 배당: 2025-06-04 |
60,000,000
월 0
|
0 | 없음 |
매각물건 현황
| 구분 | 순번 | 소재지 | 용도/구조/면적 | 감정가 | 비고 |
|---|---|---|---|---|---|
| 토지 | 토지 | 1 | 괴정동 65-17 / 상대보호구역,제1종일반주거지역,가축사육제한구역 | 325 | 2,130,000원 |
| 토지 | 2 | 괴정동 65-52 | 상대보호구역,제1종일반주거지역,가축사육제한구역 / 도로 87.8㎡ (26.56평) | 702,000 | 61,635,600원 |
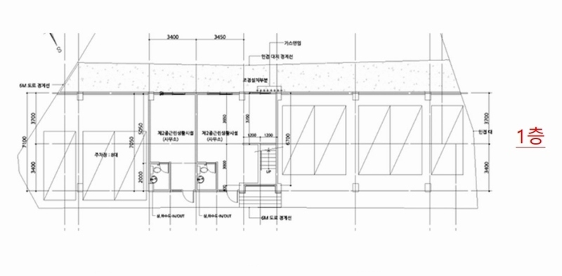
| 건물 | 1 | 괴정로 82-21 [괴정동 65-17]철근콘크리트구조 평슬라브지붕 | 1층 / 제2종근린생활시설(사무소) | 77 | 1,080,000원 |
| 2 | 1층 | 계단실 | 3.9㎡(1.18평) / 1,080,000원 | 4,212,000 | * 사용승인:2011.06.16* 개별냉난방설비 |
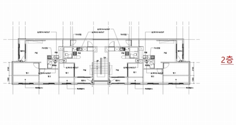
| 3 | 2층 | 다가구주택(4가구) | 163.78㎡(49.54평) / 1,080,000원 | 176,882,400 | * 사용승인:2011.06.16* 개별냉난방설비 |
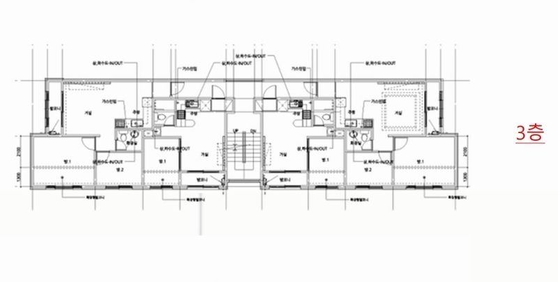
| 4 | 3층 | 다가구주택(4가구) | 163.78㎡(49.54평) / 1,080,000원 | 176,882,400 | * 사용승인:2011.06.16* 개별냉난방설비 |
| 5 | 4층 | 다가구주택(4가구) | 95.58㎡(28.91평) / 1,080,000원 | 103,226,400 | * 사용승인:2011.06.16* 개별냉난방설비 |
| 제시외건물 | 괴정로 82-21 [괴정동 65-17]조립식판넬조슁글지붕 | 주택 / 85㎡(25.71평) | 800,000 | 68,000,000원 |
현황 및 위치
* 본건은 '괴정고등학교'동측에 소재하며, 주위는 단독주택,다가구주택 등이 혼재하는 지역 으로 제반 주위환경은 보통시됨. * 본건까지 차량통행이 가능하며, 제반 주위환경은 보통시됨. * 1 : 사다리형의 평지로 다가구주택부지로 이용중이며, 2 : 사다리형의 평지로 도로로 이용중임. * 북서측으로 포장도로에 접함.
참고사항
* 다가구주택(12가구), 제2종근린생활시설 * 일괄매각. 제시외 건물 포함 * 본건 지상 바닥포장, 화단, 수목, 담장은 토지에 포함하여 평가 확장형발코니, 옥탑은 건물에 포함하여 평가 ☞현황서상 내용:건물은 지상 4층으로 1층에 2개 호실, 2층에 4개 호실, 3층에 4개 호실, 4층에 3개 호실이 있음. 건물 동쪽 옥상은 출입문이 잠겨 있어 확인하지 못하였음
등기부 현황
건물
| 순위 | 접수일자 | 권리종류 | 권리자 | 채권금액 | 소멸여부 | 비고 |
|---|---|---|---|---|---|---|
| 1(갑1) | 2011-06-17 | 소유권보존 | 양O | 0 | ||
| 2(을1) | 2011-06-17 | 근저당 | 동OOOOOOO | 260,000,000 | 소멸 | 말소기준등기 |
| 3(을2) | 2011-06-17 | 근저당 | 동OOOOOOO | 130,000,000 | 소멸 | |
| 4(갑2) | 2011-09-30 | 소유권이전(매매) | 남OO | 0 | ||
| 5(을5) | 2025-06-04 | 주택임차권(3층 304호 약 30㎡) | 한OO | 60,000,000 | 소멸 | 전입:2023.05.26확정:2023.05.12 |
| 6(갑3) | 2025-10-15 | 임의경매 | 동OOOOOOO | 312,826,760 | 소멸 | 2025타경503574 |
| 7(을6) | 2025-10-29 | 주택임차권(2층 45㎡ (203호)) | 여OO | 80,000,000 | 소멸 | 전입:2012.07.09확정:2012.07.09 |
관련 문서 (PDF)
클릭하면 원본 파일이 열립니다