목록으로
최종 업데이트: 2026-04-25 03:06
2025타경502033
대전지방법원 본원 11계(042-470-1811)
부동산
부동산임의경매
매각
진행중
| 소재지 |
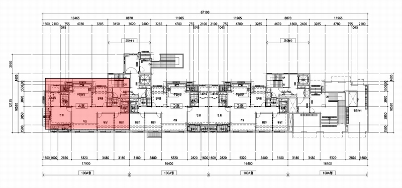
세종특별자치시 새롬북로 13, 새뜸마을4단지 414동 1층 104호
(세종특별자치시 새롬동 554)
|
|---|---|
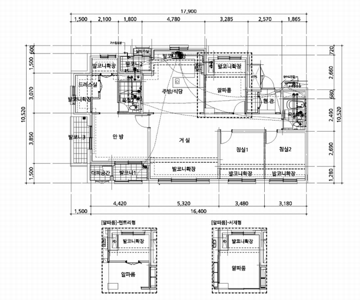
| 물건종류 | 아파트[공급39평형] |
| 면적 |
토지: 0.00㎡ (0평)
건물: 100.92㎡ (30.53평)
|
| 현재 위치 | 세종특별자치시 새롬북로 13, 새뜸마을4단지 414동 1층 104호 |
| 소유자 / 채무자 | 장훈 / 장훈 |
| 채권자 | 대구제일새마을금고 |
| 배당종기일 | 2025-06-18 |
감정가
690,000,000
최저가
483,000,000
보증금
48,300,000
진행 상태 / 매각 결과
매각
completed = false
매각허가결정
| 상태 코드 | 2 | 상태 텍스트 | 매각허가결정 |
|---|---|---|---|
| 매각가 | 576,999,000원 | 매각가율 | 0% |
| 입찰 수 | 6 | 매수인 | 윤선아 |
| 차순위 입찰가 | 561,785,300원 | 매각허가 결정 | 매각허가결정 |
| 매각허가 결정일 | 2026-04-02 | 대금 지급기한 | - |
| 대금 지급상태 | - | 배당기일 | - |
| 배당 종결일 | - | 다음 확인 예정 | 2026-04-26 09:00 |
입찰 진행 내역
| 회차/구분 | 입찰기일 | 최저매각가격 | 결과 |
|---|---|---|---|
| 1차 (진행) | 2026-02-19 | 690,000,000 | 유찰 |
| 2차 (진행) | 2026-03-26 | 483,000,000 |
진행 메모
매각 : 576,999,000 원 (83.62%)
(입찰 6 명,매수인:윤선아 / 차순위금액 561,785,300원)
매각결정기일 : 2026.04.02 - 매각허가결정
대금지급기한 : 2026.04.24
대금납부 2026.04.22 / 배당기일 2026.05.20
매각물건 현황
| 구분 | 순번 | 소재지 | 용도/구조/면적 | 감정가 | 비고 |
|---|---|---|---|---|---|
| 건물 | 15층중 1층 | 17.04.10 | 100.921㎡(30.53평)[공급39평] / 주거용 | 483,000,000 |
현황 및 위치
* 본건은 세종특별자치시 새롬동 소재 ""새롬고등학교"" 북서측 인근에 위치하며 주위는 대단위 아파트단지 및 각종 근린생활시설, 학교 등으로 형성된 지역으로 제반 주위환경은 보통임. * 본건 단지내로 차량진출입 및 주정차가 가능하고 인근에 버스정류장이 소재하는 등 제반 대중교통사정은 보통임. * 대체로 사다리형 평지로서 아파트 및 아파트 부속시설용 건부지로 이용중임. * 본건 아파트단지 남측 으로 노폭 약15미터, 동측으로 노폭 약20미터 내외의 포장도로에 접하고 단지내 도로를 통해 제반도로와의 연계가 용이하며, 인접도로 상태는 무난한 편임.
참고사항
* 대지권 미등기이나, 매각목적물 및 매각가격 평가에 포함.
전문가 코멘트
** 집합건물( 아파트, 다세대, 오피스텔, 근린상가 등)은 법에의하여 전체 토지를 토지의 소유권 비율로 나누어 대지권형태로 건물 등기부에 기재를 하고 토지등기부는 폐쇠하는 것이 원칙입니다. (건물의 소유권 이전에 따라 대지권도 같이 이전하는 형태를 취합니다.) 대지권 미등기라는 것은 이러한 정리가 되어 있지 않고 아직 토지 등기부가 존재한다는 의미인데, 그 원인으로는 토지의 소유권이 건물 소유권과 같이 이전하지 않는 경우(= 건물 분양자가 원 토지 소유자에게 대금을 지급하지 못하여 여전히 별개의 토지 소유자가 있는 경우)와 소유권(대지권)이 집합건물의 소유권과 일체로 이전하지만 토지 소유권(대지권) 정리의 미비로 같이 정리 되지 못하는 상황이 있습니다. 경매과정에서는 위의 사항을 사전에 조사하여 대지권이 없으면 건물만 매각하고 대지권이 있으면 본 건과 같이 일괄 감정하여 같이 매각하는 것이 일반적입니다. 대지권등기는 상황에 따라서 개별적으로 등기하기도하고(단독세대만 안되어 있는 경우) 추후에 전체 단지 전체가 대지권 등기를 할 때 같이 등기를 하기도 합니다. 또, 토지에 공유지분형태로 소유권이 등기되어 있으면 토지의 지분을 이전등기하면 됩니다. 법원에서 토지 소유권 여부를 조사 하는 것이 일반적이지만 간혹 대지권이 없음에도 이를 간과하고 본 건과 같이 처리하는 경우도 있어 주의를 요합니다. = 낙찰 후 불허가나 허가 취소, 감액이 가능하지만 시간과 노력이 소요됩니다. 그러나 법원자료 제공의 내용에 따라서는 낙찰자에게 전적으로 위험부담을 지우는 경우도 있으므로 사전에 조사하는 것이 필요합니다. 1. 토지의 소유권이 등기부 상 분양자 앞으로 되어 있으면 대부분 문제가 없습니다( 단 재건축, 재개발의 경우 분담금 미납으로 대지권등기를 거부한 경우에는 낙찰자가 인수하여야 합니다. ). 또 토지 등기부에 공유지분 형태로 건물 소유자의 등기가 있으면 문제 없을 것입니다. 2. 현장에서 일반 거래로 문제가 없으면 경매로도 문제가 없습니다.( 따라서 중개업소나, 관리사무실을 통해 대지권 미등기의 사유와 등기 예정 일정을 파악하는 것이 좋습니다.) 가장 확실한 방법은 집합건물을 분양한주체에게 대지권유무를 알아보는 것입니다. 3. 위와 같은 경우가 아니라 토지에 대한 권리가 없다면 대지권취득의 비용을 미리 알아보고 입찰하여야합니다. ( 다세대 주택, 근생의 경우 특히 주의가 필요합니다. 특수한 경우 토지를 임차한 형태이면 토지사용에 대한 조건 등을 알아보고 이를 입찰에 반영하여야 합니다. ) 4. 공사 중 건물만 매각하는 집합건물의 경우 특히 주의가 필요하며 등기부 상 토지소유자에게 낙찰 후 토지지분 매각 혹은 토지사용권 임대 등의 의향이 있는 지와 의사가 있다면 소요금액 등을 알아보고 이를 반영하여 입찰하여야 합니다. 만약 안정적인 토지사용권 확보가 어려운 경우 입찰을 피하여야 할 것입니다. 5. 대지권의 비율은 일반적으로 단지 혹은 건물 전체 대지를 건물소유권면적 비율로 나누어 배정하지만 정확한 면적은 분양계약서 상의 지분으로 하기에 경매서류로 파악하기 곤란한 면이 있습니다. 역시 중개업소나 관리사무실, 분양사무실, 시행사 등을 통하여 확인하여야 합니다. ( 환지사업지역의 경우 환지 후 배정되는 대지권에 대한 권리취득 여부와 환지 후 취득 대지권 면적을 사업주체에게 문의하여 확인하여야 합니다. )☞ 미납관리비의 경우 사용자 부담이 원칙이나 사용자가 납부하지 않은 경우 공용부분 관리비는 대법원판례(2001다8677 전원합의체)에 따라서 매수인에게 승계됩니다. 관리비채권의 법적 소멸시효는 3년이며 미납관리비의 연체료나 관리사무소에서 임의적으로 계산한 지연손해금등이 매수자에게 승계되지 않습니다. 위 사항을 참고하여 관리사무소와 협의하여 처리하시기 바랍니다.☞ 관리비 채권의 법정 소멸시효는 3년이나 미납관리비를 이유로 소멸시효 중단조치(민법 168조재판상의 청구,압류,가압류,가처분 등)를 한 경우 3년이 경과한 관리비이더라도 소멸되지 않습니다.
등기부 현황
건물
| 순위 | 접수일자 | 권리종류 | 권리자 | 채권금액 | 소멸여부 | 비고 |
|---|---|---|---|---|---|---|
| 1(갑2) | 2017-07-18 | 공유자전원지분전부이전 | 장O | 0 | 거래가액:361,800,000 매매 | |
| 2(을1) | 2017-07-18 | 근저당 | 국OOOOOOOOOO | 310,800,000 | 소멸 | 말소기준등기 |
| 3(을3) | 2021-08-27 | 근저당 | 대OOOOOOOO | 535,200,000 | 소멸 | |
| 4(갑4) | 2025-03-17 | 임의경매 | 대OOOOOOOO | 456,603,140 | 소멸 | 2025타경502033 |
| 5(갑5) | 2025-06-12 | 가압류 | 세OOOOOOO | 30,106,626 | 소멸 | 2025카단53509 |
관련 문서 (PDF)
클릭하면 원본 파일이 열립니다