목록으로
최종 업데이트: 2026-04-22 13:21
2025타경502673
대전지방법원 본원 11계(042-470-1811)
부동산
부동산강제경매
결과 대기
진행중
| 소재지 |
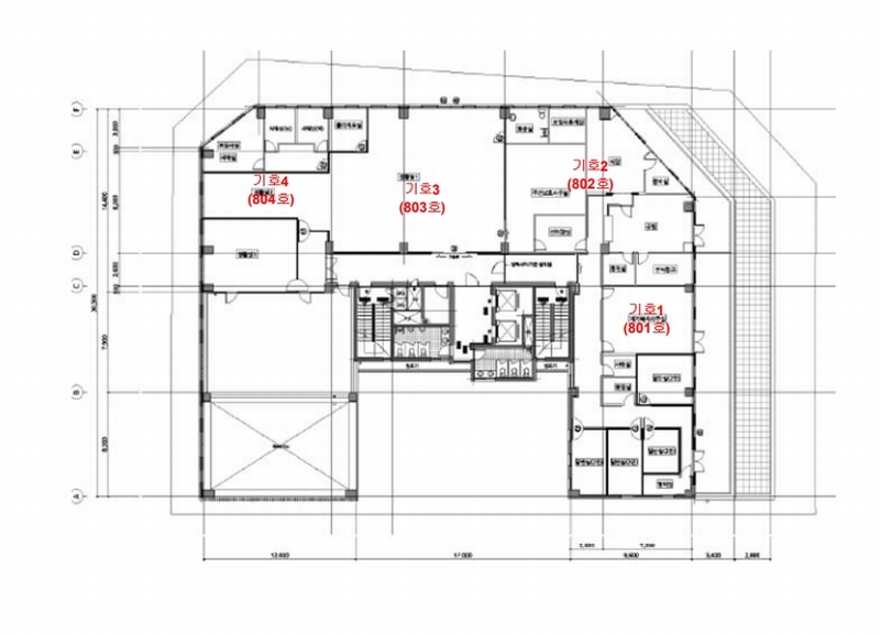
세종특별자치시 한누리대로 589, 해피라움7 8층 804호
(세종특별자치시 도담동 655)
|
|---|---|
| 물건종류 | 노유자시설 |
| 면적 |
토지: 34.56㎡ (10.45평)
건물: 141.36㎡ (42.76평)
|
| 현재 위치 | 세종특별자치시 한누리대로 589, 해피라움7 8층 804호 |
| 소유자 / 채무자 | 세종우리협동조합 / 세종우리협동조합 |
| 채권자 | 이상진 외2명 |
| 배당종기일 | 2025-09-16 |
감정가
321,000,000
최저가
157,290,000
보증금
15,729,000
입찰 진행 내역
| 회차/구분 | 입찰기일 | 최저매각가격 | 결과 |
|---|---|---|---|
| 1차 (진행) | 2026-02-19 | 321,000,000 | 유찰 |
| 2차 (진행) | 2026-03-26 | 224,700,000 | 유찰 |
| (진행) | 2026-04-23 | 157,290,000 | 미진행 |
매각물건 현황
| 구분 | 순번 | 소재지 | 용도/구조/면적 | 감정가 | 비고 |
|---|---|---|---|---|---|
| 건물 | 8층중 8층 | 15.01.28 | 141.36㎡(42.76평) / 노인복지시설 및 사무소 | 224,700,000 |
현황 및 위치
* 본건은 세종특별자치시 도담동 소재 "도담초등학교" 북서측 인근에 위치, 본건 주위는 근린생활시설, 업무시설 및 공공시설이 주를 이루며, 공동주택 등이 혼재되어 있는 행정중심복합도시내 상업지역으로 제반환경은 보통시됨. * 본건까지 차량진출입 가능하고, 인근에 버스정류장이 소재하는 등 제반대중 교통여건은 무난한 편임 * 대체로 가장형, 평지의 토지로 상업용건물부지로 이용중임. * 본건은 광대로 등에 3면이 접하고 있음
참고사항
* 803호과 벽체 구분 없이 통합하여 이용 중임. ☞현황서상 내용:`세종한누리주간보호센터`로 이용중임
등기부 현황
건물
| 순위 | 접수일자 | 권리종류 | 권리자 | 채권금액 | 소멸여부 | 비고 |
|---|---|---|---|---|---|---|
| 1(갑4) | 2015-03-11 | 소유권이전(매매) | 정OO | 0 | 거래가액 금308,732,000원 | |
| 2(을1) | 2015-03-11 | 근저당 | 전OOOOOOOOOOOO | 1,044,000,000 | 소멸 | 말소기준등기 |
| 3(을2) | 2016-07-26 | 근저당 | 전OOO | 1,044,000,000 | 소멸 | |
| 4(갑5) | 2021-12-01 | 소유권이전(매매) | 세OOOOOOO | 0 | 거래가액:313,962,200 | |
| 5(갑6) | 2023-06-19 | 가압류 | 고OO | 200,000,000 | 소멸 | 2023카단53263 |
| 6(갑7) | 2023-06-26 | 가압류 | 최OO | 16,000,000 | 소멸 | 2023카단53606 |
| 7(갑8) | 2023-07-10 | 가압류 | 이OO | 120,010,000 | 소멸 | 2023카단53961 |
| 8(갑9) | 2023-07-10 | 가압류 | 최OO | 100,010,000 | 소멸 | 2023카단53964 |
| 9(갑10) | 2025-06-13 | 강제경매 | 이OO | 44,995,347 | 소멸 | 2025타경502673, 이상진 가압류의 본 압류로의 이행 |
| 10(갑11) | 2025-06-16 | 강제경매 | 최OO | 37,496,748 | 소멸 | 2025타경502682, 최수연 가압류의 본 압류로의 이행 |
| 11(갑12) | 2025-06-16 | 강제경매 | 최OO | 6,036,372 | 소멸 | 2025타경502685 |
관련 문서 (PDF)
클릭하면 원본 파일이 열립니다