목록으로
최종 업데이트: 2026-04-25 23:11
2025타경3775
대전지방법원 본원 8계(042-470-1808)
부동산
부동산임의경매
취하/변경
진행중
| 소재지 |
-
(대전광역시 중구 대흥동 169-10)
|
|---|---|
| 물건종류 | 근린주택 |
| 면적 |
토지: 0.00㎡ (0평)
건물: 820.63㎡ (248.24평)
|
| 현재 위치 | 대전광역시 중구 대흥동 169-10 |
| 소유자 / 채무자 | (주)세빛타운 / (주)세빛타운 |
| 채권자 | 케이씨유엔피엘대부(주)(양도인 문창신협) |
| 배당종기일 | 2025-11-17 |
감정가
2,200,289,000
최저가
1,540,202,000
보증금
154,020,200
입찰 진행 내역
| 회차/구분 | 입찰기일 | 최저매각가격 | 결과 |
|---|---|---|---|
| 1차 (진행) | 2026-02-26 | 2,200,289,000 | 유찰 |
| (진행) | 2026-04-02 | 1,540,202,000 | 변경 |
진행 메모
본사건은 변경 되었으며 현재 매각기일이 지정되지 않았습니다.
임차인 현황
| 임차인명 | 점유여부 | 전입/확정/배당 | 보증금 / 차임 | 예상배당액 | 대항력 |
|---|---|---|---|---|---|
| 권혜수 | 주거용 204호 |
전입: 2022-02-04
확정: 2022-02-04 배당: 2025-09-15 |
20,000,000
월 350,000
|
0 | 없음 |
| 김상훈 | 기타 502호 |
전입: 2025-02-20
확정: - 배당: - |
0
월 0
|
0 | 없음 |
| 김선진 | 주거용 2층 201호 |
전입: 2022-09-02
확정: 2022-09-02 배당: 2025-09-05 |
85,000,000
월 0
|
0 | 없음 |
| 김영준 | 주거용 3층 302호 |
전입: 2023-12-18
확정: 2021-09-17 배당: 2025-09-22 |
110,000,000
월 0
|
0 | 없음 |
| 박미영 | 주거용 501호 |
전입: 2020-11-30
확정: 2025-11-17 배당: 2025-11-17 |
50,000,000
월 700,000
|
0 | 없음 |
| 박진하 | 주거용 2층 203호 |
전입: 2020-09-25
확정: 2020-09-25 배당: 2025-09-01 |
110,000,000
월 0
|
0 | 없음 |
| 송승영 | 주거용 301호 |
전입: 2023-02-27
확정: - 배당: - |
0
월 0
|
0 | 없음 |
| 이미소 | 주거용 202호 |
전입: 2022-11-03
확정: - 배당: - |
0
월 0
|
0 | 없음 |
| 이하나 | 주거용 402호 |
전입: 2020-09-17
확정: 2020-09-22 배당: 2025-09-05 |
95,000,000
월 100,000
|
0 | 없음 |
| 장소연 | 주거용 4층 401호 |
전입: 2022-10-27
확정: 2022-10-27 배당: 2025-10-31 |
80,000,000
월 0
|
0 | 없음 |
| 조민수 | 주거용 3층 305호 |
전입: 2020-09-18
확정: 2020-09-15 배당: 2025-09-16 |
85,000,000
월 0
|
0 | 없음 |
| 조우진 | 기타 405호 |
전입: 2020-09-28
확정: - 배당: - |
0
월 0
|
0 | 없음 |
| 조은숙 | 주거용 404호 |
전입: 2021-01-05
확정: 2020-11-23 배당: 2025-10-23 |
80,000,000
월 0
|
0 | 없음 |
| 천왕희 | 주거용 403호 |
전입: 2020-10-16
확정: - 배당: - |
0
월 0
|
0 | 없음 |
| 최경희 | 주거용 303호 |
전입: 2021-03-09
확정: - 배당: - |
0
월 0
|
0 | 없음 |
| 최혜수 | 주거용 2층 205호 |
전입: 2020-09-17
확정: 2020-09-17 배당: 2025-09-19 |
80,000,000
월 0
|
0 | 없음 |
| 한국토지주택공사(202호) | 주거용 202호 |
전입: 2022-11-03
확정: 2022-10-14 배당: 2025-09-29 |
120,000,000
월 0
|
0 | 없음 |
| 한국토지주택공사(301호) | 주거용 301호 |
전입: 2023-02-27
확정: 2022-12-12 배당: 2025-09-29 |
80,000,000
월 50,000
|
0 | 없음 |
| 한국토지주택공사(304호) | 주거용 3층 304호 |
전입: 2020-12-14
확정: 2020-12-01 배당: 2025-01-13 |
79,000,000
월 0
|
0 | 없음 |
| 한국토지주택공사(403호) | 주거용 4층 403호 |
전입: 2020-10-16
확정: 2020-09-23 배당: 2025-02-19 |
95,000,000
월 100,000
|
0 | 없음 |
| 황규희 | 주거용 3층 303호 |
전입: 2020-09-17
확정: 2020-09-14 배당: 2025-10-01 |
110,000,000
월 0
|
0 | 없음 |
매각물건 현황
| 구분 | 순번 | 소재지 | 용도/구조/면적 | 감정가 | 비고 |
|---|---|---|---|---|---|
| 토지 | 토지 | 대흥동 169-10 | 방화지구,도시계획구역,가축사육제한구역,일반상업지역 / 대 312.1㎡ (94.41평) | 2,580,000 | 805,218,000원 |
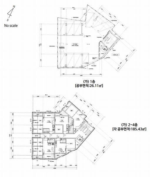
| 건물 | 1 | 대흥로158번길 20 [대흥동 169-10]철근콘크리트구조 (철근)콘크리트지붕 | 1층 / 계단실 | 26 | 1,700,000원 |
| 2 | 2층 | 다가구주택 | 185.43㎡(56.09평) / 1,700,000원 | 315,231,000 | * 사용승인:2020.09.10 |
| 3 | 3층 | 다가구주택 | 185.43㎡(56.09평) / 1,700,000원 | 315,231,000 | * 사용승인:2020.09.10 |
| 4 | 4층 | 다가구주택 | 185.43㎡(56.09평) / 1,700,000원 | 315,231,000 | * 사용승인:2020.09.10 |
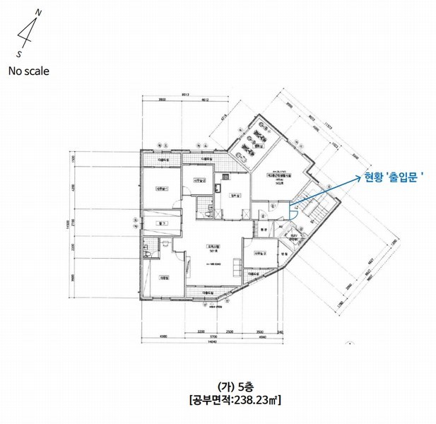
| 5 | 5층 | 업무시설 및 제2종근린생활시설 | 238.23㎡(72.06평) / 1,700,000원 | 404,991,000 | * 사용승인:2020.09.10 |
현황 및 위치
* 본건은 대전광역시 중구 대흥동 소재 " 대흥동네거리" 남동측 인근에 위치하고 있으며, 주위는 주택 및 아파트, 근린생활시설 등으로 형성되어 있는 등 제반 주위환경은 보통시됨. * 본건까지 차량 접근이 가능하며, 인근에 간선도로가 소재하고 있는 등 제반 교통상황은 보통시됨. * 대체로 부정형의 토지로서, 다가구주택,업무시설,근린생활시설 건부지로 이용 중임. * 본건 남동측으로 소로, 본건 북동측으로 세로에 각각 접하고 있음.
참고사항
* 일괄매각 * 5층은 건축물현황도상 계단과 501호 및 502호 출입문 사이에 별도 출입문이 없는 것으로 표시되어 있으나 현장조사시, 별도 출입문(출입문상 호별표시 : 501호)를 만들어 이용중임 * 본건 건물의 연면적에 포함되지 않는 발코니, 옥상 계단실 등은 건물의 일체적인 효용, 일반적인 거래관행 등을 고려하여 본건 건물에 포함하여 감정평가하였으니 경매 진행시 참고하시기 바람.
등기부 현황
건물
| 순위 | 접수일자 | 권리종류 | 권리자 | 채권금액 | 소멸여부 | 비고 |
|---|---|---|---|---|---|---|
| 1(갑1) | 2020-09-14 | 소유권보존 | (OOOOOO | 0 | ||
| 2(을1) | 2020-09-14 | 근저당 | 케OOOOOOOOOOO | 385,000,000 | 소멸 | 말소기준등기확정채권양도전:문창신용협동조합 |
| 3(을2) | 2020-09-14 | 근저당 | 케OOOOOOOOOOO | 502,700,000 | 소멸 | |
| 4(갑2) | 2023-11-23 | 압류 | 국OOOOOOOO | 0 | 소멸 | |
| 5(을3) | 2024-03-26 | 주택임차권(3층 302호) | 김OO | 110,000,000 | 소멸 | 전입:2023.12.18확정:2021.09.17 |
| 6(갑3) | 2024-05-03 | 압류 | 중OOOOOOOO | 0 | 소멸 | |
| 7(을4) | 2024-10-30 | 주택임차권(2층 203호) | 박OO | 110,000,000 | 소멸 | 전입:2020.09.25확정:2020.09.25 |
| 8(을5) | 2024-11-19 | 주택임차권(3층 303호) | 황OO | 110,000,000 | 소멸 | 전입:2020.09.17확정:2020.09.14 |
| 9(을6) | 2024-12-04 | 주택임차권(3층 305호) | 조OO | 85,000,000 | 소멸 | 전입:2020.09.18확정:2020.09.15 |
| 10(을7) | 2024-12-19 | 주택임차권(4층 401호) | 장OO | 80,000,000 | 소멸 | 전입:2022.10.27확정:2022.10.27 |
| 11(을8) | 2025-01-13 | 주택임차권(3층 304호) | 한OOOOOOO | 79,000,000 | 소멸 | 전입:2020.12.14확정:2020.12.01보:금79,000,000원(금80,000,000원 중 반환되지 아니한 임차보증금) |
| 12(을9) | 2025-02-19 | 주택임차권(4층 403호) | 한OOOOOOO | 95,000,000 | 소멸 | 전입:2020.10.16확정:2020.09.23차:금 100,000원 |
| 13(갑4) | 2025-08-14 | 임의경매 | 케OOOOOOOOOOO | 830,104,402 | 소멸 | 2025타경3775 |
| 14(을10) | 2025-09-26 | 주택임차권(2층 201호) | 김OO | 85,000,000 | 소멸 | 전입:2022.09.02확정:2022.09.02 |
| 15(을11) | 2025-11-19 | 주택임차권(2층 205호) | 최OO | 80,000,000 | 소멸 | 전입:2020.09.17확정:2020.09.17 |
관련 문서 (PDF)
클릭하면 원본 파일이 열립니다