목록으로
최종 업데이트: 2026-04-22 13:21
2025타경3794
대전지방법원 본원 7계(042-470-1807)
부동산
임의경매(공유물분할을위한경매(부동산))
유찰
진행중
| 소재지 |
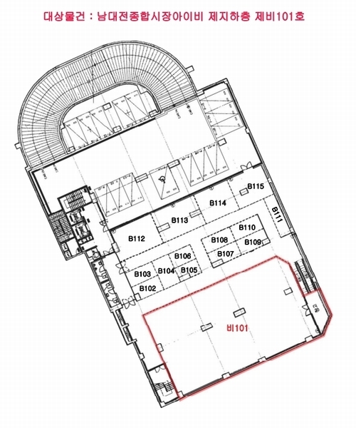
대전광역시 중구 대종로316번길 19, 남대전종합시장아이비 지하층 비101호
(대전광역시 중구 부사동 101-1)
|
|---|---|
| 물건종류 | 아파트 |
| 면적 |
토지: 141.99㎡ (42.95평)
건물: 402.27㎡ (121.69평)
|
| 현재 위치 | 대전광역시 중구 대종로316번길 19, 남대전종합시장아이비 지하층 비101호 |
| 소유자 / 채무자 | 김연숙외 1명 / 권오인 |
| 채권자 | 김연숙 |
| 배당종기일 | 2025-12-11 |
감정가
675,000,000
최저가
231,525,000
보증금
23,152,500
입찰 진행 내역
| 회차/구분 | 입찰기일 | 최저매각가격 | 결과 |
|---|---|---|---|
| 1차 (진행) | 2026-01-27 | 675,000,000 | 유찰 |
| 2차 (진행) | 2026-03-03 | 472,500,000 | 유찰 |
| 3차 (진행) | 2026-04-07 | 330,750,000 | 유찰 |
| 4차 (진행) | 2026-05-12 | 231,525,000 |
매각물건 현황
| 구분 | 순번 | 소재지 | 용도/구조/면적 | 감정가 | 비고 |
|---|---|---|---|---|---|
| 건물 | 13층중 지하 | 05.10.26 | 402.2662㎡(121.69평) / 삼점 | 405,000,000 |
현황 및 위치
* 대상물건은 대전광역시 중구 부사동 소재 ""부사119 안전센터"" 남동측 인근에 위치하며, 주위는 시장, 근린생활시설, 단독주택 등이 혼재하는 지역으로서 주위환경은 보통임. * 대상물건이 소재하는 건물까지 차량접근이 가능하며, 인근에 버스정류장이 소재하는 등 교통 상황은 보통임. * 4필 일단의 부정형 토지로서 판매 및 영업시설(상점) 및 아파트 건부지로 이용 중임. * 4필 일단으로 남동측, 북동측, 북서측 및 남서측으로 폭 약 8미터, 6미터, 6미터 및 8미터 내외의 포장도로에 각각 접하며, 남동측 도로는 시장임.
참고사항
* 집합건축물대장(전유부,갑)상 구조가 철근콘크리트구조(경계벽없음)이나 현황 판넬로 경계벽이 대부분 설치되어 있고, 내부의 남서측 일부를 판넬로 구획하고 별도의 출입문을 설치함. * 대상물건 소재 지하층으로 연결되는 두개의 계단 중 한개와 에스컬레이트는 폐쇄되어 있음. * 외필지 :부사동101-3, 101-10,101-12
등기부 현황
건물
| 순위 | 접수일자 | 권리종류 | 권리자 | 채권금액 | 소멸여부 | 비고 |
|---|---|---|---|---|---|---|
| 1(갑23) | 2017-02-08 | 알에스건설(주)지분전부이전 | 김OO | 0 | 공매, 1/2 | |
| 2(갑25) | 2017-05-08 | 남대전종합시장재건축조합지분전부이전 | 권OO | 0 | 공매, 1/2 | |
| 3(갑29) | 2025-09-09 | 임의경매 | 김OO | 0 | 소멸 | 말소기준등기2025타경3794 |
관련 문서 (PDF)
클릭하면 원본 파일이 열립니다