목록으로
최종 업데이트: 2026-04-22 13:21
2025타경503674
대전지방법원 본원 7계(042-470-1807)
부동산
부동산강제경매
유찰
진행중
| 소재지 |
-
(대전광역시 유성구 덕명동 547-2)
|
|---|---|
| 물건종류 | 다가구(원룸등) |
| 면적 |
토지: 0.00㎡ (0평)
건물: 399.27㎡ (120.78평)
|
| 현재 위치 | 대전광역시 유성구 덕명동 547-2 |
| 소유자 / 채무자 | 박은미 / 박은미 |
| 채권자 | 여도엽 |
| 배당종기일 | 2026-02-02 |
감정가
1,187,788,800
최저가
582,016,000
보증금
58,201,600
입찰 진행 내역
| 회차/구분 | 입찰기일 | 최저매각가격 | 결과 |
|---|---|---|---|
| 1차 (진행) | 2026-03-03 | 1,187,788,800 | 유찰 |
| 2차 (진행) | 2026-04-07 | 831,452,000 | 유찰 |
| 3차 (진행) | 2026-05-12 | 582,016,000 |
임차인 현황
| 임차인명 | 점유여부 | 전입/확정/배당 | 보증금 / 차임 | 예상배당액 | 대항력 |
|---|---|---|---|---|---|
| (101호)김정윤 | 주거용 101호 |
전입: 2024-10-07
확정: 2024-11-04 배당: 2025-11-14 |
20,000,000
월 250,000
|
0 | 없음 |
| (201호)진산 | 주거용 2층 201호 |
전입: 2020-07-27
확정: 2020-07-27 배당: 2025-06-12 |
50,000,000
월 0
|
0 | 없음 |
| (202호)이상재 | 주거용 |
전입: 2024-04-24
확정: - 배당: - |
0
월 0
|
0 | 없음 |
| (202호)한국토지주택공사(입주자이상재) | 주거용 202호 |
전입: 2024-04-24
확정: 2024-04-24 배당: 2026-01-07 |
140,000,000
월 0
|
0 | 없음 |
| (203호)김승권 | 주거용 203호 |
전입: 2023-03-20
확정: 2023-03-20 배당: 2025-11-07 |
70,000,000
월 0
|
0 | 없음 |
| (301호)황정태 | 주거용 301호 |
전입: 2026-01-29
확정: 2026-01-29 배당: 2026-01-29 |
5,000,000
월 400,000
|
0 | 없음 |
| (302호)이철 | 주거용 302호 |
전입: 2024-12-09
확정: 2024-11-05 배당: 2025-11-10 |
120,000,000
월 0
|
0 | 없음 |
| (303호)최기원 | 주거용 303호 |
전입: 2024-08-07
확정: 2024-07-04 배당: 2025-11-14 |
30,000,000
월 300,000
|
0 | 없음 |
| (401호)여도엽 | 주거용 4층 401호 |
전입: 2021-01-22
확정: 2021-01-22 배당: 2025-04-01 |
240,000,000
월 100,000
|
0 | 없음 |
| (402호)안예희 | 주거용 4층 402호 |
전입: 2022-07-15
확정: 2022-06-07 배당: 2025-11-11 |
70,000,000
월 140,000
|
0 | 없음 |
매각물건 현황
| 구분 | 순번 | 소재지 | 용도/구조/면적 | 감정가 | 비고 |
|---|---|---|---|---|---|
| 토지 | 토지 | 덕명동 547-2 | 도시지역,도시개발구역,제2종일반주거지역,지구단위계획구역,가축사육제한구역 / 대 252.6㎡ (76.41평) | 2,110,000 | 532,986,000원 |
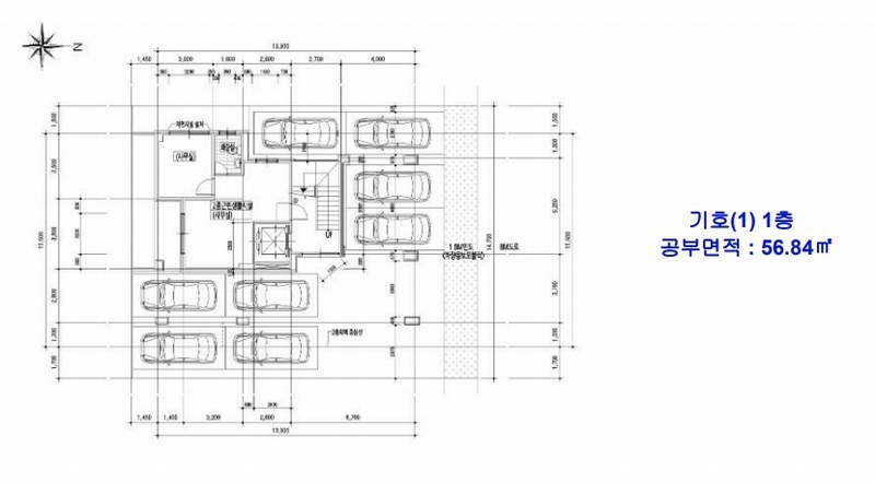
| 건물 | 1 | 덕명로98번길 5-6 [덕명동 547-2]철근콘크리트구조 (철근)콘크리트지붕 | 1층 / 단독주택(다가구주택) | 84 | 1,640,000원 |
| 2 | 2층 | 단독주택(다가구주택) | 112.29㎡(33.97평) / 1,640,000원 | 184,155,600 | * 사용승인:2015.07.16 |
| 3 | 3층 | 단독주택(다가구주택) | 112.29㎡(33.97평) / 1,640,000원 | 184,155,600 | * 사용승인:2015.07.16 |
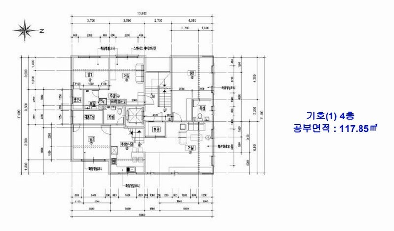
| 4 | 4층 | 단독주택(다가구주택) | 117.85㎡(35.65평) / 1,640,000원 | 193,274,000 | * 사용승인:2015.07.16 |
현황 및 위치
* 본건은 대전광역시 유성구 덕명동 소재 "하우스토리아파트" 남동측 인근에 위치하는 부동산으로서 주위는 단독주택, 근린생활시설 등이 소재하는 주택지대임. * 본건까지 차량의 접근이 가능하며 인근 노변에 버스정류장이 소재하는 등 제반 교통상황 보통시됨. * 세장형으로서 다가구주택 건부지로 이용중임. * 북측으로 소로에 접함.
참고사항
*일괄매각 * 본건 건물의 확장발코니, 옥상 누다락 등은 건물의 부합물로서 본건 건물 단가에 포함하여 평가하였음. * 본건 지상 소재 화단(식재된 관상수 등 수목 포함)은 토지의 부합물로서 거래관행상 토지에 포함하여 평가하였음.
등기부 현황
건물
| 순위 | 접수일자 | 권리종류 | 권리자 | 채권금액 | 소멸여부 | 비고 |
|---|---|---|---|---|---|---|
| 1(갑1) | 2015-07-20 | 소유권보존 | 박OO | 0 | ||
| 2(을1) | 2015-07-20 | 근저당 | 대OOOOOOOO | 516,000,000 | 소멸 | 말소기준등기 |
| 3(을6) | 2025-04-01 | 주택임차권(4층 401호) | 여OO | 240,000,000 | 소멸 | 전입:2021.01.22확정:2021.01.22보:금240,000,000원,금240,000,000원(2차), 2차차:월 금100,000원, 2차확:없음 |
| 4(을7) | 2025-06-12 | 주택임차권(2층 201호) | 진O | 50,000,000 | 소멸 | 전입:2020.07.27확정:2020.07.27 |
| 5(갑2) | 2025-10-29 | 강제경매 | 여OO | 240,000,000 | 소멸 | 2025타경503674 |
| 6(을8) | 2025-11-17 | 주택임차권(4층 402호) | 안OO | 70,000,000 | 소멸 | 전입:2022.07.15확정:2022.06.07차:매월 금140,000원 |
| 7(을9) | 2026-02-09 | 주택임차권(2층 203호) | 김OO | 70,000,000 | 소멸 | 전입:2023.03.20확정:2023.03.20 |
관련 문서 (PDF)
클릭하면 원본 파일이 열립니다