목록으로
최종 업데이트: 2026-04-22 13:21
2024타경110715
대전지방법원 본원 10계(042-470-1810)
부동산
부동산강제경매
취하/변경
진행중
| 소재지 |
-
(대전광역시 유성구 원신흥동 519-12)
|
|---|---|
| 물건종류 | 근린주택 |
| 면적 |
토지: 0.00㎡ (0평)
건물: 398.84㎡ (120.65평)
|
| 현재 위치 | 대전광역시 유성구 원신흥동 519-12 |
| 소유자 / 채무자 | 임정순 / 임정순 |
| 채권자 | 이희원외 1명 |
| 배당종기일 | 2024-08-28 |
감정가
1,435,433,800
최저가
703,362,000
보증금
70,336,200
입찰 진행 내역
| 회차/구분 | 입찰기일 | 최저매각가격 | 결과 |
|---|---|---|---|
| 1차 (진행) | 2025-05-22 | 1,435,433,800 | 유찰 |
| 2차 (진행) | 2025-06-26 | 1,004,803,000 | 유찰 |
| (진행) | 2025-07-31 | 703,362,000 | 변경 |
| (진행) | 2026-04-30 | 703,362,000 | 변경 |
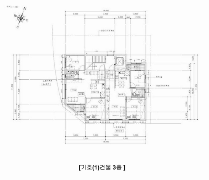
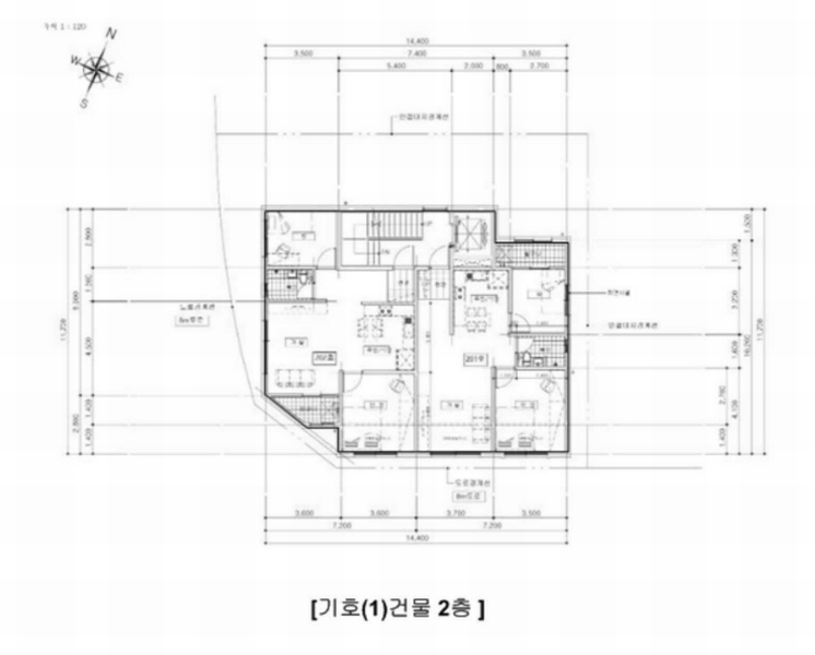
임차인 현황
| 임차인명 | 점유여부 | 전입/확정/배당 | 보증금 / 차임 | 예상배당액 | 대항력 |
|---|---|---|---|---|---|
| (주)에이치엔아이컴퍼니 | 점포 1층 전부 |
전입: -
확정: 2022-12-15 배당: 2024-07-10 |
20,000,000
월 1,100,000
|
0 | 없음 |
| 문기동 | 주거용 201호 |
전입: 2022-06-20
확정: 2022-05-24 배당: 2024-06-19 |
133,110,000
월 0
|
0 | 없음 |
| 박해옥 | 주거용 301호 |
전입: 2018-03-22
확정: 2017-07-10 배당: 2024-06-07 |
160,000,000
월 0
|
0 | 없음 |
| 이희원 | 주거용 2층 202호 |
전입: 2020-09-25
확정: 2020-09-14 배당: 2023-12-20 |
120,000,000
월 0
|
0 | 없음 |
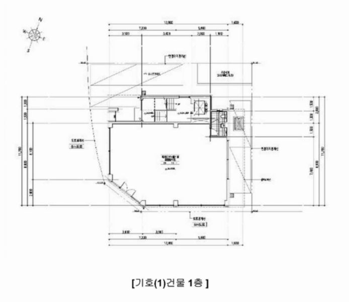
매각물건 현황
| 구분 | 순번 | 소재지 | 용도/구조/면적 | 감정가 | 비고 |
|---|---|---|---|---|---|
| 토지 | 토지 | 원신흥동 519-12 | 도시지역,제1종일반주거지역,지구단위계획구역,가축사육제한구역 / 대 264.5㎡ (80.01평) | 2,850,000 | 753,825,000원 |
| 건물 | 1 | 원신흥로100번길 37-1 [원신흥동 519-12]철근콘크리트구조 (철근)콘크리트지붕 | 1층 / 근린생활시설 및 로비 | 131 | 1,720,000원 |
| 2 | 2층 | 다가구주택 2개호 | 132.48㎡(40.08평) / 1,720,000원 | 227,865,600 | * 사용승인:2017.06.30 |
| 3 | 3층 | 다가구주택 2개호 | 132.48㎡(40.08평) / 1,720,000원 | 227,865,600 | * 사용승인:2017.06.30 |
| 제시외건물 | 1 | 원신흥로100번길 37-1 [원신흥동 519-12]조립식판넬조 판넬지붕 | 단층 / 보일러실 | 5 | 150,000원 |
| 2 | 단층 | 보일러실 | 1.3㎡(0.39평) / 150,000원 | 195,000 | 매각포함* 옥탑소재 |
현황 및 위치
* 본건은 대전광역시 유성구 원신흥동 소재 "대전체육교등학교" 북동측 인근에 위치하며, 주위는 단독주택, 다가구주택, 아파트단지, 근린생활시설 및 각급의 학교시설 등이 혼재하는 주거지역으로서, 제반 주위환경은 보통인편임 * 본건까지 차량의 접근이 가능하고 인근에 시내버스승강장이 소재하는바, 제반 대중교통상황은 보통인편임 * 가각 정리된 장방형의 평지로서 "주상용 건부지"로 이용중임 * 본건 서측 및 남동측으로 노폭 약 10미터 및 8미터의 포장도로에 각각 접함
참고사항
* 일괄매각. 제시외 건물 포함 * 발코니, 3층 위 누다락 등은 감정평가 및 매각에 포함됨. - 누다락(현황 본건 건물 3층 소재 301호 및 302호의 내부 계단을 통해 출입하고, 주거용으로 이용중인 것으로 조사됨) * 2층, 3층의 일반건축물대장 도면상의 호별 위치와 실제 건물에 표기된 호별 위치가 상이함. ☞현황서상 내용: 해당 건물은 1층 상가(상호 미상), 2층 201호-202호, 3층 301호-302호로 이루어져 있음
등기부 현황
건물
| 순위 | 접수일자 | 권리종류 | 권리자 | 채권금액 | 소멸여부 | 비고 |
|---|---|---|---|---|---|---|
| 1(갑1) | 2017-07-07 | 소유권보존 | 강OO | 0 | ||
| 2(을1) | 2017-07-07 | 근저당 | 엠OOOOOOOO | 600,000,000 | 소멸 | 말소기준등기확정채권양도전:대전서부새마을금고 |
| 3(갑2) | 2022-12-27 | 소유권이전(상속) | 임OO | 0 | ||
| 4(을2) | 2023-12-20 | 주택임차권(2층 202호) | 이OO | 120,000,000 | 소멸 | 전입:2020.09.25확정:2020.09.141차보:금115,000,000원, 2차확:2022년9월1일 |
| 5(갑3) | 2024-05-27 | 강제경매 | 이OO | 124,262,294 | 소멸 | 2024타경110715 |
| 6(갑4) | 2024-07-03 | 임의경매 | 엠OOOOOOOO | 531,736,300 | 소멸 | 2024타경7413 |
관련 문서 (PDF)
클릭하면 원본 파일이 열립니다