목록으로
최종 업데이트: 2026-04-22 13:21
2025타경11053
울산지방법원 본원 2계(052-216-8262)
부동산
부동산강제경매
유찰
진행중
| 소재지 |
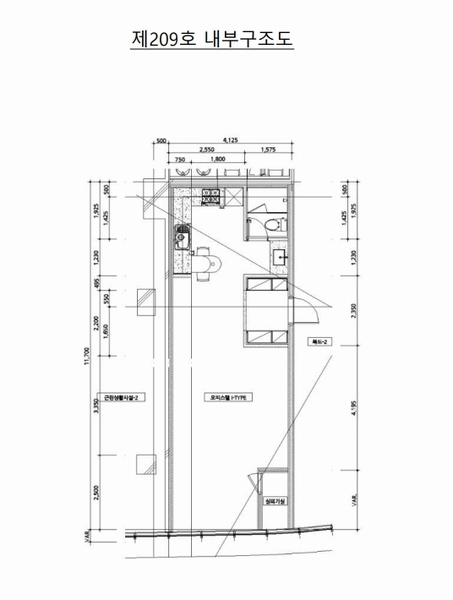
울산광역시 남구 삼산로 87, 삼환아르누보 2층 209호
(울산광역시 남구 달동 1412)
|
|---|---|
| 물건종류 | 오피스텔[계약34평형] |
| 면적 |
토지: 19.86㎡ (6.01평)
건물: 48.50㎡ (14.67평)
|
| 현재 위치 | 울산광역시 남구 삼산로 87, 삼환아르누보 2층 209호 |
| 소유자 / 채무자 | (주)유씨티건설 / (주)유씨티건설 |
| 채권자 | 김정호 외1명 |
| 배당종기일 | 2025-04-24 |
감정가
154,000,000
최저가
107,800,000
보증금
10,780,000
입찰 진행 내역
| 회차/구분 | 입찰기일 | 최저매각가격 | 결과 |
|---|---|---|---|
| 1차 (진행) | 2026-02-19 | 154,000,000 | 유찰 |
| (진행) | 2026-03-26 | 107,800,000 | 변경 |
| 2차 (진행) | 2026-03-26 | 154,000,000 | 유찰 |
| 3차 (진행) | 2026-04-30 | 107,800,000 | |
| 4차 (진행) | 2026-06-04 | 75,460,000 | |
| 5차 (진행) | 2026-07-09 | 52,822,000 |
임차인 현황
| 임차인명 | 점유여부 | 전입/확정/배당 | 보증금 / 차임 | 예상배당액 | 대항력 |
|---|---|---|---|---|---|
| 김정호 | 주거용 전부 |
전입: 2024-06-05
확정: 2024-08-19 배당: 2024-09-06 |
20,000,000
월 500,000
|
0 | 없음 |
매각물건 현황
| 구분 | 순번 | 소재지 | 용도/구조/면적 | 감정가 | 비고 |
|---|---|---|---|---|---|
| 건물 | 33층중 2층 | 09.04.03 | 48.5㎡(14.67평)[계약34평] / 오피스텔 | 107,800,000 |
현황 및 위치
* 본건은 울산광역시 남구 달동 소재 ""강남초등학교"" 남서측 인근에 위치하며, 주위는 근린생활시설, 공동주택 및 업무시설 등으로 형성되어 있음. * 본건까지 차량접근 가능하며, 인근에 버스정류장 등이 소재하여 제반 교통사정은 보통임. * 부정형의 평지로서 공동주택, 근린생활시설 및 업무시설 건부지로 이용중임. * 외부 가로망 상태 보통임.
전문가 코멘트
☞ 미납관리비의 경우 사용자 부담이 원칙이나 사용자가 납부하지 않은 경우 공용부분 관리비는 대법원판례(2001다8677 전원합의체)에 따라서 매수인에게 승계됩니다. 관리비채권의 법적 소멸시효는 3년이며 미납관리비의 연체료나 관리사무소에서 임의적으로 계산한 지연손해금등이 매수자에게 승계되지 않습니다. 위 사항을 참고하여 관리사무소와 협의하여 처리하시기 바랍니다.☞ 관리비 채권의 법정 소멸시효는 3년이나 미납관리비를 이유로 소멸시효 중단조치(민법 168조재판상의 청구,압류,가압류,가처분 등)를 한 경우 3년이 경과한 관리비이더라도 소멸되지 않습니다.
등기부 현황
건물
| 순위 | 접수일자 | 권리종류 | 권리자 | 채권금액 | 소멸여부 | 비고 |
|---|---|---|---|---|---|---|
| 1(갑6) | 2016-05-19 | 소유권이전(매매) | (OOOOOOO | 0 | 거래가액:140,000,000 | |
| 2(을3) | 2018-10-30 | 근저당 | 아OOOOOOOOOOOOOO | 120,000,000 | 소멸 | 말소기준등기 |
| 3(을4) | 2024-09-06 | 주택임차권(전부) | 김OO | 20,000,000 | 소멸 | 전입:2024.06.05확정:2024.08.19차:금500,000원 |
| 4(갑7) | 2025-01-24 | 강제경매 | 김OO | 20,279,452 | 소멸 | 2025타경11053 |
| 5(갑8) | 2025-05-28 | 압류 | 국OOOOOOOO | 0 | 소멸 | |
| 6(갑9) | 2025-05-28 | 임의경매 | 아OOOOOOOO | 103,402,618 | 소멸 | 2025타경11884 |
| 7(갑10) | 2025-09-22 | 압류 | 남OOOOOOOO | 0 | 소멸 |
관련 문서 (PDF)
클릭하면 원본 파일이 열립니다