목록으로
최종 업데이트: 2026-04-22 13:21
2025타경11261
서울남부지방법원 본원 4계(02-2192-1334)
부동산
부동산강제경매
유찰
진행중
| 소재지 |
-
(서울특별시 강서구 화곡동 73-68)
|
|---|---|
| 물건종류 | 다세대(빌라) |
| 면적 |
토지: 18.46㎡ (5.58평)
건물: 26.86㎡ (8.13평)
|
| 현재 위치 | 서울특별시 강서구 화곡동 73-68 |
| 소유자 / 채무자 | 송미경,장진환 / 송미경,장진환 |
| 채권자 | 주택도시보증공사 |
| 배당종기일 | 2025-10-28 |
감정가
279,000,000
최저가
142,848,000
보증금
14,284,800
입찰 진행 내역
| 회차/구분 | 입찰기일 | 최저매각가격 | 결과 |
|---|---|---|---|
| 1차 (진행) | 2025-11-26 | 279,000,000 | 유찰 |
| 2차 (진행) | 2026-01-21 | 223,200,000 | 유찰 |
| 3차 (진행) | 2026-03-11 | 178,560,000 | 유찰 |
| 4차 (진행) | 2026-04-16 | 142,848,000 |
임차인 현황
| 임차인명 | 점유여부 | 전입/확정/배당 | 보증금 / 차임 | 예상배당액 | 대항력 |
|---|---|---|---|---|---|
| 이선엽 | 주거용 전부 |
전입: 2021-08-09
확정: 2021-07-19 배당: 2023-08-31 |
280,000,000
월 0
|
0 | 있음 |
| 주택도시보증공사 | 주거용 301호 전부 |
전입: 2021-08-09
확정: 2021-07-19 배당: 2025-10-22 |
280,000,000
월 0
|
0 | 있음 |
| 허경서 | 주거용 미상 |
전입: 2025-05-27
확정: - 배당: - |
0
월 0
|
0 | - |
매각물건 현황
| 구분 | 순번 | 소재지 | 용도/구조/면적 | 감정가 | 비고 |
|---|---|---|---|---|---|
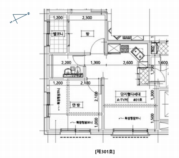
| 건물 | 5층중 3층 | 21.07.02 | 26.855㎡(8.12평) / 도시형생활주택(단지형다세대주택) | 83,700,000 | * 도시가스에 의한 난방설비 |
등기부 현황
건물
| 순위 | 접수일자 | 권리종류 | 권리자 | 채권금액 | 소멸여부 | 비고 |
|---|---|---|---|---|---|---|
| 1(갑1) | 2021-07-08 | 소유권보존 | 송OOOOOO | 0 | 송미경 9/10, 장진환 1/10 | |
| 2(을4) | 2023-08-31 | 주택임차권(전부) | 이OO | 280,000,000 | 소멸 | 전입:2021.08.09확정:2021.07.19 |
| 3(갑2) | 2025-07-29 | 강제경매 | 주OOOOOOOOOOOOOOOOO | 280,000,000 | 소멸 | 말소기준등기2025타경11261 |
관련 문서 (PDF)
클릭하면 원본 파일이 열립니다