목록으로
최종 업데이트: 2026-04-22 13:21
2025타경11487
대전지방법원 천안지원 2계(041-620-3072)
부동산
부동산강제경매
유찰
진행중
| 소재지 |
충청남도 아산시 탕정면로 37, 탕정삼성트라팰리스 401동 23층 2301호
(충청남도 아산시 탕정면 명암리 809)
|
|---|---|
| 물건종류 | 아파트[공급32평형] |
| 면적 |
토지: 39.30㎡ (11.89평)
건물: 84.68㎡ (25.62평)
|
| 현재 위치 | 충청남도 아산시 탕정면로 37, 탕정삼성트라팰리스 401동 23층 2301호 |
| 소유자 / 채무자 | 강숙자 / 강숙자 |
| 채권자 | 주택도시보증공사 |
| 배당종기일 | 2025-07-08 |
감정가
424,000,000
최저가
101,802,000
보증금
10,180,200
입찰 진행 내역
| 회차/구분 | 입찰기일 | 최저매각가격 | 결과 |
|---|---|---|---|
| 1차 (진행) | 2025-11-24 | 424,000,000 | 유찰 |
| 2차 (진행) | 2025-12-29 | 296,800,000 | 유찰 |
| 3차 (진행) | 2026-02-02 | 207,760,000 | 유찰 |
| 4차 (진행) | 2026-03-16 | 145,432,000 | 유찰 |
| 5차 (진행) | 2026-04-20 | 101,802,000 | |
| 6차 (진행) | 2026-06-01 | 71,261,000 | |
| 7차 (진행) | 2026-07-06 | 49,883,000 | |
| 8차 (진행) | 2026-08-10 | 34,918,000 |
임차인 현황
| 임차인명 | 점유여부 | 전입/확정/배당 | 보증금 / 차임 | 예상배당액 | 대항력 |
|---|---|---|---|---|---|
| 이미주 | 주거용 전부 |
전입: 2021-05-11
확정: 2021-05-11 배당: 2024-07-08 |
400,000,000
월 0
|
0 | 있음 |
매각물건 현황
| 구분 | 순번 | 소재지 | 용도/구조/면적 | 감정가 | 비고 |
|---|---|---|---|---|---|
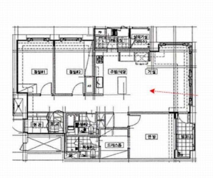
| 건물 | 36층중 23층 | 13.01.30 | 84.68㎡(25.62평)[공급32평] / 방3, 거실, 주방/식당, 욕실2, 드레스룸, 발코니 등 | 334,960,000 | * 난방설비(지역) |
현황 및 위치
* 본건 아파트단지는 충청남도 아산시 탕정면 명암리 소재 "탕정면 행정복지센터" 북측 인근에 위치하고, 주변은 아파트단지 및 근린생활시설, 산업단지, 농촌마을 등으로 형성되어 있으며, 접근성 및 주변환경 등으로 보아 제반 여건은 무난시됨. * 본건 아파트단지까지 차량의 출입이 가능하고, 인근의 간선도로상에 버스정류장이 소재하며, 노선버스의 운행여건 등을 고려하면 대중교통이용의 편의도는 보통임. * 사다리형의 완경사토지로서 "아파트부지"로 이용중임. * 본건 아파트단지 남측 및 서측으로 왕복6차선, 동측 및 북측으로 왕복2차선 간선도로를 이용하여 접근가능하며, 도로의 폭 및 계통, 연속성 등의 도로여건은 양호시됨.
전문가 코멘트
☞ 미납관리비의 경우 사용자 부담이 원칙이나 사용자가 납부하지 않은 경우 공용부분 관리비는 대법원판례(2001다8677 전원합의체)에 따라서 매수인에게 승계됩니다. 관리비채권의 법적 소멸시효는 3년이며 미납관리비의 연체료나 관리사무소에서 임의적으로 계산한 지연손해금등이 매수자에게 승계되지 않습니다. 위 사항을 참고하여 관리사무소와 협의하여 처리하시기 바랍니다.☞ 관리비 채권의 법정 소멸시효는 3년이나 미납관리비를 이유로 소멸시효 중단조치(민법 168조재판상의 청구,압류,가압류,가처분 등)를 한 경우 3년이 경과한 관리비이더라도 소멸되지 않습니다.
등기부 현황
건물
| 순위 | 접수일자 | 권리종류 | 권리자 | 채권금액 | 소멸여부 | 비고 |
|---|---|---|---|---|---|---|
| 1(갑5) | 2022-07-26 | 소유권이전(매매) | 강OO | 0 | 거래가액:480,000,000 | |
| 2(갑7) | 2024-02-14 | 가압류 | 경OOOOOOOOOOOOO | 40,000,000 | 소멸 | 말소기준등기2024카단100541 |
| 3(을5) | 2024-07-08 | 주택임차권(전부) | 이OO | 400,000,000 | 전입:2021.05.11확정:2021.05.112차확:2023.3.17 | |
| 4(갑9) | 2025-04-07 | 강제경매 | 주OOOOOOOOOOOOOOO | 411,948,696 | 소멸 | 2025타경11487 |
| 5(갑10) | 2025-07-10 | 압류 | 동OOOOOOOOO | 0 | 소멸 |
관련 문서 (PDF)
클릭하면 원본 파일이 열립니다