목록으로
최종 업데이트: 2026-04-25 17:55
2025타경11616
대전지방법원 천안지원 5계(041-620-3075)
부동산
부동산임의경매
매각
진행중
| 소재지 |
-
(충청남도 아산시 영인면 성내리 583-70)
|
|---|---|
| 물건종류 | 주택 |
| 면적 |
토지: 0.00㎡ (0평)
건물: 251.99㎡ (76.23평)
|
| 현재 위치 | 충청남도 아산시 영인면 성내리 583-70 |
| 소유자 / 채무자 | 임수연 / 임수연 |
| 채권자 | 북삼농협 |
| 배당종기일 | 2025-07-29 |
감정가
460,579,200
최저가
225,684,000
보증금
22,568,400
진행 상태 / 매각 결과
매각
completed = false
매각허가결정
| 상태 코드 | 2 | 상태 텍스트 | 매각허가결정 |
|---|---|---|---|
| 매각가 | 231,111,111원 | 매각가율 | 0% |
| 입찰 수 | 2 | 매수인 | 천안 정재구 |
| 차순위 입찰가 | 225,800,000원 | 매각허가 결정 | 매각허가결정 |
| 매각허가 결정일 | 2026-04-08 | 대금 지급기한 | - |
| 대금 지급상태 | - | 배당기일 | - |
| 배당 종결일 | - | 다음 확인 예정 | 2026-04-26 09:00 |
입찰 진행 내역
| 회차/구분 | 입찰기일 | 최저매각가격 | 결과 |
|---|---|---|---|
| 1차 (진행) | 2026-01-21 | 460,579,200 | 유찰 |
| 2차 (진행) | 2026-02-25 | 322,405,000 | 유찰 |
| 3차 (진행) | 2026-04-01 | 225,684,000 |
진행 메모
매각 : 231,111,111 원 (50.18%)
(입찰 2 명,매수인:천안 정재구 / 차순위금액 225,800,000원)
매각결정기일 : 2026.04.08 - 매각허가결정
대금지급기한 : 2026.05.08
대금납부 2026.04.16 / 배당기일 2026.05.14
임차인 현황
| 임차인명 | 점유여부 | 전입/확정/배당 | 보증금 / 차임 | 예상배당액 | 대항력 |
|---|---|---|---|---|---|
| SHECHNERSARAHJANE | 주거용 |
전입: 2023-06-23
확정: - 배당: - |
0
월 0
|
0 | 없음 |
매각물건 현황
| 구분 | 순번 | 소재지 | 용도/구조/면적 | 감정가 | 비고 |
|---|---|---|---|---|---|
| 토지 | 토지 | 1 | 성내리 583-70 / 가축사육제한구역,농림지역,농업보호구역 | 7 | 103,000원(11,100원) |
| 토지 | 2 | 성내리 583-75 | 가축사육제한구역,농림지역,농업보호구역 / 도로 7㎡ (2.12평) | 103,000 | 721,000원 |
| 토지 | 3 | 성내리 583-72 | 가축사육제한구역,농림지역,농업보호구역 / 대 529㎡ (160.02평) | 312,000 | 165,048,000원 |
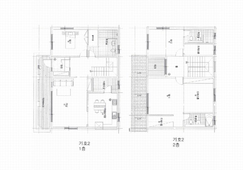
| 건물 | 1 | 토정샘로 232-28 [성내리 583-72]블록구조 스페니쉬기와지붕 | 1층 / 단독주택(방1, 거실, 주방, 화장실, 테라스 등) | 103 | 1,480,000원 |
| 2 | 2층 | 단독주택(방2, 화장실2, 드레스룸 등) | 86.43㎡(26.15평) / 1,480,000원 | 127,916,400 | * 사용승인:2017.04.14 |
| 제시외건물및기타 | 1 | 성내리 583-72경량철골조 강판지붕 등 1.경량철골조 강판지붕, 2.목조, 3.조립식판넬조 판넬지붕, 4.철재 메쉬 | 단층 / 차고 | 42 | 100,000원 |
| 2 | 데크 | 16㎡(4.84평) / 120,000원 | 1,920,000 | 매각포함 | |
| 3 | 단층 | 창고 등 | 3.7㎡(1.12평) / 200,000원 | 740,000 | 매각포함 |
| 4 | 펜스 1식 | / | 5,600,000 | 매각포함 |
현황 및 위치
* 본건은 충청남도 아산시 영인면 성내리 소재 ""성내저수지"" 남측 인근에 위치하며, 주위는 단독주택, 농경지, 저수지 및 자연림 등이 소재하며 전반적인 제반 주위환경은 보통입니다. * 본건까지 차량의 접근은 가능하며, 인근에 시내버스 승강장이 소재하는 등 일반적인 교통사정은 보통시됩니다. * 대체로 사다리형 완경사의 토지로서, (4)는 단독주택 건부지, (1, 3)은 도로로 이용중입니다. * (4) 북동측으로 폭 약6m의 포장도로에 접하며, (1, 3)은 대상이 도로입니다.
참고사항
* 일괄매각. * 제시외 건물 4-1 내지 4-4(감정평가서상 ㉠ 내지 ㉣)및 수목 매각 포함. * 토3) 토지상의 옹벽과 일부 수목은 일반적인 거래관행 등을 고려하여 토지에 포함
등기부 현황
건물
| 순위 | 접수일자 | 권리종류 | 권리자 | 채권금액 | 소멸여부 | 비고 |
|---|---|---|---|---|---|---|
| 1(갑1) | 2017-04-21 | 소유권보존 | 이OO | 0 | ||
| 2(을1) | 2017-04-21 | 근저당 | 북OOOOOOOOO | 318,500,000 | 소멸 | 말소기준등기 |
| 3(갑2) | 2017-12-05 | 소유권이전(매매) | 임OO | 0 | ||
| 4(갑5) | 2022-03-24 | 압류 | 국OOOOOOO | 0 | 소멸 | |
| 5(갑7) | 2023-08-16 | 가압류 | 소OOOOOOOOOOOOOOO | 8,536,220 | 소멸 | 2023카단104856 |
| 6(갑9) | 2025-04-23 | 임의경매 | 북OOO | 193,514,657 | 소멸 | 2025타경11616 |
관련 문서 (PDF)
클릭하면 원본 파일이 열립니다