목록으로
최종 업데이트: 2026-04-28 06:06
2025타경20249
대전지방법원 공주지원 2계(041-840-5743)
부동산
부동산임의경매
매각
진행중
| 소재지 |
-
(충청남도 공주시 월미동 111-5)
|
|---|---|
| 물건종류 | 주택 |
| 면적 |
토지: 0.00㎡ (0평)
건물: 196.48㎡ (59.44평)
|
| 현재 위치 | 충청남도 공주시 월미동 111-5 |
| 소유자 / 채무자 | 신호섭 / 신호섭 |
| 채권자 | 오상윤 |
| 배당종기일 | 2025-07-07 |
감정가
354,846,760
최저가
248,392,732
보증금
24,839,300
진행 상태 / 매각 결과
매각
completed = false
매각허가결정
| 상태 코드 | 2 | 상태 텍스트 | 매각허가결정 |
|---|---|---|---|
| 매각가 | 248,392,889원 | 매각가율 | 0% |
| 입찰 수 | 1 | 매수인 | 김민 |
| 차순위 입찰가 | 0원 | 매각허가 결정 | 매각허가결정 |
| 매각허가 결정일 | 2026-04-21 | 대금 지급기한 | - |
| 대금 지급상태 | - | 배당기일 | - |
| 배당 종결일 | - | 다음 확인 예정 | 2026-04-29 09:00 |
입찰 진행 내역
| 회차/구분 | 입찰기일 | 최저매각가격 | 결과 |
|---|---|---|---|
| 1차 (진행) | 2026-03-10 | 354,846,760 | 유찰 |
| 2차 (진행) | 2026-04-14 | 248,392,732 |
진행 메모
매각 : 248,392,889 원 (70%)
(입찰 1 명,매수인:김민)
매각결정기일 : 2026.04.21 - 매각허가결정
매각물건 현황
| 구분 | 순번 | 소재지 | 용도/구조/면적 | 감정가 | 비고 |
|---|---|---|---|---|---|
| 토지 | 토지 | 월미동 111-5 | 계획관리지역,성장관리계획구역,가축사육제한구역 / 대 445㎡ (134.61평) | 176,000 | 78,320,000원 |
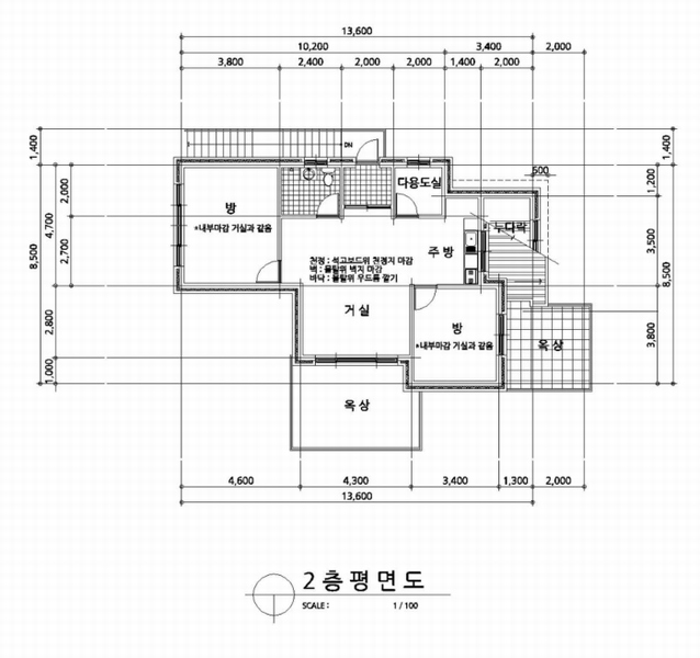
| 건물 | 1 | 송산길 17-13(월미동) [월미동 111-5 주건축물제1동]철근콘크리트구조 철근콘크리트지붕 | 1층 / 단독주택 | 110 | 1,462,000원 |
| 2 | 2층 | 단독주택 | 77.8㎡(23.53평) / 1,462,000원 | 113,743,600 | * 사용승인:2017.09.25 |
| 제시외건물 | 월미동 111-5샌드위치판낼 | 창고 / 8.5㎡(2.57평) | 200,000 | 1,700,000원 |
현황 및 위치
* 본건은 충남 공주시 월미동 소재 ""귀산2리교차로"" 남동측에 위치하며, 주위는 농지를 중심으로 농가주택 등이 위치하고 있음. * 본건까지 차량의 접근이 가능하며, 근거리에 시내버스 승강장이 소재함. * 부정형의 토지로 다가구 주택의 건부지로 이용중임 * 북측으로 통행로에 접해 있음.
참고사항
* 일괄매각. 제시외 건물 포함 ☞현황서상 내용: 토지 공부상 지목은 대지로써 현황 주거용 건부지 및 일부 전으로 이용하고 있음.
등기부 현황
건물
| 순위 | 접수일자 | 권리종류 | 권리자 | 채권금액 | 소멸여부 | 비고 |
|---|---|---|---|---|---|---|
| 1(갑1) | 2024-12-02 | 소유권보존 | 신OO | 0 | ||
| 2(을1) | 2024-12-20 | 근저당 | 오OO | 105,000,000 | 소멸 | 말소기준등기 |
| 3(갑2) | 2025-04-17 | 임의경매 | 오OO | 70,000,000 | 소멸 | 2025타경20249 |
관련 문서 (PDF)
클릭하면 원본 파일이 열립니다