목록으로
최종 업데이트: 2026-04-22 13:21
2024타경58164
대전지방법원 서산지원 3계(041-660-0693)
부동산
부동산강제경매
유찰
진행중
| 소재지 |
-
(충청남도 태안군 원북면 신두리 1167-45)
|
|---|---|
| 물건종류 | 근린시설 |
| 면적 |
토지: 0.00㎡ (0평)
건물: 117.40㎡ (35.51평)
|
| 현재 위치 | 충청남도 태안군 원북면 신두리 1167-45 |
| 소유자 / 채무자 | 상명종합개발(주) / 상명종합개발(주) |
| 채권자 | (주)랜드프라퍼티 |
| 배당종기일 | 2025-02-05 |
감정가
65,391,800
최저가
22,428,000
보증금
2,242,800
입찰 진행 내역
| 회차/구분 | 입찰기일 | 최저매각가격 | 결과 |
|---|---|---|---|
| 1차 (진행) | 2025-11-26 | 65,391,800 | 유찰 |
| 2차 (진행) | 2026-01-07 | 45,774,000 | 유찰 |
| 3차 (진행) | 2026-03-18 | 32,041,000 | 유찰 |
| 4차 (진행) | 2026-04-15 | 22,428,000 |
매각물건 현황
| 구분 | 순번 | 소재지 | 용도/구조/면적 | 감정가 | 비고 |
|---|---|---|---|---|---|
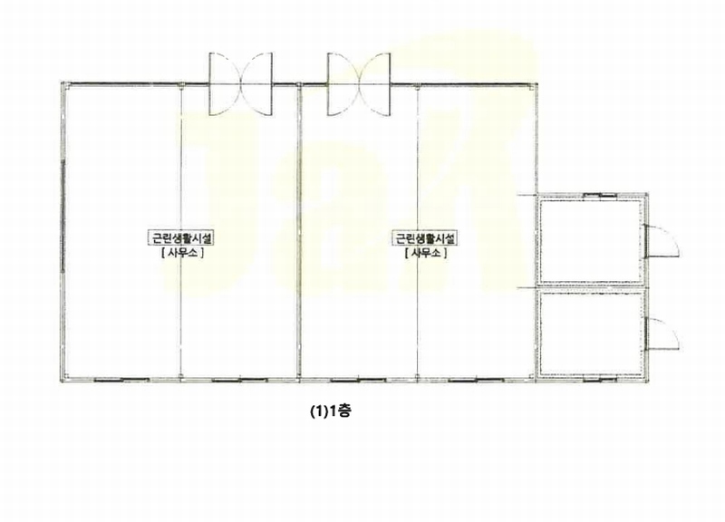
| 건물 | 신두리 1167-45경량철골구조 | 단층 | 사무소2, W·C2 등 / 117.4㎡(35.51평) | 557,000 | 65,391,800원 |
현황 및 위치
* 본건은 충청남도 태안군 원북면 신두리 소재 "신두3리 다목적회관" 남서측 인근에 위치하는 건물입니다.
참고사항
* 건물만 매각 * 본건 대지권의 목적이 될 태안군 원북면 신두리 1167-45는 타인소유임. * 건축법상 사용승인 받지 않은 건물임. * 최저매각가격은 건물만의 가액임. * 등기부상 지붕소재에 대한 기재가 없으나 현황 샌드위치판넬지붕임 ☞현황서상 내용: 신두리 1167-45 임야 지상에 소재한 단층 제2종근린생활시설 건물(건축물대장이 존재하지 않음)로 외부 마감공사는 완료되어 있으나 창호공사와 전기계량기 등의 설비 부분이 미비한 상태로 조사되므로 그밖에 구체적인 내용은 감정인의 감정평가서를 참고하시기 바라며, 건물 주변에는 풀이 무성하게 자라 있음
전문가 코멘트
** 건물만 경매되는 물건입니다. 따라서 법정지상권이나 건물등기 있는 차지권, 혹은 낙찰 후 토지 매입,임차 등의 방법으로 토지 사용권을 확보하여 건물의 안정적인 유지가 가능한지가 중요한 물건입니다. 일반론에 대한 추가적인 내용은 PC버전은 등기부 요약란 아래의 유치권/법정지상권 버튼을 눌러 참고하시고 모바일버전의 경우 자료실의 관련자료를 참고하시기 바랍니다. 본 건에서 구체적으로 검토하여야 할 사항은 다음과 같습니다. 본건의 경우 토지등기부와 건물등기부를 바탕으로 판단하면 소유자가 일치한 기간이 없어서 법정지상권의 성립 가능성이 없는 물건입니다. ( 다만 건물의 종전 소유자가 토지소유자이므로 실제 건축시기가 보존등기보다 빠른 경우 법정지상권이 성립할 가능성은 있습니다. 이 경우 현재도 유효한지를 조사하여야 합니다. ) 따라서 토지의 매입이나 임차 등 별도의 토지사용권을 확보할 가능성이 있어야 입찰이 가능한 물건입니다. 현재는 토지소유자가 경매청구를 한 상태라 위험성이 높은 물건입니다.
등기부 현황
건물
| 순위 | 접수일자 | 권리종류 | 권리자 | 채권금액 | 소멸여부 | 비고 |
|---|---|---|---|---|---|---|
| 1(갑1) | 2024-11-06 | 소유권보존 | 상OOOOOOOO | 0 | 강제경매등기의 촉탁으로 인하여 | |
| 2(갑2) | 2024-11-06 | 강제경매 | (OOOOOOOO | 3,090,913 | 소멸 | 말소기준등기2024타경58164 |
| 3(갑3) | 2025-02-21 | 압류 | 국OOOOOOOO | 0 | 소멸 |
관련 문서 (PDF)
클릭하면 원본 파일이 열립니다