목록으로
최종 업데이트: 2026-04-24 03:29
2024타경59709
대전지방법원 서산지원 3계(041-660-0693)
부동산
부동산강제경매
취하/변경
진행중
| 소재지 |
-
(충청남도 서산시 부석면 월계리 973-9)
|
|---|---|
| 물건종류 | 주택 |
| 면적 |
토지: 0.00㎡ (0평)
건물: 146.14㎡ (44.21평)
|
| 현재 위치 | 충청남도 서산시 부석면 월계리 973-9 |
| 소유자 / 채무자 | 우○○ / 우○○ |
| 채권자 | 현대카드(주) |
| 배당종기일 | 2025-01-17 |
감정가
236,894,560
최저가
116,078,000
보증금
11,607,800
입찰 진행 내역
| 회차/구분 | 입찰기일 | 최저매각가격 | 결과 |
|---|---|---|---|
| 1차 (진행) | 2025-11-26 | 236,894,560 | 유찰 |
| 2차 (진행) | 2026-01-07 | 165,826,000 | 유찰 |
| (진행) | 2026-03-18 | 116,078,000 | 취하 |
진행 메모
본사건은 취하(으)로 경매절차가 종결되었습니다.
매각물건 현황
| 구분 | 순번 | 소재지 | 용도/구조/면적 | 감정가 | 비고 |
|---|---|---|---|---|---|
| 토지 | 토지 | 월계리 973-9월○○ | 가축사육제한구역,생산관리지역 / 대 779㎡ (235.65평) | 99,000 | 77,121,000원 |
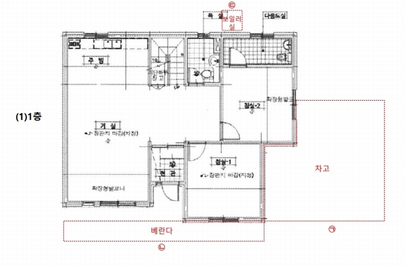
| 건물 | 1 | 마산로 51-59 [월계리 973-9]마○○일반목구조 세라믹기와지붕 | 1층 / 주방, 거실, 침실2, 발코니, 욕실, 다용도실 등 | 82 | 1,366,000원 |
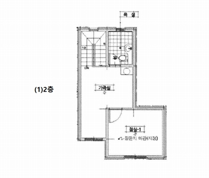
| 2 | 2층 | 가족실, 침실, 욕실등 | 34.84㎡(10.54평) / 1,366,000원 | 47,591,440 | * 사용승인:2020.04.14* LPG에 의한 난방설비 |
| 제시외건물및수목 | 1 | 월계리 973-9월○○경량철골조 판넬지붕 등 1.경량철골조 판넬지붕, 2.벽체이용샷시조 PC지붕, 3.판넬조 판넬지붕 | 단층 / 차고 | 48 | |
| 2 | 단층 | 베란다 | 10㎡(3.03평) / | 3,000,000 | 매각포함 |
| 3 | 단층 | 보일러실 | 1㎡(0.3평) / | 300,000 | 매각포함 |
현황 및 위치
* 본건은 충청남도 서산시 부석면 월계리 소재 "황곡저수지" 북서측 인근에 위치하며, 주위는 전·답의 농경지, 단독주택 등이 혼재하는 등 주위환경은 보통임. * 본건까지 제 차량의 출입 가능하며, 인근에 버스정류장이 소재하는 등 전반적인 교통상황은 보통임. * 인접 도로 대비 대체로 등고 평탄하게 조성한 사다리형의 토지이고 주거용 건부지로 이용중임. * 본건 북동측으로 폭 약 4미터 내외의 포장도로가 소재함.
참고사항
* 일괄매각. * 제시외 건물(ㄱ,ㄴ,ㄷ) 포함 * 본건 토지 지상에는 조경수 등이 소재하나 거래관행 조경수의 경제적가치 등을 고려하여 토지에 포함하여 평가하였음. ☞현황서상 내용: 건물)현관 출입문 주변에 목재 데크와 차양이 시공되어 있으며, 육안으로 남동쪽 건물은 외벽이 다른 것으로 보아 증축한 것으로 보이므로 증축 여부 및 그밖에 구체적인 내용은 감정인의 감정평가서를 참고하시기 바람. 토지)남쪽 지상은 진입로가 있고 마당 겸 주차장으로 이용하고 있으며, 남동쪽 부분에 미상의 수목 4그루가 식재되어 있고 주택과 인접한 부분에는 이동식 야외 수영장이 설치되어 있으며, 동쪽 외곽 지상은 석축 시공이 되어 있음.
등기부 현황
건물
| 순위 | 접수일자 | 권리종류 | 권리자 | 채권금액 | 소멸여부 | 비고 |
|---|---|---|---|---|---|---|
| 1(갑2) | 2021-11-08 | 소유권이전(매매) | 우OO | 0 | ||
| 2(갑3) | 2024-10-22 | 강제경매 | 현OOOOOO | 18,110,080 | 소멸 | 말소기준등기2024타경59709 |