목록으로
최종 업데이트: 2026-04-22 13:21
2024타경53527
대전지방법원 서산지원 4계(041-660-0694)
부동산
부동산강제경매
유찰
진행중
| 소재지 |
-
(충청남도 태안군 이원면 관리 1058-1)
|
|---|---|
| 물건종류 | 노유자시설 |
| 면적 |
토지: 0.00㎡ (0평)
건물: 2550.85㎡ (771.63평)
|
| 현재 위치 | 충청남도 태안군 이원면 관리 1058-1 |
| 소유자 / 채무자 | 사회복지법인서혜원 / 사회복지법인서혜원 |
| 채권자 | 김준원 |
| 배당종기일 | 2024-07-16 |
감정가
4,694,274,000
최저가
1,127,095,000
보증금
112,709,500
입찰 진행 내역
| 회차/구분 | 입찰기일 | 최저매각가격 | 결과 |
|---|---|---|---|
| (진행) | 2025-01-22 | 4,694,274,000 | 변경 |
| 1차 (진행) | 2025-07-16 | 4,694,274,000 | 유찰 |
| 2차 (진행) | 2025-08-20 | 3,285,992,000 | 유찰 |
| 3차 (진행) | 2025-09-24 | 2,300,194,000 | 유찰 |
| (진행) | 2025-10-29 | 1,610,136,000 | 변경 |
| 4차 (진행) | 2025-12-03 | 4,694,274,000 | 유찰 |
| 5차 (진행) | 2026-01-14 | 3,285,992,000 | 유찰 |
| 6차 (진행) | 2026-02-25 | 2,300,194,000 | 유찰 |
| 7차 (진행) | 2026-03-25 | 1,610,136,000 | 유찰 |
| 8차 (진행) | 2026-04-22 | 1,127,095,000 | |
| 9차 (진행) | 2026-05-27 | 788,966,000 | |
| 10차 (진행) | 2026-07-08 | 552,276,000 | |
| 11차 (진행) | 2026-08-12 | 386,593,000 |
매각물건 현황
| 구분 | 순번 | 소재지 | 용도/구조/면적 | 감정가 | 비고 |
|---|---|---|---|---|---|
| 토지 | 토지 | 관리 1058-1 | 가축사육제한구역 / 대 6450㎡ (1951.13평) | 147,000 | 948,150,000원 |
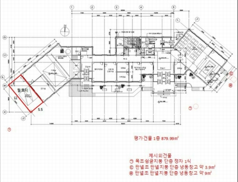
| 건물 | 1 | 발전로 939 [관리 1058-1 사회복지법인서혜원]철근콘크리트구조 (철근)콘크리트지붕 | 1층 / 노유자시설 | 879 | 1,440,000원 |
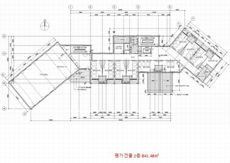
| 2 | 2층 | 노유자시설 | 841.48㎡(254.55평) / 1,440,000원 | 1,211,731,200 | * 사용승인:2011.11.18 |
| 3 | 3층 | 노유자시설 | 561.3㎡(169.79평) / 1,440,000원 | 808,272,000 | * 사용승인:2011.11.18 |
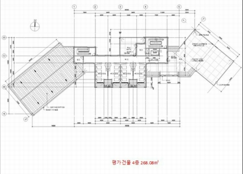
| 4 | 4층 | 노유자시설 | 268.08㎡(81.09평) / 1,440,000원 | 386,035,200 | * 사용승인:2011.11.18 |
| 제시외기타 | 1 | 관리 1058-1목조슁글지붕 등 1.목조슁글지붕, 3.판넬조 판넬지붕, 4.판넬조 판넬지붕 | 단층 / 정자 1식 | 0 | |
| 2 | 벚나무외 1식 | / | 70,500,000 | 매각포함 | |
| 3 | 단층 | 냉동창고 | 3.9㎡(1.18평) / | 0 | 매각제외* 지적개황도상 |
| 4 | 단층 | 냉동창고 | 9㎡(2.72평) / | 0 | 매각제외* 지적개황도상 |
현황 및 위치
* 본 건은 태안군 이원면 관리 소재 이원방조제 동측 인근에 위치하며, 주위는 해안주변농촌지대로서 전, 답 등의 농경지와 자연림, 단독주택 등이 혼재하고 있음. * 본 건까지 차량 출입 가능하며, 인근에 버스정류장이 소재하는 등 제반 교통사정은 보통수준임. * 대체로 부정형의 완경사지로서 현황 노유자시설의 부지로 이용중임. * 간선도로에서 본건 까지 2차선포장도로를 통하여 출입가능함.
참고사항
* 등기부상 내용 : 분할로 인하여 대 500㎡를 충청남도 태안군 이원면 관리 1058-9에 이기 * 토1)부동산이 분할 후와 같이 변경됨 * 일괄매각. * 제시외 건물(정자(ㄱ)), 수목(ㄴ) 포함 매각 * 제시외 건물(ㄷ,ㄹ) 매각에서 제외 * 본 건 지상에 소재하는 조경석(석축 등), 포장, 휀스, 필로티, 옥탑 등은 당해 토지 및 건물의 사용수익에 필요한 설비로서 당해 토지 및 건물에 포함하여 평가하였음 ☞현황서상 내용: 토지 남쪽 지상에는 위 요양원으로 진입하는 아스팔트 포장 도로가 개설되어 있으며, 위 도로변에는 석축이 시공되어 있고 미상의 수목들이 다수 식재되어 있으며, 지상 건물의 남쪽과 동쪽에는 주차장이 있고 남동쪽에는 쉼터로 조성된 정자와 야외용 의자가 놓여 있고 주변에는 산책로가 조성되어 있으며, 북동쪽 주차장에는 저온저장고로 보이는 미상의 시설물 2동이 설치되어 있으며, 본건 요양원 건물 정면과 측면에는 조경공사를 시행하여 곳곳에 소나무, 단풍나무, 동백나무, 철쭉 등 다양한 수목이 다수 식재되어 있음. 건물 중앙 부분은 지상 4층이고 동쪽은 지상 3층이며 서쪽은 지상 2층 건물로 건축되어 있으며, 중앙 부분과 동쪽에 소재한 건물 지상 1층에는 사무실과 식당, 휴게실, 원장실, 이사장실 등이 있고 지상 2층부터 지상 4층까지는 간호사실과 병실이 있으며, 동쪽에 소재한 건물의 지상 3층 옥상에는 태양광 시설이 설치되어 있으며, 서쪽에 있는 건물에는 1층에는 전기실과 창고가 있고 지상 2층은 강당으로 이용하고 있음
전문가 코멘트
** 본 건은 유치권신고가 된 경매물건입니다. 기본적인 유치권의 성립요건은 유치권의 원인채권이 경매되는 물건의 가치증가나 보존에 기여한 변제기가 지난 채권(주로 공사채권)이어야하고 채권회수를 위하여 유치(점유 = 직접, 간접점유 무관)를 하고 있어야 합니다. 조사방법은 먼저 신고내용을 입수하여 공사의 내용과 세목 등을 파악하고 이를 기초로 이해관계자 탐문, 현장조사 등을 통하여 성립여부에 대한 판단을 합니다. 기본적인 내용은 PC버전은 등기부 요약란 아래의 유치권/법정지상권 버튼을 눌러 참고하시고 모바일버전의 경우 자료실의 관련자료를 참고하시기 바랍니다. 본 건에서 구체적으로 검토하여야 할 사항은 다음과 같습니다. == 유치권신고서 접수 사실 공지 외에 법원정보상 특별한 자료가 없으므로 채권자를 통하여 신고서 내용과 관련정보 파악, 현장조사, 낙찰 후 대비책 마련 등의 순으로 진행하여야 할 것입니다.**본 건은 법정지상권 성립여부가 문제되는 경매물건입니다. 기본적인 성립요건은 최선순위 근저당이나 가압류 당시에 건물이 있었는지 건물의 소유자는 토지 소유자와 일치 하였는지를 확인하여야 합니다. 기본적인 조사 방법은 등기부, 건축물대장, 건축허가일시, 재산세 과세 대장을 통한 자료조사와 탐문 조사(대출자, 인근 거주자)가 있습니다. 일반론에 대한 추가적인 내용은 PC버전은 등기부 요약란 아래의 유치권/법정지상권 버튼을 눌러 참고하시고 모바일버전의 경우 자료실의 관련자료를 참고하시기 바랍니다. 본 건에서 구체적으로 검토하여야 할 사항은 다음과 같습니다. == 현재 토지와 건물의 소유자는 동일하고 매각에서 제외되는 제시외 건물의 법정지상권이 문제됩니다. 제시외 건물의 경우 소유자가 동일하다는 것을 전제로하면 건축시기가 중요합니다. ( 제 3자가 소유자인 경우 기존에 성립한 법정지상권이 없다면 소유자동일성이 결여되어 법정지상권은 성립하지 않습니다. )그러나 부속 건물의 규모가 작은 경우 일반적으로 명도 과정에서 해결하는 것이 효율적이고 낙찰자 입장에서는 부합물이나 종물의 범위에 포함되는 지 여부도 검토할 사항입니다.
등기부 현황
건물
| 순위 | 접수일자 | 권리종류 | 권리자 | 채권금액 | 소멸여부 | 비고 |
|---|---|---|---|---|---|---|
| 1(갑1) | 2012-01-27 | 소유권보존 | 사OOOOOOOO | 0 | ||
| 2(갑15) | 2024-04-18 | 강제경매 | 김OO | 270,000,000 | 소멸 | 말소기준등기2024타경53527 |
| 3(갑17) | 2025-01-22 | 압류 | 태OO | 0 | 소멸 |
관련 문서 (PDF)
클릭하면 원본 파일이 열립니다