목록으로
최종 업데이트: 2026-04-23 07:23
2023타경3758
대구지방법원 김천지원 4계(054-420-2094)
부동산
부동산강제경매
취하/변경
진행중
| 소재지 |
-
(경상북도 구미시 오태동 763-3)
|
|---|---|
| 물건종류 | 근린주택 |
| 면적 |
토지: 0.00㎡ (0평)
건물: 740.90㎡ (224.12평)
|
| 현재 위치 | 경상북도 구미시 오태동 763-3 |
| 소유자 / 채무자 | (주)다판다 / (주)다판다 |
| 채권자 | 송창호 |
| 배당종기일 | 2024-04-08 |
감정가
728,851,500
최저가
174,997,000
보증금
17,499,700
입찰 진행 내역
| 회차/구분 | 입찰기일 | 최저매각가격 | 결과 |
|---|---|---|---|
| 1차 (진행) | 2025-11-05 | 728,852,000 | 유찰 |
| 2차 (진행) | 2025-12-03 | 510,196,000 | 유찰 |
| 3차 (진행) | 2026-01-07 | 357,137,000 | 유찰 |
| 4차 (진행) | 2026-02-04 | 249,995,000 | 유찰 |
| 5차 (진행) | 2026-03-11 | 174,997,000 | 매각 |
진행 메모
매각 232,000,000원(31.83%) / 1명
매각결정기일 : 2026.03.18 - 매각불허가결정
본사건은 정지 되었으며 현재 매각기일이 지정되지 않았습니다.
임차인 현황
| 임차인명 | 점유여부 | 전입/확정/배당 | 보증금 / 차임 | 예상배당액 | 대항력 |
|---|---|---|---|---|---|
| 김대훈 | 주거용 203호 |
전입: 2020-06-09
확정: - 배당: - |
0
월 0
|
0 | 없음 |
| 김재성 | 주거용 206호 |
전입: 2022-02-28
확정: - 배당: - |
0
월 0
|
0 | 없음 |
| 박명애 | 주거용 201호 |
전입: 2023-04-18
확정: - 배당: - |
0
월 0
|
0 | 없음 |
| 박미정 | 주거및영업용 102호 전부 |
전입: 2019-11-26
확정: - 배당: 2024-03-22 |
5,000,000
월 450,000
|
0 | 없음 |
| 박종덕 | 주거용 505호 |
전입: 2013-11-21
확정: - 배당: - |
0
월 0
|
0 | - |
| 백다영 | 주거용 101호 |
전입: 2023-01-19
확정: - 배당: - |
0
월 0
|
0 | 없음 |
| 송창호 | 주거용 2층남쪽 약45㎡ (205호) |
전입: 2021-07-16
확정: 2022-02-28 배당: 2022-03-22 |
17,000,000
월 30,000
|
0 | 없음 |
| 양송석 | 주거용 303호 |
전입: 2023-06-02
확정: - 배당: - |
0
월 0
|
0 | 없음 |
| 염대현 | 주거용 501호 |
전입: 2019-01-31
확정: - 배당: 2024-03-22 |
2,000,000
월 300,000
|
0 | 없음 |
| 이병재 | 주거용 205호 |
전입: 2023-08-21
확정: - 배당: - |
0
월 0
|
0 | 없음 |
| 이요한 | 주거용 506호 |
전입: 2021-09-23
확정: - 배당: - |
0
월 0
|
0 | 없음 |
| 장현동 | 주거용 202호 |
전입: 2021-02-15
확정: - 배당: - |
0
월 0
|
0 | 없음 |
| 최건 | 주거용 306호 |
전입: 2021-06-11
확정: 2021-06-11 배당: 2024-02-08 |
2,000,000
월 260,000
|
0 | 없음 |
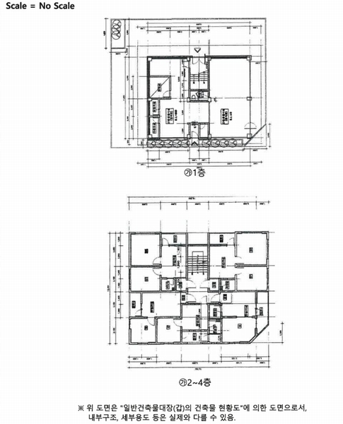
매각물건 현황
| 구분 | 순번 | 소재지 | 용도/구조/면적 | 감정가 | 비고 |
|---|---|---|---|---|---|
| 토지 | 토지 | 오태동 763-3 | 제2종일반주거지역,가축사육제한구역,상대보호구역 / 대 358.44㎡ (108.43평) | 720,000 | 258,076,800원 |
| 건물 | 1 | 금오대로22길 29-5 [오태동 763-3]철근콘크리트조 슬래브지붕 | 1층 / 다가구주택(2가구) | 525 | 540,000원 |
| 2 | 1층 | 일반음식점 | 69.275㎡(20.96평) / 540,000원 | 37,408,500 | * 사용승인:2003.04.28* 난방설비(도시가스) |
| 3 | 2층 | 다가구주택(5가구) | 196.365㎡(59.4평) / 660,000원 | 129,600,900 | * 사용승인:2003.04.28* 난방설비(도시가스) |
| 4 | 3층 | 다가구주택(5가구) | 196.365㎡(59.4평) / 660,000원 | 129,600,900 | * 사용승인:2003.04.28* 난방설비(도시가스) |
| 5 | 4층 | 다가구주택(5가구) | 196.365㎡(59.4평) / 660,000원 | 129,600,900 | * 사용승인:2003.04.28* 난방설비(도시가스) |
현황 및 위치
*본건은 구미시 오태동 소재 " 오태중학교" 남동측 인근에 위치하며, 부근은 다가구 주택, 다세대주택, 아파트, 근생시설 등으로 형성되어 있음. *본건까지 차량 등의 출입이 가능하며 대중교통시설, 제반교통상황 등으로 보아 제반교통상황은 보통임. * 북동측 하향 완경사지대에 위치한 자체지면 대체로 평탄한 장방형의 토지로서, 다가구주택 ( 1 층 일부근린생활시설 ) 부지로 이용중임. *본건 남동측 및 북동측으로 폭 약 8 미터의 포장도로, 본건남서측으로 폭 약 6 미터의 포장도로와 접함
참고사항
▶본건매각 2026.03.11 / 매각가 232,000,000원 / OOO / 1명 입찰 / 최고가매각불허가결정* 일괄매각. * 공부상 1층 일부분의 용도가 의원이나, 실제는 다가구주택(2가구)으로 사용중임. * 본건 다가구주택의 발코니부분, 옥탑부분 등은 본건 건물에 포함하여 평가하였음. * 본 공유지분 토지상에 본 건물을 포함하여 3동의 건물이 소재함. * 제시목록 및 일반건축물대장 ( 갑 ) 상 1층일부분의 용도가 " 의원"으로 등재 되어 있으나, 실제 다가구주택 ( 2 가구 ) 으로 이용중인 것으로 조사됨. ☞현황서상 내용:본건 1층은 101호, 102호(주거용과 상가), 2층은 201호, 202호, 203호, 205호, 206호, 3층 301호, 302호, 303호, 305호, 306호, 4층은 501호, 502호, 503호, 505호, 506호로 구분되어 있음
등기부 현황
건물
| 순위 | 접수일자 | 권리종류 | 권리자 | 채권금액 | 소멸여부 | 비고 |
|---|---|---|---|---|---|---|
| 1(갑5) | 2016-05-02 | 소유권이전(매매) | 윤OO | 0 | ||
| 2(을9) | 2016-05-02 | 근저당 | 북OOOOOOOOO | 288,000,000 | 소멸 | 말소기준등기 |
| 3(갑6) | 2020-04-09 | 소유권이전(매매) | (OOOOO | 0 | ||
| 4(을10) | 2022-03-22 | 주택임차권(2층남쪽 약45㎡ (205호)) | 송OO | 17,000,000 | 소멸 | 전입:2021.07.16확정:2022.02.28차:월 금30,000원 |
| 5(갑7) | 2022-12-12 | 압류 | 국OOOOOOOOO | 0 | 소멸 | |
| 6(갑8) | 2023-12-27 | 강제경매 | 송OO | 20,236,054 | 소멸 | 2023타경3758 |
관련 문서 (PDF)
클릭하면 원본 파일이 열립니다