목록으로
최종 업데이트: 2026-04-24 00:26
2024타경140621
서울남부지방법원 본원 15계(02-2192-0054)
부동산
부동산강제경매
유찰
진행중
| 소재지 |
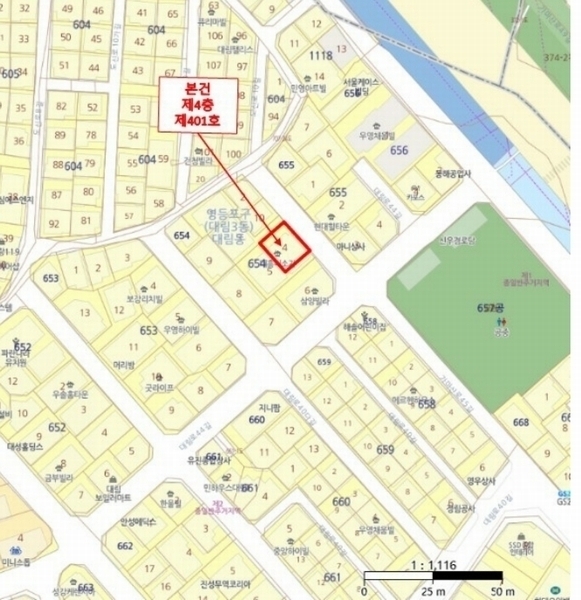
서울특별시 영등포구 가마산로45길 17, 대흥미소가 4층 401호
(서울특별시 영등포구 대림동 654-4)
|
|---|---|
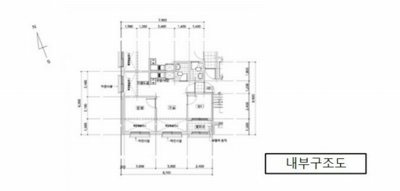
| 물건종류 | 다세대(빌라)[공급11평형] |
| 면적 |
토지: 23.63㎡ (7.15평)
건물: 33.24㎡ (10.06평)
|
| 현재 위치 | 서울특별시 영등포구 가마산로45길 17, 대흥미소가 4층 401호 |
| 소유자 / 채무자 | 이금자 / 이금자 |
| 채권자 | 윤병환 |
| 배당종기일 | 2025-02-12 |
감정가
302,000,000
최저가
98,959,000
보증금
9,895,900
입찰 진행 내역
| 회차/구분 | 입찰기일 | 최저매각가격 | 결과 |
|---|---|---|---|
| 1차 (진행) | 2025-10-20 | 302,000,000 | 유찰 |
| 2차 (진행) | 2025-12-03 | 241,600,000 | 유찰 |
| 3차 (진행) | 2026-01-28 | 193,280,000 | 유찰 |
| 4차 (진행) | 2026-03-18 | 154,624,000 | 유찰 |
| 5차 (진행) | 2026-04-23 | 123,699,000 | 유찰 |
| 6차 (진행) | 2026-06-09 | 98,959,000 | |
| 7차 (진행) | 2026-07-23 | 79,167,000 | |
| 8차 (진행) | 2026-08-26 | 63,334,000 |
임차인 현황
| 임차인명 | 점유여부 | 전입/확정/배당 | 보증금 / 차임 | 예상배당액 | 대항력 |
|---|---|---|---|---|---|
| 윤병환 | 주거용 전부 |
전입: 2021-02-04
확정: 2020-12-15 배당: 2025-01-24 |
295,000,000
월 0
|
0 | 있음 |
매각물건 현황
| 구분 | 순번 | 소재지 | 용도/구조/면적 | 감정가 | 비고 |
|---|---|---|---|---|---|
| 건물 | 5층중 4층 | 13.12.26 | 33.24㎡(10.06평)[공급11평] / 방 2, 거실,화장실,발코니 등 | 90,600,000 |
현황 및 위치
*본건은 서울특별시 영등포구 대림동 소재 " 신영초등학교" 북동측 인근에 소재하며, 주위는 다세대주택,연립주택,근린생활시설 등이 소재하므로 주위환경은 보통임. *본건까지 차량 접근이 가능하며, 인근에 노선버스정류장 및 근거리에 지하철역 ( 신도림역 1 호선, 2 호선 ) 이 소재하므로 교통상황은 보통임. *2 필지 일단의 세장형 토지로서 · 주거용 건부지로 이용 중임. *북동측으로 노폭 약 10 미터 내외의 포장도로에 접함.
참고사항
* 외필지 :대림동 654-5
등기부 현황
건물
| 순위 | 접수일자 | 권리종류 | 권리자 | 채권금액 | 소멸여부 | 비고 |
|---|---|---|---|---|---|---|
| 1(갑3) | 2021-02-05 | 소유권이전(매매) | 이OO | 0 | 거래가액:295,000,000 | |
| 2(을5) | 2021-12-28 | 근저당 | 이O | 75,000,000 | 소멸 | 말소기준등기 |
| 3(을7) | 2023-12-18 | 주택임차권(전부) | 윤OO | 295,000,000 | 전입:2021.02.04확정:2020.12.15 | |
| 4(갑4) | 2024-02-21 | 압류 | 영OOOOOOOOOO | 0 | 소멸 | |
| 5(갑5) | 2024-11-13 | 강제경매 | 윤OO | 295,000,000 | 소멸 | 2024타경140621 |
관련 문서 (PDF)
클릭하면 원본 파일이 열립니다