목록으로
최종 업데이트: 2026-04-23 16:56
2024타경35464
대구지방법원 포항지원 2계(054-250-3218)
부동산
부동산임의경매
취하/변경
진행중
| 소재지 |
-
(경상북도 포항시 남구 연일읍 자명리 177-26)
|
|---|---|
| 물건종류 | 주택 |
| 면적 |
토지: 0.00㎡ (0평)
건물: 1263.97㎡ (382.35평)
|
| 현재 위치 | 경상북도 포항시 남구 연일읍 자명리 177-26 |
| 소유자 / 채무자 | 더포레자명(주)외 4명 / 더포레자명(주) |
| 채권자 | 오천농협외 1명 |
| 배당종기일 | 2025-01-30 |
감정가
5,393,847,880
최저가
5,393,847,880
보증금
539,384,800
입찰 진행 내역
| 회차/구분 | 입찰기일 | 최저매각가격 | 결과 |
|---|---|---|---|
| (진행) | 2026-03-16 | 5,393,847,880 | 변경 |
| 1차 (진행) | 2026-05-11 | 5,393,847,880 |
임차인 현황
| 임차인명 | 점유여부 | 전입/확정/배당 | 보증금 / 차임 | 예상배당액 | 대항력 |
|---|---|---|---|---|---|
| 김진천 | 주거용 자명리 192-9 9동 |
전입: 2022-11-28
확정: - 배당: - |
0
월 0
|
0 | - |
| 손성규 | 주거용 자명리 192-9 8동 |
전입: 2023-11-28
확정: - 배당: - |
0
월 0
|
0 | - |
| 최상석 | 주거용 자명리 192-9 1동 |
전입: 2024-09-02
확정: - 배당: - |
0
월 0
|
0 | 없음 |
매각물건 현황
| 구분 | 순번 | 소재지 | 용도/구조/면적 | 감정가 | 비고 |
|---|---|---|---|---|---|
| 토지 | 토지 | 1 | 자명리 177-26 / 준보전산지,공장설립제한지역,자연녹지지역,가축사육제한구역,도시지역 | 174 | 129,000원 |
| 토지 | 2 | 자명리 192-5 | 준보전산지,공장설립제한지역,자연녹지지역,가축사육제한구역,도시지역 / 임야 596㎡ (180.29평) | 353,000 | 210,388,000원 |
| 토지 | 3 | 자명리 192-10 | 준보전산지,공장설립제한지역,자연녹지지역,가축사육제한구역,도시지역 / 임야 156㎡ (47.19평) | 129,000 | 20,124,000원 |
| 토지 | 4 | 자명리 192-11 | 준보전산지,공장설립제한지역,자연녹지지역,가축사육제한구역,도시지역 / 임야 1299㎡ (392.95평) | 124,000 | 161,076,000원 |
| 토지 | 5 | 자명리 192-12 | 준보전산지,공장설립제한지역,자연녹지지역,가축사육제한구역,도시지역 / 임야 788㎡ (238.37평) | 121,000 | 95,348,000원 |
| 토지 | 6 | 자명리 192-13 | 준보전산지,공장설립제한지역,자연녹지지역,가축사육제한구역,도시지역 / 임야 613㎡ (185.43평) | 124,000 | 76,012,000원 |
| 토지 | 7 | 자명리 192-14 | 준보전산지,공장설립제한지역,자연녹지지역,가축사육제한구역,도시지역 / 임야 1283㎡ (388.11평) | 129,000 | 165,507,000원 |
| 토지 | 8 | 자명리 192-9 | 준보전산지,공장설립제한지역,자연녹지지역,가축사육제한구역,도시지역 / 대 497㎡ (150.34평) | 380,000 | 188,860,000원 |
| 토지 | 9 | 자명리 192-19 | 준보전산지,공장설립제한지역,자연녹지지역,가축사육제한구역,도시지역 / 대 935㎡ (282.84평) | 380,000 | 355,300,000원 |
| 토지 | 10 | 자명리 192-20 | 준보전산지,공장설립제한지역,자연녹지지역,가축사육제한구역,도시지역 / 대 608㎡ (183.92평) | 373,000 | 226,784,000원 |
| 토지 | 11 | 자명리 192-21 | 준보전산지,공장설립제한지역,자연녹지지역,가축사육제한구역,도시지역 / 대 584㎡ (176.66평) | 392,000 | 228,928,000원 |
| 토지 | 12 | 자명리 192-22 | 준보전산지,공장설립제한지역,자연녹지지역,가축사육제한구역,도시지역 / 대 538㎡ (162.75평) | 380,000 | 204,440,000원 |
| 토지 | 13 | 자명리 192-23 | 준보전산지,공장설립제한지역,자연녹지지역,가축사육제한구역,도시지역 / 대 501㎡ (151.55평) | 392,000 | 196,392,000원 |
| 토지 | 14 | 자명리 192-24 | 준보전산지,공장설립제한지역,자연녹지지역,가축사육제한구역,도시지역 / 대 655㎡ (198.14평) | 373,000 | 244,315,000원 |
| 토지 | 15 | 자명리 192-25 | 준보전산지,공장설립제한지역,자연녹지지역,가축사육제한구역,도시지역 / 대 474㎡ (143.39평) | 380,000 | 180,120,000원 |
| 토지 | 16 | 자명리 192-26 | 준보전산지,공장설립제한지역,자연녹지지역,가축사육제한구역,도시지역 / 대 570㎡ (172.43평) | 380,000 | 216,600,000원 |
| 토지 | 17 | 자명리 192-27 | 준보전산지,공장설립제한지역,자연녹지지역,가축사육제한구역,도시지역 / 대 514㎡ (155.49평) | 392,000 | 201,488,000원 |
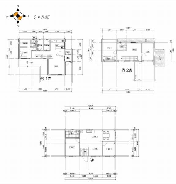
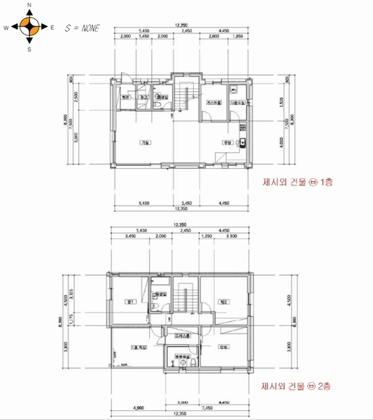
| 건물 | 1 | 자명로146번길 42-40 [자명리 192-9 10동]경량철골구조 샌드위치판넬지붕 | 1층 / 단독주택 | 59 | 700,000원 |
| 2 | 자명로146번길 42-37 [자명리 192-19 7동]경량철골구조 샌드위치판넬지붕 | 1층 | 단독주택 / 90.08㎡(27.25평) | 700,000 | 63,056,000원 |
| 3 | 자명로146번길 42-35 [자명리 192-22 5동]경량철골구조 샌드위치판넬지붕 | 1층 | 단독주택 / 59.36㎡(17.96평) | 700,000 | 41,552,000원 |
| 4 | 자명로146번길 42-36 [자명리 192-9 6동]철근콘크리트구조 아스팔트싱글지붕 | 1층 | 단독주택 / 98.62㎡(29.83평) | 2,300,000 | 226,826,000원 |
| 5 | 2층 | 단독주택 | 58.83㎡(17.8평) / 2,300,000원 | 135,309,000 | * 사용승인:2024.08.01 |
| 6 | 자명로146번길 42-33 [자명리 192-24 3동]경량철골구조 샌드위치판넬지붕 | 1층 | 단독주택 / 59.36㎡(17.96평) | 700,000 | 41,552,000원 |
| 7 | 자명로146번길 42-34 [자명리 192-9 4동]철근콘크리트구조 아스팔트싱글지붕 | 1층 | 단독주택 / 79.37㎡(24.01평) | 2,300,000 | 182,551,000원 |
| 8 | 2층 | 단독주택 | 58.83㎡(17.8평) / 2,300,000원 | 135,309,000 | * 사용승인:2024.08.01* LPG가스에의한난방설비 |
| 9 | 자명로146번길 42-31 [자명리 192-9 1동]기타강구조 아스팔트싱글지붕 | 1층 | 단독주택 / 98.62㎡(29.83평) | 2,303,000 | 227,121,860원 |
| 10 | 2층 | 단독주택 | 48.54㎡(14.68평) / 2,303,000원 | 111,787,620 | * 사용승인:2024.08.01* LPG가스에 의한 난방설비 |
| 11 | 자명로146번길 42-32 [자명리 192-9 2동]철근콘크리트구조 아스팔트싱글지붕 | 1층 | 단독주택 / 94.59㎡(28.61평) | 2,254,000 | 213,205,860원 |
| 12 | 2층 | 단독주택 | 83.89㎡(25.38평) / 2,254,000원 | 189,088,060 | * 사용승인:2024.08.01* LPG가스에 의한 난방설비 |
| 13 | 자명로146번길 42-38 [자명리 192-9 8동]기타강구조 아스팔트싱글지붕 | 1층 | 단독주택 / 110.95㎡(33.56평) | 2,303,000 | 255,517,850원 |
| 14 | 2층 | 단독주택 | 56.79㎡(17.18평) / 2,303,000원 | 130,787,370 | * 사용승인:2024.08.01* LPG가스에 의한 난방설비 |
| 15 | 자명로146번길 42-39 [자명리 192-9 9동]기타강구조 아스팔트싱글지붕 | 1층 | 단독주택 / 117.35㎡(35.5평) | 2,303,000 | 270,257,050원 |
| 16 | 2층 | 단독주택 | 56.79㎡(17.18평) / 2,303,000원 | 130,787,370 | * 사용승인:2024.08.01* LPG가스에 의한 난방설비 |
| 제시외건물 | 자명로146번길 42-39 [자명리 192-9 9동]철파이프조 판넬강판지붕 | 단층 | 창고 / 32.64㎡(9.87평) | 106,000 | 3,459,840원 |
현황 및 위치
본건은 경상북도 포항시 남구 연일읍 자명리 소재 "한숲전원마을" 동측 인근에 위치하며, 주위일대는 전원주택단지 내 단독주택, 마을인근 농경지 및 임야 등으로 형성되어 있음. * 본건 및 인근까지 제반차량 접근이 가능하며, 제반교통 사정은 보통임 * 1) 부정형 토지로서, 남하향 완경사지이며, 현황 "도로" 로 이용중임. 2) 사다리형 토지로서, 토목공사 완료되어 대체로 평탄하며, "잡종지(건축허가 득한 토지)" 로 이용중임. 3) 부정형 토지로서, 남하향 완경사지이며, "도로" 로 이용중임. 4) 부정형 토지로서, 남동하향 완경사지이며, "자연림" 으로 이용중임. 5) 사다리형 토지로서, 동하향 완경사지이며, "자연림" 으로 이용중임. 6) 사다리형 토지로서, 일부 동하향 완경사, 일부 서하향 완경사지이며, "자연림"으로 이용중임. 7) 부정형 토지로서, 일부 동하향 완경사지, 일부 평탄하며, 현황 "도로" 로 이용중임. 8,11-13,15-17) 사다리형 토지로서, 토목공사 완료되어 대체로 평탄하며, "주거용 건부지" 로 이용중임. 9) 사다리형에 가까운 토지로서, 토목공사 완료되어 대체로 평탄하며, "주거용 건부지" 로 이용중임. 10,14) 부정형 토지로서, 토목공사 완료되어 대체로 평탄하며, "주거용 건부지" 로 이용중임. * 1,3) 남측 및 북측으로 폭 약 6M의 포장도로에 각각 접하며, 본건 자체가 폭 약 6M포장도로의 일부임. 2) 북측 및 동측으로 폭 약 6M의 포장도로에 각각 접함. 4) 동측으로 폭 약 4~5M의 비포장도로에 접함 5) 지적도상 맹지이나, 동측 및 북측 인접필지를 경유하여 도보로 접근가능함. ,9,12,14,15) 동측으로 폭 약 6M의 포장도로에 접함. 7) 남측으로 폭 약 6M의 포장도로에 접하며, 본건 자체가 폭 약 6M 포장도로의 일부임. 8,16) 남측으로 폭 약 6M 포장도로에 접함. 10) 서측으로 폭 약 6M 포장도로에 접함 11) 서측 및 남측 및 동측으로 남측으로 폭 약 6M 포장도로에 각각 접함. 13) 북측 및 동측으로 남측으로 폭 약 6M 포장도로에 각각 접함. 17) 동측 및 남측으로 남측으로 폭 약 6M 포장도로에 각각 접함.
참고사항
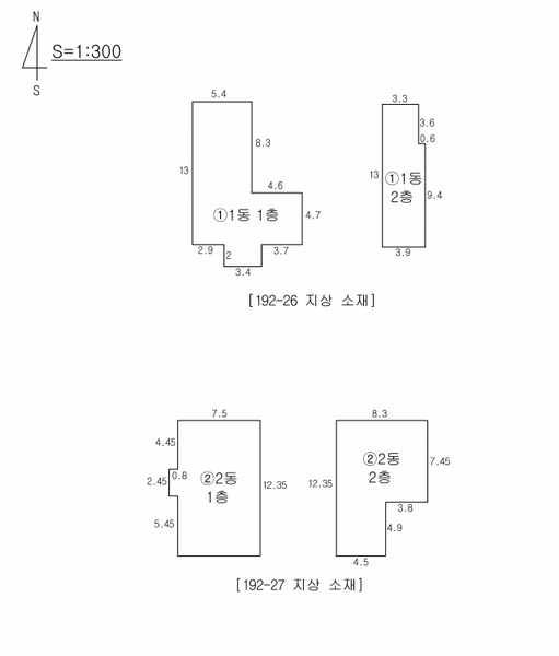
* 일괄매각. * 제시외 건물 포함 * 토2) 매각에서 제외되는 이동용이한 컨테이너 소재함. * 토4-6) 입목포함평가 * 토1,2,3,7) 공부상 지목 "임야"이나 실제 토1,3,7은 현황 "도로", 토2는 현황 "잡종지(건축허가 득한토지)임. * 건5,6,8-17) 공부상 "192-9"번지에 소재하는 것으로 등재되어 있으나, 건5,6) 실제 "192-23"지상 소재 건8,9) 실제 "192-25"지상 소재 건10,11) 실제 "192-26"지상 소재 건12,13) 실제 "192-27"지상 소재 건14,15) 실제 "192-21"지상 소재 건16,17) 실제 "192-20"지상 소재 * 토2) 토지는 건축허가 득한 토지인바, 이를 감안하여 평가하였음-대지위치 : 경상북도 포항시 남구 연일읍 자명리 192-5, 허가신고번호 : 2018-건축허가과-신축신고-138, 허가구분 : 신축신고, 허가/신고일 : 2018-07-09, 대지면적(㎡) : 588, 건축면적(㎡) : 63.36, 연면적(㎡) : 63.36, 주용도 : 단독주택, 착공구분 : 착공, 착공예정 : 2018-07-26 ▶2025타경41329병합) 감정원:유상, 가격시점:2025.09.29
전문가 코멘트
** 본 건은 유치권신고가 된 경매물건입니다. 기본적인 유치권의 성립요건은 유치권의 원인채권이 경매되는 물건의 가치증가나 보존에 기여한 변제기가 지난 채권(주로 공사채권)이어야하고 채권회수를 위하여 유치(점유 = 직접, 간접점유 무관)를 하고 있어야 합니다. 조사방법은 먼저 신고내용을 입수하여 공사의 내용과 세목 등을 파악하고 이를 기초로 이해관계이자 탐문, 현장조사 등을 통하여 성립여부에 대한 판단을 합니다. 기본적인 내용은 PC버전은 등기부 요약란 아래의 유치권/법정지상권 버튼을 눌러 참고하시고 모바일버전의 경우 자료실의 관련자료를 참고하시기 바랍니다. 본 건에서 구체적으로 검토하여야 할 사항은 다음과 같습니다. == 유치권신고서 접수 사실과 공사금액 공지, 간략한 현황조사서 상 내용 외에 법원정보 상 특별한 자료가 없으므로 채권자를 통하여 신고서 내용과 관련정보 파악, 현장조사, 낙찰 후 대비책 마련 등의 순으로 진행하여야 할 것입니다.
등기부 현황
건물
| 순위 | 접수일자 | 권리종류 | 권리자 | 채권금액 | 소멸여부 | 비고 |
|---|---|---|---|---|---|---|
| 1(갑1) | 2024-08-20 | 소유권보존 | 더OOOOOOO | 0 | 가압류등기의 촉탁으로 인하여 | |
| 2(갑2) | 2024-08-20 | 가압류 | 오OOO | 300,000,000 | 소멸 | 말소기준등기2024카단101168 |
| 3(갑3) | 2024-09-04 | 소유권이전(매매) | 홍OO | 0 | 거래가액:450,000,000 | |
| 5(갑5) | 2025-09-16 | 강제경매 | 오OOO | 325,456,438 | 소멸 | 2025타경4132, 오천농업협동조합 가압류의 본 압류로의 이행 |
| 6(갑6) | 2025-10-23 | 가압류 | 김OO | 263,000,000 | 소멸 | 2025카단101493 |
관련 문서 (PDF)
클릭하면 원본 파일이 열립니다