목록으로
최종 업데이트: 2026-04-23 07:40
2025타경20511
부산지방법원 본원 6계(051-590-1817)
부동산
부동산강제경매
매각
진행중
| 소재지 |
-
(부산광역시 부산진구 개금동 554-15)
|
|---|---|
| 물건종류 | 근린주택 |
| 면적 |
토지: 0.00㎡ (0평)
건물: 289.85㎡ (87.68평)
|
| 현재 위치 | 부산광역시 부산진구 개금동 554-15 |
| 소유자 / 채무자 | 유성진 / 유성진 |
| 채권자 | 김혜인 |
| 배당종기일 | 2025-04-02 |
감정가
736,438,000
최저가
515,507,000
보증금
51,550,700
진행 상태 / 매각 결과
매각
completed = false
매각허가결정
| 상태 코드 | 2 | 상태 텍스트 | 매각허가결정 |
|---|---|---|---|
| 매각가 | 557,000,000원 | 매각가율 | 0% |
| 입찰 수 | 1 | 매수인 | 부산시 금정구 이순자 |
| 차순위 입찰가 | 0원 | 매각허가 결정 | 매각허가결정 |
| 매각허가 결정일 | 2026-03-18 | 대금 지급기한 | - |
| 대금 지급상태 | - | 배당기일 | - |
| 배당 종결일 | - | 다음 확인 예정 | 2026-04-24 09:00 |
입찰 진행 내역
| 회차/구분 | 입찰기일 | 최저매각가격 | 결과 |
|---|---|---|---|
| 1차 (진행) | 2026-02-04 | 736,438,000 | 유찰 |
| 2차 (진행) | 2026-03-11 | 515,507,000 |
진행 메모
매각 : 557,000,000 원 (75.63%)
(입찰 1 명,매수인:부산시 금정구 이순자)
매각결정기일 : 2026.03.18 - 매각허가결정
대금지급기한 : 2026.04.24
임차인 현황
| 임차인명 | 점유여부 | 전입/확정/배당 | 보증금 / 차임 | 예상배당액 | 대항력 |
|---|---|---|---|---|---|
| 김별하 | 주거용 1층 현칭 102호 |
전입: 2023-04-21
확정: 2023-04-21 배당: 2025-03-11 |
4,320,000
월 290,000
|
0 | 없음 |
| 김혜인 | 주거용 3층 302호 |
전입: 2020-08-24
확정: 2020-08-24 배당: 2025-03-16 |
20,000,000
월 330,000
|
0 | 없음 |
| 노은영 | 주거용 4층 402호 |
전입: 2019-04-09
확정: 2019-04-18 배당: 2025-02-10 |
63,000,000
월 0
|
0 | 없음 |
| 박성실 | 주거용 3층 현칭 303호 |
전입: 2019-03-29
확정: 2019-03-29 배당: 2025-02-14 |
40,000,000
월 180,000
|
0 | 없음 |
| 방유진 | 주거용 3층 현칭 301호 |
전입: 2022-03-14
확정: 2022-02-11 배당: 2025-04-02 |
63,000,000
월 0
|
0 | 없음 |
| 서소영 | 주거용 2층 202호 |
전입: 2019-06-04
확정: 2019-06-04 배당: 2025-02-06 |
60,000,000
월 0
|
0 | 없음 |
| 신용대 | 주거용 미상 |
전입: 2023-05-17
확정: - 배당: - |
0
월 0
|
0 | 없음 |
| 엄채민 | 주거용 201호 |
전입: 2024-02-08
확정: 2024-02-08 배당: 2025-02-07 |
10,000,000
월 300,000
|
0 | 없음 |
| 오예림 | 주거용 3층 현칭 304호 |
전입: 2024-02-15
확정: 2024-02-15 배당: 2025-02-24 |
10,000,000
월 300,000
|
0 | 없음 |
| 정지은 | 주거용 5층 501호 |
전입: 2019-06-04
확정: 2019-06-04 배당: 2025-02-06 |
60,000,000
월 0
|
0 | 없음 |
| 조윤서 | 주거용 4층 401호 |
전입: 2022-03-03
확정: 2022-02-18 배당: 2024-09-13 |
65,000,000
월 0
|
0 | 없음 |
| 최다은 | 주거용 2층 204호 |
전입: 2021-08-17
확정: 2021-07-30 배당: 2025-03-17 |
65,000,000
월 0
|
0 | 없음 |
| 하은영 | 주거용 2층 203호 |
전입: 2020-07-28
확정: 2020-07-28 배당: 2025-02-07 |
20,000,000
월 330,000
|
0 | 없음 |
매각물건 현황
| 구분 | 순번 | 소재지 | 용도/구조/면적 | 감정가 | 비고 |
|---|---|---|---|---|---|
| 토지 | 토지 | 개금동 554-15 | 상대보호구역,제2종일반주거지역 / 대 145㎡ (43.86평) | 2,920,000 | 423,400,000원 |
| 건물 | 1 | 복지로 37-9 [개금동 554-15 스마일캐슬]철근콘크리트구조 (철근)콘크리트지붕 | 1층 / 제1종근린생활시설(소매점)(2개호(101,102호)) | 66 | 1,080,000원 |
| 2 | 2층 | 단독주택(다중주택)(4개호(201,202,203,204호) | 66.62㎡(20.15평) / 1,080,000원 | 71,949,600 | * 사용승인:2019.03.07 |
| 3 | 3층 | 단독주택(다중주택)(4개호(301,302,303,304호)) | 66.62㎡(20.15평) / 1,080,000원 | 71,949,600 | * 사용승인:2019.03.07 |
| 4 | 4층 | 단독주택(다중주택)(2개호(401,402호)) | 42.04㎡(12.72평) / 1,080,000원 | 45,403,200 | * 사용승인:2019.03.07 |
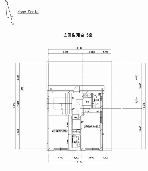
| 5 | 5층 | 업무시설(주거용 오피스텔)(2개호(501,502호)) | 48.06㎡(14.54평) / 1,080,000원 | 51,904,800 | * 사용승인:2019.03.07* 등기부상 단독주택 |
현황 및 위치
* 본건은 부산광역시 부산진구 개금동 소재 "부산도시철도 2호선 개금역" 남측 인근에 위치하며, 주위는 단독주택, 중소규모 공동주택, 근린생활시설 등으로 형성되어있으며 제반 주위환경은 보통임. * 본건까지 차량접근이 자유로우며, 주위에 시내버스정류장 및 부산도시철도 2호선 개금역이 소재하는 등 제반 대중교통상황은 무난한 편임. * 본건은 북하향 완경사지대 내 자체지면은 대체로 등고평탄한 세장형의 토지로서 주상용 건부지로 이용중임. * 본건 남측으로 노폭 약 6미터 내외의 도로와 접함.
참고사항
* 일괄매각 * 1층: 근린생활시설, 2층~4층: 다중주택, 5층: 주거용 오피스텔 로 이용중임. ☞현황서상 내용: 본건 스마일캐슬에는 14개 호실(1층: 101,102호 2층: 201호~204호 3층: 301호~304호 4층 401,402호 5층: 501,502호)이 있음.
등기부 현황
건물
| 순위 | 접수일자 | 권리종류 | 권리자 | 채권금액 | 소멸여부 | 비고 |
|---|---|---|---|---|---|---|
| 1(갑1) | 2019-03-21 | 소유권보존 | 최OOOOOO | 0 | 각 1/2 | |
| 2(을1) | 2019-03-21 | 근저당 | 송OOO | 456,000,000 | 소멸 | 말소기준등기 |
| 3(갑2) | 2019-04-30 | 공유자전원지분전부이전 | 유OO | 0 | 매매 | |
| 4(을2) | 2024-07-22 | 주택임차권(1층 현칭 102호) | 김OO | 4,320,000 | 소멸 | 전입:2023.04.21확정:2023.04.21보:금 4,320,000원(임차보증금 10,000,000원 중 반환되지 아니한 금액), 차:금 290,000원 |
| 5(을3) | 2024-09-13 | 주택임차권(4층 401호) | 조OO | 65,000,000 | 소멸 | 전입:2022.03.03확정:2022.02.18 |
| 6(을4) | 2024-09-30 | 주택임차권(3층 302호) | 김OO | 20,000,000 | 소멸 | 전입:2020.08.24확정:2020.08.24차:금330,000원 |
| 7(을5) | 2024-10-17 | 주택임차권(3층 현칭 301호) | 방OO | 63,000,000 | 소멸 | 전입:2022.03.14확정:2022.02.22 |
| 8(을6) | 2024-12-30 | 주택임차권(2층 204호) | 최OO | 65,000,000 | 소멸 | 전입:2021.08.17확정:2021.07.30 |
| 9(갑3) | 2025-01-16 | 강제경매 | 김OO | 20,461,584 | 소멸 | 2025타경20511 |
| 10(을7) | 2025-02-14 | 주택임차권(4층 402호) | 노OO | 63,000,000 | 소멸 | 전입:2019.04.09확정:2019.04.18 |
| 11(을8) | 2025-02-17 | 주택임차권(5층 501호) | 정OO | 60,000,000 | 소멸 | 전입:2019.06.04확정:2019.06.04 |
| 12(갑4) | 2025-02-18 | 가압류 | 이OO | 90,000,000 | 소멸 | 2025카단100487 |
| 13(을9) | 2025-02-28 | 주택임차권(3층 현칭 304호) | 오OO | 10,000,000 | 소멸 | 전입:2024.02.15확정:2024.02.15차:금 300,000원 |
| 14(을10) | 2025-03-06 | 주택임차권(2층 203호) | 하OO | 20,000,000 | 소멸 | 전입:2020.07.28확정:2020.07.28차:금330,000원 |
| 15(을11) | 2025-03-07 | 주택임차권(2층 202호) | 서OO | 60,000,000 | 소멸 | 전입:2019.06.04확정:2019.06.04 |
| 16(갑5) | 2025-03-14 | 가압류 | 박OO | 110,000,000 | 소멸 | 2025카단100645 |
| 17(갑6) | 2025-03-24 | 압류 | 국OOOOOOOOO | 0 | 소멸 | |
| 18(을12) | 2025-06-12 | 주택임차권(3층 현칭 303호) | 박OO | 40,000,000 | 소멸 | 전입:2019.03.29확정:2019.03.29차:금130,000원 |
관련 문서 (PDF)
클릭하면 원본 파일이 열립니다