목록으로
최종 업데이트: 2026-04-24 00:42
2025타경9598
서울남부지방법원 본원 15계(02-2192-0054)
부동산
부동산강제경매
매각
진행중
| 소재지 |
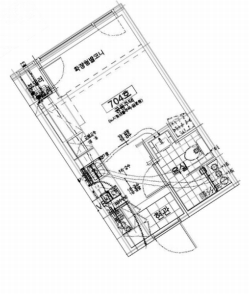
서울특별시 구로구 공원로 15-12, 비즈트위트블루 7층 704호
(서울특별시 구로구 구로동 107-4)
|
|---|---|
| 물건종류 | 아파트[공급7평형] |
| 면적 |
토지: 2.66㎡ (0.8평)
건물: 16.04㎡ (4.85평)
|
| 현재 위치 | 서울특별시 구로구 공원로 15-12, 비즈트위트블루 7층 704호 |
| 소유자 / 채무자 | 박해주 / 박해주 |
| 채권자 | 이현영 |
| 배당종기일 | 2025-07-16 |
감정가
113,000,000
최저가
90,400,000
보증금
9,040,000
진행 상태 / 매각 결과
매각
completed = false
매각허가결정
| 상태 코드 | 2 | 상태 텍스트 | 매각허가결정 |
|---|---|---|---|
| 매각가 | 112,090,000원 | 매각가율 | 0% |
| 입찰 수 | 1 | 매수인 | 한국토지주택공사 |
| 차순위 입찰가 | 0원 | 매각허가 결정 | 매각허가결정 |
| 매각허가 결정일 | 2026-03-25 | 대금 지급기한 | - |
| 대금 지급상태 | - | 배당기일 | - |
| 배당 종결일 | - | 다음 확인 예정 | 2026-04-25 09:00 |
입찰 진행 내역
| 회차/구분 | 입찰기일 | 최저매각가격 | 결과 |
|---|---|---|---|
| 1차 (진행) | 2026-01-28 | 113,000,000 | 유찰 |
| 2차 (진행) | 2026-03-18 | 90,400,000 |
진행 메모
매각 : 112,090,000 원 (99.19%)
(입찰 1 명,매수인:한국토지주택공사)
매각결정기일 : 2026.03.25 - 매각허가결정
대금지급기한 : 2026.05.06
대금납부 2026.04.22
임차인 현황
| 임차인명 | 점유여부 | 전입/확정/배당 | 보증금 / 차임 | 예상배당액 | 대항력 |
|---|---|---|---|---|---|
| 이현영 | 주거용 전부 |
전입: 2020-03-30
확정: 2020-02-17 배당: 2025-07-15 |
130,000,000
월 0
|
0 | 있음 |
매각물건 현황
| 구분 | 순번 | 소재지 | 용도/구조/면적 | 감정가 | 비고 |
|---|---|---|---|---|---|
| 건물 | 19층중 7층 | 12.11.30 | 16.04㎡(4.85평)[공급7평] / 도시형생활주택-원룸형 | 33,900,000 |
현황 및 위치
* 본건은 서울특별시 구로구 구로동 소재 ""구로고등학교"" 동측 인근에 위치하며, 주위는 오피스텔, 다세대주택, 아파트 및 근린생활시설 등이 혼재하는 지대로서, 전반적인 주위환경은 보통임. * 본건까지 차량 진·출입이 가능하며, 인근에 노선버스정류장 등이 소재하는 바, 전반적인 대중교통 이용편의도는 보통임. * 세장형 토지로서, ""업무시설(오피스텔-121실) 공동주택(도시형생활주택 원룸형-105세대)"" 부지로 이용중임. * 남서측 및 남동측으로 포장도로와 각각 접하고 있음.
전문가 코멘트
☞ 본건은 소액임차인의 최우선변제금 지급기준이 되는 담보물권이 없어 배당시점을 기준으로 소액임차인을 판단하였으니 참고하시기 바랍니다.
등기부 현황
건물
| 순위 | 접수일자 | 권리종류 | 권리자 | 채권금액 | 소멸여부 | 비고 |
|---|---|---|---|---|---|---|
| 1(갑4) | 2021-03-16 | 소유권이전(매매) | 박OO | 0 | 거래가액:125,000,000 | |
| 2(갑5) | 2023-07-31 | 압류 | 국OOOOOOOO | 0 | 소멸 | 말소기준등기 |
| 3(갑6) | 2023-11-22 | 가압류 | 주OOOOOOO | 616,241,204 | 소멸 | 2023카단107043 |
| 4(갑7) | 2024-01-15 | 압류 | 구OOOOOOOOO | 0 | 소멸 | |
| 5(을3) | 2024-04-03 | 주택임차권(전부) | 이OO | 130,000,000 | 전입:2020.03.30확정:2020.02.17보:금130,000,000원(2022년02월17일자로 금5,000,000원 증액), 1차확:2020년02월17일(금125,000,000원), 2차확:2022년02월21일(증액한 금5,000,000원) | |
| 6(갑8) | 2025-02-25 | 압류 | 국OOOOOOOO | 0 | 소멸 | |
| 7(갑9) | 2025-04-16 | 강제경매 | 이OO | 130,000,000 | 소멸 | 2025타경9598 |
| 8(갑10) | 2025-12-26 | 압류 | 국OOOOOOOO | 0 | 소멸 |
관련 문서 (PDF)
클릭하면 원본 파일이 열립니다