목록으로
최종 업데이트: 2026-04-22 13:21
2025타경21685
부산지방법원 본원 2계(051-590-1813)
부동산
부동산강제경매
유찰
진행중
| 소재지 |
-
(부산광역시 부산진구 범천동 1530-38)
|
|---|---|
| 물건종류 | 주택 |
| 면적 |
토지: 0.00㎡ (0평)
건물: 123.06㎡ (37.23평)
|
| 현재 위치 | 부산광역시 부산진구 범천동 1530-38 |
| 소유자 / 채무자 | 이학이 / 이학이 |
| 채권자 | 박경환 |
| 배당종기일 | 2025-06-16 |
감정가
110,989,200
최저가
38,069,000
보증금
3,806,900
입찰 진행 내역
| 회차/구분 | 입찰기일 | 최저매각가격 | 결과 |
|---|---|---|---|
| 1차 (진행) | 2026-01-23 | 110,989,200 | 유찰 |
| 2차 (진행) | 2026-02-27 | 77,692,000 | 유찰 |
| 3차 (진행) | 2026-04-03 | 54,384,000 | 유찰 |
| 4차 (진행) | 2026-05-08 | 38,069,000 |
임차인 현황
| 임차인명 | 점유여부 | 전입/확정/배당 | 보증금 / 차임 | 예상배당액 | 대항력 |
|---|---|---|---|---|---|
| 김소영 | 주거용 미상 |
전입: 2022-05-19
확정: - 배당: - |
0
월 0
|
0 | - |
| 김재용 | 주거용 1층(방3칸) |
전입: 2022-09-26
확정: 2025-04-03 배당: 2025-04-03 |
25,000,000
월 100,000
|
0 | 있음 |
매각물건 현황
| 구분 | 순번 | 소재지 | 용도/구조/면적 | 감정가 | 비고 |
|---|---|---|---|---|---|
| 토지 | 토지 | 범천동 1530-38 | 주거환경개선지구,제3종일반주거지역 / 대 77㎡ (23.29평) | 930,000 | 71,610,000원 |
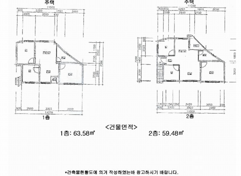
| 건물 | 1 | 안창로12번길 9-2 [범천동 1530-38]벽돌조 슬래브지붕 | 1층 / 단독주택 | 63 | 320,000원 |
| 2 | 2층 | 단독주택 | 59.48㎡(17.99평) / 320,000원 | 19,033,600 | * 사용승인:1996.03.21 |
현황 및 위치
* 본건은 부산광역시 부산진구 범천동 소재 안창마을 동측 인근의 부산진구 범천동과 동구 범일동의 경계지역주변 다소 고지대의 기존주택지대에 소재하며 주위는 단독주택, 비교적 중소규모의 공동주택, 텃밭, 임야지대등으로 형성되어 있으며 주거환경은 다소 열악시됨. * 본건 토지에의 차량출입이 불가능하고, 인근에 시내버스정류장이 소재하는등 대중교통사정은 보통시됨. * 전반적으로 남동하향 경사지대에 위치한 사다리형에 유사한 부정형의 토지를 주거용 건부지로 이용중임. * 본건 토지의 동측 및 남서측으로 폭 약1~2미터 내외의 현황 골목길이 소재하고 있음
참고사항
* 일괄매각 * 본건토지는 공부상 맹지이나 현황은 동측 및 남서측으로 폭 약1~2미터 내외의 현황 골목길이 소재하고 있음
전문가 코멘트
☞ 본건은 소액임차인의 최우선변제금 지급기준이 되는 담보물권이 없어 배당시점을 기준으로 소액임차인을 판단하였으니 참고하시기 바랍니다.
등기부 현황
건물
| 순위 | 접수일자 | 권리종류 | 권리자 | 채권금액 | 소멸여부 | 비고 |
|---|---|---|---|---|---|---|
| 1(갑3) | 2014-01-13 | 소유권이전(매매) | 이OO | 0 | ||
| 2(갑4) | 2025-03-25 | 강제경매 | 박OO | 26,739,726 | 소멸 | 말소기준등기2025타경21685 |
관련 문서 (PDF)
클릭하면 원본 파일이 열립니다