목록으로
최종 업데이트: 2026-04-26 15:51
2024타경62525
부산지방법원 본원 5계(051-590-1829)
부동산
부동산임의경매
매각
진행중
| 소재지 |
-
(부산광역시 부산진구 양정동 90-2)
|
|---|---|
| 물건종류 | 근린주택 |
| 면적 |
토지: 0.00㎡ (0평)
건물: 198.33㎡ (59.99평)
|
| 현재 위치 | 부산광역시 부산진구 양정동 90-2 |
| 소유자 / 채무자 | 문병식 / 문병식 |
| 채권자 | 냉동냉장수협 |
| 배당종기일 | 2024-12-05 |
감정가
936,861,330
최저가
459,062,000
보증금
45,906,200
진행 상태 / 매각 결과
매각
completed = false
매각허가결정
| 상태 코드 | 2 | 상태 텍스트 | 매각허가결정 |
|---|---|---|---|
| 매각가 | 570,777,999원 | 매각가율 | 0% |
| 입찰 수 | 3 | 매수인 | 부산시 해운대구 주.프헤덕 |
| 차순위 입찰가 | 552,000,000원 | 매각허가 결정 | 매각허가결정 |
| 매각허가 결정일 | 2026-04-14 | 대금 지급기한 | - |
| 대금 지급상태 | - | 배당기일 | - |
| 배당 종결일 | - | 다음 확인 예정 | 2026-04-27 09:00 |
입찰 진행 내역
| 회차/구분 | 입찰기일 | 최저매각가격 | 결과 |
|---|---|---|---|
| 1차 (진행) | 2025-08-26 | 932,963,330 | 유찰 |
| 2차 (진행) | 2025-10-14 | 653,074,000 | 유찰 |
| 3차 (진행) | 2025-11-18 | 457,152,000 | |
| 4차 (진행) | 2026-01-27 | 936,861,330 | 유찰 |
| 5차 (진행) | 2026-03-03 | 655,803,000 | 유찰 |
| 6차 (진행) | 2026-04-07 | 459,062,000 |
진행 메모
매각 676,222,000원(72.18%) / 4명 / 불허가 (차순위금액:530,888,999원)
매각 : 570,777,999 원 (60.92%)
(입찰 3 명,매수인:부산시 해운대구 주.프헤덕 / 차순위금액 552,000,000원 / 차순위신고 )
매각결정기일 : 2026.04.14 - 매각허가결정
대금지급기한 : 2026.05.20
임차인 현황
| 임차인명 | 점유여부 | 전입/확정/배당 | 보증금 / 차임 | 예상배당액 | 대항력 |
|---|---|---|---|---|---|
| 권영순 | 점포 1층 일부(정면우측출입구) 40.64㎡ |
전입: -
확정: 2024-11-14 배당: 2024-11-18 |
10,000,000
월 600,000
|
0 | 없음 |
| 에틱(주) | 점포 |
전입: -
확정: - 배당: - |
0
월 0
|
0 | - |
| 이도연 | 점포 1층 일부(정면우측출입구) 40.64㎡ |
전입: -
확정: 2024-11-14 배당: 2024-11-18 |
10,000,000
월 600,000
|
0 | 없음 |
| 이치훈 | 주거용 2층 |
전입: -
확정: - 배당: - |
0
월 0
|
0 | - |
| 임태은 | 주거용 2층 |
전입: -
확정: - 배당: - |
0
월 0
|
0 | - |
| 정규업 | 주거용 2층 주택전부 63.21㎡ |
전입: 2017-02-28
확정: 2017-01-16 배당: 2024-11-19 |
100,000,000
월 0
|
0 | 있음 |
| 함미란 | 점포 1층 일부 81.08㎡(오늘은 칼국수) |
전입: -
확정: 2024-10-07 배당: 2024-12-04 |
20,000,000
월 1,000,000
|
0 | 없음 |
매각물건 현황
| 구분 | 순번 | 소재지 | 용도/구조/면적 | 감정가 | 비고 |
|---|---|---|---|---|---|
| 토지 | 토지 | 양정동 90-2 | 제3종일반주거지역 / 대 125㎡ (37.81평) | 7,020,000 | 877,500,000원 |
| 건물 | 1 | 연수로54번길 16 [양정동 90-2 내제조표진22131호]세멘보록크조 스라브즙 | 1층 / 근린생활시설 | 121 | 300,000원 |
| 2 | 2층 | 주택 | 63.21㎡(19.12평) / 333,000원 | 21,048,930 | * 사용승인:1970.01.10* 조표진22131내조표진제22131호 * 도시가스에 의한 난방설비 |
| 제시외건물 | 1 | 연수로54번길 16 [양정동 90-2 내제조표진22131호]보록조 세멘 등 1.보록조 세멘, 2.보록조 스라브, 3.보록조 스라브 | / 대문, 계단 | 8 | |
| 2 | 2층 | 보일러실 | 2.4㎡(0.73평) / 166,000원 | 398,400 | 매각포함 |
| 3 | 창고 | 3㎡(0.91평) / 116,000원 | 348,000 | 매각포함 |
현황 및 위치
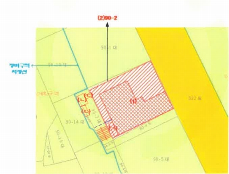
* 본건은 부산광역시 부산진구 양정동 소재 "양정초등학교" 동측 인근에 위치하고, 주위는 아파트단지, 중소규모 공동주택 및 단독주택, 각종 근린생활시설 등으로 형성되어 있음. * 본건까지 차량접근 가능하고, 인근에 버스정류장 및 부산지하철 1호선 양정역이 소재함. * 본건은 인접지와 평탄하게 조성한 세장형 토지로서, 주상용 건부지로 이용중임. * 본건 북동측으로 소로와 접하고, 남동측으로 노폭 약 1미터 내외의 막다른 도로와 접함.
참고사항
▶본건매각 2025.11.18 / 매각가 676,222,000원 / 부산시 진구 OOO / 4명 입찰 / 최고가매각불허가결정* 일괄매각. * 제시외 건물 포함. * 근린생활시설(1층) 및 주택(2층)으로 이용중임. ▶12계에서 5계로 이관(2025.10.29기준) * 본건 건물의 제시외 ㄴ.창고 및 ㄷ.대문 등이 매각대상이 아닌 인근 90-3번지 타인소유 토지 위에 소재하고 있는 것으로 조사되었으니 경매진행시 측량등 재확인하기 바람(감정평가서 참조). * 토지) 동측 도로변과 등고평탄하며, 서측 인접토지(양정동90-3번지)는 동측 도로변보다는 다소 높은 토지(2층 높이)임. * 본건 서측 인근에 정비구역지정선(청색부분)으로, 정비사업의 일환으로 옹벽 및 휀스가 설치되어 있어, 상기 대문 및 창고 등은 인접지상(양정동 902-3번지)에 소재하는 것으로 조사됨.
등기부 현황
건물
| 순위 | 접수일자 | 권리종류 | 권리자 | 채권금액 | 소멸여부 | 비고 |
|---|---|---|---|---|---|---|
| 1(갑2) | 2015-11-12 | 소유권이전(매매) | 문OO | 0 | ||
| 2(을4) | 2019-09-27 | 근저당 | 냉OOOOOOOOOOOO | 408,000,000 | 소멸 | 말소기준등기 |
| 3(갑7) | 2024-01-30 | 소유권이전청구권가등기 | 최OO | 0 | 소멸 | 매매예약 |
| 4(갑8) | 2024-09-12 | 임의경매 | 냉OOOOOOOOOOOO | 349,740,721 | 소멸 | 2024타경62525 |
관련 문서 (PDF)
클릭하면 원본 파일이 열립니다