목록으로
최종 업데이트: 2026-04-22 13:21
2025타경101871
부산지방법원 서부지원 2계(051-812-1262)
부동산
부동산강제경매
유찰
진행중
| 소재지 |
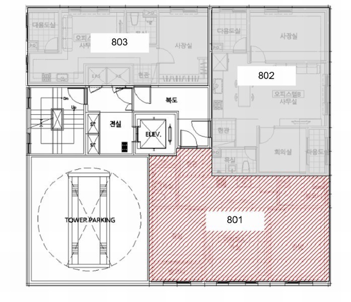
부산광역시 사상구 낙동대로1210번길 94, 일루스타 8층 801호
(부산광역시 사상구 괘법동 523-10)
|
|---|---|
| 물건종류 | 아파트[공급19평형] |
| 면적 |
토지: 7.40㎡ (2.24평)
건물: 52.55㎡ (15.9평)
|
| 현재 위치 | 부산광역시 사상구 낙동대로1210번길 94, 일루스타 8층 801호 |
| 소유자 / 채무자 | 이영환 / 이영환 |
| 채권자 | 주택도시보증공사 |
| 배당종기일 | 2025-12-05 |
감정가
234,000,000
최저가
114,660,000
보증금
11,466,000
입찰 진행 내역
| 회차/구분 | 입찰기일 | 최저매각가격 | 결과 |
|---|---|---|---|
| 1차 (진행) | 2026-02-24 | 234,000,000 | 유찰 |
| 2차 (진행) | 2026-03-31 | 163,800,000 | 유찰 |
| 3차 (진행) | 2026-05-07 | 114,660,000 | |
| 4차 (진행) | 2026-06-30 | 80,262,000 |
임차인 현황
| 임차인명 | 점유여부 | 전입/확정/배당 | 보증금 / 차임 | 예상배당액 | 대항력 |
|---|---|---|---|---|---|
| 정옥진 | 주거용 부동산전부 |
전입: 2022-08-04
확정: 2022-06-21 배당: 2024-08-07 |
230,000,000
월 0
|
0 | 있음 |
| 주택도시보증공사 | 주거용 전부 |
전입: 2022-08-04
확정: 2022-06-21 배당: 2025-08-28 |
230,000,000
월 0
|
0 | 있음 |
매각물건 현황
| 구분 | 순번 | 소재지 | 용도/구조/면적 | 감정가 | 비고 |
|---|---|---|---|---|---|
| 건물 | 17층중 8층 | 19.05.15 | 52.55㎡(15.9평)[공급19평] / 주거용 | 140,400,000 | * 도시가스에 의한 개별난방설비 |
현황 및 위치
* 본건은 부산광역시 사상구 괘법동 소재"창진초등학교" 북동측 인근에 위치하는 일루스 타 제8층 제801호로서, 주위는 공동주택, 오피스텔 및 각종 근린생활시설 등으로 형성되어 있으며, 주위 환경 및 제반입지조건은 보통시됨. * 본건까지 차량접근 가능하며, 인근에 시내버스정류장이 소재하는바, 제반 교통사정은 보통시됨. * 인접지와 대체로 등고평탄하게 조성된 정방형 토지로서, 업무시설(오피스텔) 및 공동주택(아파트) 건부지로 이용중임. * 본건 북측으로 노폭 약 8미터 도로에 접하며, 기계식 주차시설 되어있음.
등기부 현황
건물
| 순위 | 접수일자 | 권리종류 | 권리자 | 채권금액 | 소멸여부 | 비고 |
|---|---|---|---|---|---|---|
| 1(갑4) | 2020-08-05 | 소유권이전(매매) | 이OO | 0 | 거래가액:260,000,000 | |
| 2(갑5) | 2023-02-02 | 가압류 | 부OOOOOOOOO | 1,500,000,000 | 소멸 | 말소기준등기2023카단72 |
| 3(갑6) | 2023-03-28 | 가압류 | 진OOOOO | 600,000,000 | 소멸 | 2023카단178 |
| 4(갑7) | 2023-07-20 | 가압류 | 국 | 14,929,900,001 | 소멸 | 2023초기1808 , 추징보전액 |
| 5(갑8) | 2024-07-11 | 압류 | 국OOOOOOOO | 0 | 소멸 | |
| 6(을1) | 2024-08-07 | 주택임차권(부동산전부) | 정OO | 230,000,000 | 전입:2022.08.04확정:2022.06.21 | |
| 7(갑9) | 2024-12-12 | 압류 | 사OOOOOOOOO | 0 | 소멸 | |
| 8(갑10) | 2025-09-15 | 강제경매 | 주OOOOOOOOOOOOOOO | 240,591,304 | 소멸 | 2025타경101871 |
| 9(갑11) | 2025-11-24 | 압류 | 금OOOOOOOOO | 0 | 소멸 |
관련 문서 (PDF)
클릭하면 원본 파일이 열립니다