목록으로
최종 업데이트: 2026-04-24 04:30
2025타경8568
서울남부지방법원 본원 16계(02-2192-0055)
부동산
부동산강제경매
매각
진행중
| 소재지 |
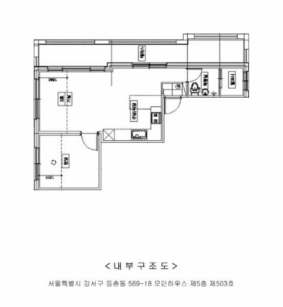
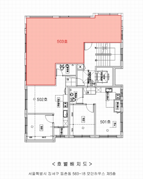
서울특별시 강서구 등촌로13가길 18, 모던하우스 5층 503호
(서울특별시 강서구 등촌동 569-18)
|
|---|---|
| 물건종류 | 다세대(빌라)[공급11평형] |
| 면적 |
토지: 19.24㎡ (5.82평)
건물: 29.93㎡ (9.05평)
|
| 현재 위치 | 서울특별시 강서구 등촌로13가길 18, 모던하우스 5층 503호 |
| 소유자 / 채무자 | 허은미 / 허은미 |
| 채권자 | 주택도시보증공사 |
| 배당종기일 | 2025-05-29 |
감정가
275,000,000
최저가
140,800,000
보증금
14,080,000
진행 상태 / 매각 결과
매각
completed = false
매각허가결정
| 상태 코드 | 2 | 상태 텍스트 | 매각허가결정 |
|---|---|---|---|
| 매각가 | 175,209,999원 | 매각가율 | 0% |
| 입찰 수 | 2 | 매수인 | 송파구 최가희 |
| 차순위 입찰가 | 165,000,000원 | 매각허가 결정 | 매각허가결정 |
| 매각허가 결정일 | 2026-03-26 | 대금 지급기한 | - |
| 대금 지급상태 | - | 배당기일 | - |
| 배당 종결일 | - | 다음 확인 예정 | 2026-04-25 09:00 |
입찰 진행 내역
| 회차/구분 | 입찰기일 | 최저매각가격 | 결과 |
|---|---|---|---|
| 1차 (진행) | 2025-10-31 | 275,000,000 | 유찰 |
| 2차 (진행) | 2025-12-04 | 220,000,000 | 유찰 |
| 3차 (진행) | 2026-01-29 | 176,000,000 | 유찰 |
| 4차 (진행) | 2026-03-19 | 140,800,000 |
진행 메모
매각 : 175,209,999 원 (63.71%)
(입찰 2 명,매수인:송파구 최가희 / 차순위금액 165,000,000원)
매각결정기일 : 2026.03.26 - 매각허가결정
대금지급기한 : 2026.05.06
대금납부 2026.04.06 / 배당기일 2026.05.12
임차인 현황
| 임차인명 | 점유여부 | 전입/확정/배당 | 보증금 / 차임 | 예상배당액 | 대항력 |
|---|---|---|---|---|---|
| 김수창 | 주거용 전부 |
전입: 2020-04-24
확정: 2020-03-16 배당: 2023-01-26 |
250,000,000
월 0
|
0 | 있음 |
| 주택도시보증공사 | 주거용 전부 |
전입: 2020-04-24
확정: 2020-03-16 배당: 2025-02-13 |
250,000,000
월 0
|
0 | 있음 |
매각물건 현황
| 구분 | 순번 | 소재지 | 용도/구조/면적 | 감정가 | 비고 |
|---|---|---|---|---|---|
| 건물 | 6층중 5층 | 20.02.07 | 29.93㎡(9.05평)[공급11평] / 도시형생활주택(단지형다세대) | 82,500,000 | * 도시가스 개별난방 |
현황 및 위치
* 본건은 서울특별시 강서구 등촌동 소재 " 대일고등학교" 남서측 인근에 위치하며, 주위는 다세대주택, 단독주택, 주상용건물 및 근린생활시설 등이 소재하는 지역임. * 본건까지 차량의 진출입이 가능하며, 인근에 노선버스정류장과 남측 약 1.1 KM 거리에 5 호선 목동역이 소재하고 있음. * 가장형 완경사지로서, 도시형생활주택 ( 단지형다세대 ) 건부지로 이용중임. * 본건 서측으로 노폭 약 4 미터 내외의 포장도로와 접하고 있음.
등기부 현황
건물
| 순위 | 접수일자 | 권리종류 | 권리자 | 채권금액 | 소멸여부 | 비고 |
|---|---|---|---|---|---|---|
| 1(갑2) | 2020-05-04 | 공유자전원지분전부이전 | 허OO | 0 | 거래가액:246,000,000, 매매 | |
| 2(을3) | 2023-01-26 | 주택임차권(전부) | 김OO | 250,000,000 | 소멸 | 전입:2020.04.24확정:2020.03.16보:금250,000,000원(2022년6월9일 금700만원 증액), 1차확:2020년3월16일(금243,000,000원), 2차확:2022년6월10일(증액한 금700만원) |
| 3(갑3) | 2023-06-02 | 가압류 | 주OOOOOOOOOOOOOOOOO | 850,000,000 | 소멸 | 말소기준등기2023카단103287 |
| 4(갑4) | 2023-06-13 | 압류 | 국OOOOOOOOO | 0 | 소멸 | |
| 5(갑5) | 2025-02-26 | 강제경매 | 주OOOOOOO | 292,534,423 | 소멸 | 2025타경8568 |
관련 문서 (PDF)
클릭하면 원본 파일이 열립니다