목록으로
최종 업데이트: 2026-04-25 18:44
2023타경9971
울산지방법원 본원 9계(052-216-8269)
부동산
부동산강제경매
취하/변경
진행중
| 소재지 |
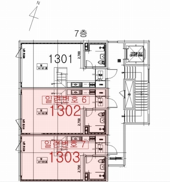
울산광역시 울주군 범서읍 구영로 70, 엣지타워 7층 1303호
(울산광역시 울주군 범서읍 구영리 716-3)
|
|---|---|
| 물건종류 | 오피스텔[계약22평형] |
| 면적 |
토지: 13.18㎡ (3.99평)
건물: 38.02㎡ (11.5평)
|
| 현재 위치 | 울산광역시 울주군 범서읍 구영로 70, 엣지타워 7층 1303호 |
| 소유자 / 채무자 | (주)엣지투자개발 / (주)엣지투자개발 |
| 채권자 | 박경남외 1명 |
| 배당종기일 | 2024-02-15 |
감정가
131,000,000
최저가
44,933,000
보증금
4,493,300
입찰 진행 내역
| 회차/구분 | 입찰기일 | 최저매각가격 | 결과 |
|---|---|---|---|
| 1차 (진행) | 2025-11-26 | 131,000,000 | 유찰 |
| 2차 (진행) | 2026-01-07 | 91,700,000 | 유찰 |
| 3차 (진행) | 2026-02-25 | 64,190,000 | 유찰 |
| 4차 (진행) | 2026-04-01 | 44,933,000 | 매각 |
진행 메모
매각 45,000,000원(34.35%) / 1명
매각결정기일 : 2026.04.08 - 매각불허가결정
임차인 현황
| 임차인명 | 점유여부 | 전입/확정/배당 | 보증금 / 차임 | 예상배당액 | 대항력 |
|---|---|---|---|---|---|
| 김현진 | 주거용 1303호 전부 |
전입: 2020-05-22
확정: 2020-05-22 배당: 2024-01-24 |
100,000,000
월 0
|
0 | 있음 |
매각물건 현황
| 구분 | 순번 | 소재지 | 용도/구조/면적 | 감정가 | 비고 |
|---|---|---|---|---|---|
| 건물 | 8층중 7층 | 18.08.20 | 38.024㎡(11.5평)[계약22평] / 오피스텔 | 78,600,000 |
현황 및 위치
* 울산광역시 울주군 범서읍 구영리 구영초등학교 동측 인근에 소재하며 주변은 구획정리지대로 아파트단지, 단독주택, 다가구주택, 근린생활시설, 판매시설, 학교 등으로 형성되어 있음. * 인근에 버스정류장이 소재하며 본건물에 차량출입 용이함. * 정방형에 가까운 다각형지로 오피스텔 근린생활시설 단독주택의 복합시설용지임. * 동측으로 구영로에 서측으로 폭8미터 정도의 도로에 접함.
참고사항
▶본건매각 2026.04.01 / 매각가 45,000,000원 / 울주군범서읍 OOO / 1명 입찰 / 최고가매각불허가결정* 건축물현황도 중 각호별 평면도는 실제 각호별 평면도를 사용하지 않고 감정서 4~7층 평면도 기준 상단(1호) 평면도를 사용.(감정서 참조) * 층별평면도에 7층 4-7-03으로 표시되어 있으나 건축물대장, 등기부, 호별평면도 및 현관호실 표시는 7층 1303으로 상이함. 현관호실 기준으로 감정평가함.
등기부 현황
건물
| 순위 | 접수일자 | 권리종류 | 권리자 | 채권금액 | 소멸여부 | 비고 |
|---|---|---|---|---|---|---|
| 1(갑1) | 2018-08-29 | 소유권보존 | (OOOOOOOO | 0 | ||
| 2(갑2) | 2022-11-17 | 가압류 | 경OOOOOOOOO | 2,423,433,495 | 소멸 | 말소기준등기2022카단1046 |
| 3(갑3) | 2023-11-09 | 강제경매 | 박OOOOOO | 128,620,273 | 소멸 | 2023타경9971 |
관련 문서 (PDF)
클릭하면 원본 파일이 열립니다