목록으로
최종 업데이트: 2026-04-24 05:14
2025타경9608
서울남부지방법원 본원 16계(02-2192-0055)
부동산
부동산강제경매
유찰
진행중
| 소재지 |
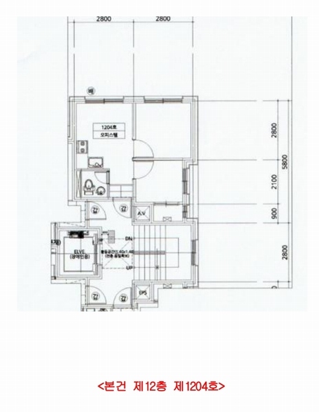
서울특별시 금천구 두산로5길 26, 미림에이클래스 102동 12층 1204호
(서울특별시 금천구 독산동 303-4)
|
|---|---|
| 물건종류 | 오피스텔 |
| 면적 |
토지: 8.77㎡ (2.65평)
건물: 24.87㎡ (7.52평)
|
| 현재 위치 | 서울특별시 금천구 두산로5길 26, 미림에이클래스 102동 12층 1204호 |
| 소유자 / 채무자 | 명원길 / 명원길 |
| 채권자 | 주택도시보증공사 |
| 배당종기일 | 2025-07-17 |
감정가
295,000,000
최저가
151,040,000
보증금
15,104,000
입찰 진행 내역
| 회차/구분 | 입찰기일 | 최저매각가격 | 결과 |
|---|---|---|---|
| 1차 (진행) | 2025-12-04 | 295,000,000 | 유찰 |
| 2차 (진행) | 2026-01-29 | 236,000,000 | 유찰 |
| 3차 (진행) | 2026-03-19 | 188,800,000 | 유찰 |
| 4차 (진행) | 2026-04-28 | 151,040,000 |
임차인 현황
| 임차인명 | 점유여부 | 전입/확정/배당 | 보증금 / 차임 | 예상배당액 | 대항력 |
|---|---|---|---|---|---|
| 이재열 | 주거용 전부 |
전입: 2021-12-31
확정: 2021-12-22 배당: 2024-02-19 |
269,000,000
월 0
|
0 | 있음 |
| 주택도시보증공사 | 주거용 전부 |
전입: 2021-12-31
확정: 2021-12-22 배당: 2025-04-15 |
269,000,000
월 0
|
0 | 있음 |
| 최문석 | 주거용 1204호 |
전입: 2024-08-16
확정: - 배당: - |
0
월 0
|
0 | - |
매각물건 현황
| 구분 | 순번 | 소재지 | 용도/구조/면적 | 감정가 | 비고 |
|---|---|---|---|---|---|
| 건물 | 12층중 12층 | 21.07.08 | 24.87㎡(7.52평) / 오피스텔 | 177,000,000 |
현황 및 위치
* 본건은 서울특별시 금천구 독산동 소재 "서울두산초등학교" 북측 인근에 위치한 "미림에이클래스" 제102동 제12층 제1204호로서, 인근은 업무시설(오피스텔), 아파트 및 근린생활시설 등이 혼재하는 지역으로 제반 주위환경은 보통임. * 본건까지 제반 차량의 진출입이 가능하며, 인근에 버스정류장이 소재하는 등 제반 교통상황은 보통임. * 인접지 대비 등고평탄한 세장형의 토지로서 업무시설(오피스텔) 건부지로 이용중임. * 본건 서측으로 노폭 약 10미터 내외의 포장도로에 접함.
등기부 현황
건물
| 순위 | 접수일자 | 권리종류 | 권리자 | 채권금액 | 소멸여부 | 비고 |
|---|---|---|---|---|---|---|
| 1(갑2) | 2021-12-30 | 공유자전원지분전부이전 | 명OO | 0 | 거래가액:269,000,000,매매 | |
| 2(을3) | 2024-02-19 | 주택임차권(전부) | 이OO | 269,000,000 | 소멸 | 전입:2021.12.31확정:2021.12.22 |
| 3(갑3) | 2025-04-16 | 강제경매 | 주OOOOOOOOOOOOOOOOO | 269,000,000 | 소멸 | 말소기준등기2025타경9608 |
관련 문서 (PDF)
클릭하면 원본 파일이 열립니다