목록으로
최종 업데이트: 2026-04-24 06:04
2025타경10624
서울남부지방법원 본원 16계(02-2192-0055)
부동산
부동산강제경매
유찰
진행중
| 소재지 |
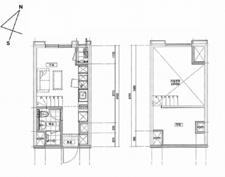
서울특별시 금천구 서부샛길 714, 지밸리하우스디어반 7층 비708호
(서울특별시 금천구 가산동 535-7)
|
|---|---|
| 물건종류 | 오피스텔[계약14평형] |
| 면적 |
토지: 9.96㎡ (3.01평)
건물: 19.37㎡ (5.86평)
|
| 현재 위치 | 서울특별시 금천구 서부샛길 714, 지밸리하우스디어반 7층 비708호 |
| 소유자 / 채무자 | 김건회 / 김건회 |
| 채권자 | 주택도시보증공사 |
| 배당종기일 | 2025-10-10 |
감정가
158,000,000
최저가
101,120,000
보증금
10,112,000
입찰 진행 내역
| 회차/구분 | 입찰기일 | 최저매각가격 | 결과 |
|---|---|---|---|
| 1차 (진행) | 2026-01-29 | 158,000,000 | 유찰 |
| 2차 (진행) | 2026-03-19 | 126,400,000 | 유찰 |
| 3차 (진행) | 2026-04-28 | 101,120,000 | |
| 4차 (진행) | 2026-06-10 | 80,896,000 |
임차인 현황
| 임차인명 | 점유여부 | 전입/확정/배당 | 보증금 / 차임 | 예상배당액 | 대항력 |
|---|---|---|---|---|---|
| 고새봄 | 주거용 건물 전부 |
전입: 2021-08-09
확정: 2021-07-12 배당: 2023-08-31 |
168,900,000
월 0
|
0 | 있음 |
| 주택도시보증공사 | 주거용 전부 |
전입: 2021-08-09
확정: 2021-07-12 배당: 2025-09-22 |
168,900,000
월 0
|
0 | 있음 |
매각물건 현황
| 구분 | 순번 | 소재지 | 용도/구조/면적 | 감정가 | 비고 |
|---|---|---|---|---|---|
| 건물 | 15층중 7층 | 19.07.03 | 19.3737㎡(5.86평)[계약14평] / 업무시설(오피스텔) | 63,200,000 | * 개별난방시설 |
현황 및 위치
* 본건은 서울특별시 금천구 가산동 소재 지하철1,7호선 ""가산디지털단지역 11번출구"" 북서측 인근에 위치하며 주위는 아파트형공장, 지식산업센터, 주상용건물, 오피스텔, 근린생활시설 등이 혼재하는 지역으로서 제반주위환경은 보통임. * 본건까지 차량진출입이 가능하며 주위에 노선버스정류장 및 지하철1,7호선인 ""가산디지털단지역"" 등 이 소재하여 대중교통상황은 보통임. * 인접지 및 인접도로와 대체로 등고평탄한 4필지 일단의 부정형의 토지로서, 업무시설(오피스텔) 및 제1,2종 근린생활시설 건부지 등으로 이용중임. * 본건 남서측으로 서부샛길과 접함.
참고사항
* 토지 별도등기 있음
전문가 코멘트
** 토지별도등기는 집합건물(아파트, 오피스텔, 다세대, 근린상가 등 )은 토지에 관한 소유권을 대지권으로 표시하고 건물등기부의 표제부에 등기한 후에 토지등기부는 폐쇠하는 것이 원칙이지만 토지등기부에 제3자의 권리(근저당, 가압류, 지상권 등)를 표시하여야 할 필요가 있는 경우 토지등기부를 유지하고 제3자의 권리를 표시하고 있는 상태를 말하는 것입니다. ** 본 경매물건은 집합건물이지만 토지등기부가 아직 폐쇠되지 않고 존재합니다. 그러나 토지등기 중 의미있는 등기 내용이 없어서 낙찰자에게 부담이 되지 않습니다. ( 근저당은 말소되어 문제 없습니다. 갑구의 신탁등기는 정상적으로 대지권등기된 이후에는 소유권행사에 영향이 없습니다.) 또 건물등기부, 임차인분석에도 하자 없는 물건입니다. ( 대항력 포기 물건입니다. )
등기부 현황
건물
| 순위 | 접수일자 | 권리종류 | 권리자 | 채권금액 | 소멸여부 | 비고 |
|---|---|---|---|---|---|---|
| 1(갑2) | 2021-08-09 | 소유권이전(매매) | 김OO | 0 | 거래가액:168,900,000 | |
| 2(갑3) | 2023-07-13 | 압류 | 국OOOOOOOOO | 0 | 소멸 | 말소기준등기 |
| 3(을1) | 2023-08-31 | 주택임차권(건물 전부) | 고OO | 168,900,000 | 소멸 | 전입:2021.08.09확정:2021.07.12 |
| 4(갑4) | 2025-07-09 | 강제경매 | 주OOOOOOOOOOOOOOOOO | 168,900,000 | 소멸 | 2025타경10624 |
관련 문서 (PDF)
클릭하면 원본 파일이 열립니다