목록으로
최종 업데이트: 2026-04-22 13:21
2025타경30413
춘천지방법원 영월지원 1계(033-371-1106)
부동산
부동산임의경매
결과 대기
진행중
| 소재지 |
-
(강원특별자치도 평창군 봉평면 면온리 799-3)
|
|---|---|
| 물건종류 | 근린주택 |
| 면적 |
토지: 0.00㎡ (0평)
건물: 464.70㎡ (140.57평)
|
| 현재 위치 | 강원특별자치도 평창군 봉평면 면온리 799-3 |
| 소유자 / 채무자 | 진식 외 1명 / 진식 |
| 채권자 | 양수인 케이씨유엔피엘대부 (주)(양도인:송림신협) |
| 배당종기일 | 2025-06-19 |
감정가
892,501,000
최저가
892,501,000
보증금
89,250,100
입찰 진행 내역
| 회차/구분 | 입찰기일 | 최저매각가격 | 결과 |
|---|---|---|---|
| 1차 (진행) | 2026-04-28 | 892,501,000 | |
| 2차 (진행) | 2026-06-09 | 624,751,000 | |
| 3차 (진행) | 2026-07-14 | 437,326,000 | |
| 4차 (진행) | 2026-08-25 | 306,128,000 |
임차인 현황
| 임차인명 | 점유여부 | 전입/확정/배당 | 보증금 / 차임 | 예상배당액 | 대항력 |
|---|---|---|---|---|---|
| 김덕기 | 주거용 건1,2 중 202호 |
전입: 2017-06-16
확정: - 배당: - |
0
월 0
|
0 | 없음 |
| 김호상 | 주거용 방 1칸 |
전입: 2018-03-30
확정: 2025-06-12 배당: 2025-06-12 |
12,000,000
월 0
|
0 | 없음 |
| 박형섭 | 주거용 전부 |
전입: 2019-04-09
확정: 2025-06-12 배당: 2025-06-12 |
10,000,000
월 200,000
|
0 | 없음 |
| 이정숙 | 주거용 전부 |
전입: -
확정: 2025-06-12 배당: 2025-06-12 |
13,000,000
월 100,000
|
0 | - |
| 현종석 | 점포 건4 1층사무소 49.5㎡ |
전입: -
확정: - 배당: 2025-06-16 |
5,000,000
월 0
|
0 | - |
매각물건 현황
| 구분 | 순번 | 소재지 | 용도/구조/면적 | 감정가 | 비고 |
|---|---|---|---|---|---|
| 토지 | 토지 | 1 | 면온리 799-3 / 계획관리지역,지구단위계획구역,상업용지,가축사육제한구역,상대보호구역 | 335 | 524,000원 |
| 토지 | 2 | 면온리 799-7 | 계획관리지역,지구단위계획구역,상업용지,가축사육제한구역,상대보호구역 / 대 182㎡ (55.06평) | 448,000 | 81,536,000원 |
| 토지 | 3 | 면온리 799-22 | 계획관리지역,지구단위계획구역,상업용지,가축사육제한구역,절대보호...계획관리지역,지구단위계획구역,상업용지,가축사육제한구역,절대보호구역,상대보호구역,주거용지 / 대 225㎡ (68.06평) | 448,000 | 100,800,000원 |
| 토지 | 4 | 면온리 799-24 | 계획관리지역,지구단위계획구역,상업용지,가축사육제한구역,상대보호구역 / 대 317㎡ (95.89평) | 524,000 | 166,108,000원 |
| 토지 | 5 | 면온리 799-26 | 계획관리지역,지구단위계획구역,상업용지,가축사육제한구역,절대보호...계획관리지역,지구단위계획구역,상업용지,가축사육제한구역,절대보호구역,상대보호구역,주거용지 / 대 226㎡ (68.37평) | 446,000 | 100,796,000원 |
| 토지 | 6 | 면온리 799-29 | 계획관리지역,지구단위계획구역,상업용지,가축사육제한구역,절대보호...계획관리지역,지구단위계획구역,상업용지,가축사육제한구역,절대보호구역,상대보호구역,주거용지 / 전 93㎡ (28.13평) | 274,000 | 25,482,000원 |
| 토지 | 7 | 면온리 799-42 | 계획관리지역,지구단위계획구역,상업용지,가축사육제한구역,상대보호구역 / 대 60㎡ (18.15평) | 446,000 | 26,760,000원 |
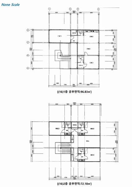
| 건물 | 1 | 태기로 463 [면온리 799-3외 1필지]일반철골조 및 경량철골조 기타지붕 | 1층 / 펜션 | 96 | 637,000원 |
| 2 | 2층 | 펜션 | 72.18㎡(21.83평) / 595,000원 | 42,947,100 | * 사용승인:2001.12.28 |
| 3 | 꿈동산길 8 [면온리 799-22]목조 스레이트지붕 | 단층 | 주택 / 54.8㎡(16.58평) | 487,000 | 26,687,600원 |
| 4 | 태기로 463 [면온리 799-3외 1필지]시멘트벽돌조 스레이트지붕 | 1층 | 근린생활시설 / 73.89㎡(22.35평) | 435,000 | 32,142,150원 |
| 5 | 태기로 463 [면온리 799-24]목조아연지붕 | 단층 | 주택 / 55.1㎡(16.67평) | 390,000 | 21,489,000원 |
| 제시외건물및기타 | 1 | 꿈동산길 8 [면온리 799-22]조적조스라브지붕 | 단층 / 보일러실 등 | 9 | |
| 2 | 태기로 463 [면온리 799-3외 1필지]샷시조 등 2.샷시조, 3.경량철골구조판넬지붕, 4.조적조스레트지붕, 5.판넬조판넬지붕, 6.경량철골구조슁글지붕 | 사무실 일부 / 2.7㎡(0.82평) | 0 | 283,500원 | |
| 3 | 단층 | 차양 | 21㎡(6.35평) / | 2,625,000 | 매각포함 |
| 4 | 단층 | 창고 등 | 5㎡(1.51평) / | 1,125,000 | 매각포함 |
| 5 | 단층 | 창고 | 10.5㎡(3.18평) / | 2,100,000 | 매각포함 |
| 6 | 단층 | 주택 등 | 20.8㎡(6.29평) / 975,000원 | 20,280,000 | 매각포함 |
| 7 | 태기로 463 [면온리 799-24]비계조 강판지붕 등 7.비계조 강판지붕, 8.목조강판지붕, 9.목조, 10.목조강판지붕 | 단층 | 차양 / 20.4㎡(6.17평) | 0 | 816,000원 |
| 8 | 단층 | 창고 등 | 14.2㎡(4.3평) / | 710,000 | 매각포함 |
| 9 | 단층 | 창고 | 1㎡(0.3평) / | 100,000 | 매각포함 |
| 10 | 단층 | 창고 등 | 6.7㎡(2.03평) / | 335,000 | 매각포함 |
현황 및 위치
* 대상물건은 강원특별자치도 평창군 봉평면 면온리 소재"면온초등학교" 서측 인근에 위치하는 토지로서, 주위는 단독주택 및 학교, 근린생활시설 등이 소재하는 지역으로 제반주위 환경은 양호시 됩니다. * 공히 본건까지 차량접근 가능하며 대중교통 이용여건은 버스정류장과의 거리 및 운행빈도 등으로 보아 양호시 됩니다 * 1,3,4) 대체로 평탄한 사다리형 토지로서, 건부지로 이용 중입니다. 2) 대체로 평탄한 사다리형 토지로서, 주거나지 상태입니다. 5,7) 2필 일단의 대체로 평탄하게 조성된 자루형 토지로서, 건부지로 이용 중입니다. 6) 대체로 평탄한 부정형 토지로서, 인도 등으로 이용 중입니다. * 1,4,6) 서측으로 왕복2차선 포장도로가 소재합니다. 5,7) 서측으로 왕복2차선 포장도로가 소재합니다. 2,3) 북측으로 폭 약3~4미터 포장도로가 소재합니다.
참고사항
* 일괄매각 * 제시외 건물 포함 * 토1,4,6) 서측으로 왕복2차선의 포장도로가 소재함 * 토5,7) 서측으로 왕복2차선 포장도로가 소재함 * 토2,3) 북측으로 폭 약 3~4미터 포장도로가 소재함 * 건1,2) 공부상 1층 "1가구", 2층 "3가구"로 기재되어 있으나, 현황은 1층 "3가구(101,102,103호)", 2층 "3가구(201,202,203호)"로 구분되어 있음, 공부상 소재지는 799-3, 799-26 양지상이나 실제는 799-26, 799-42 양지상 소재 건물임 * 토1) 건4의 건물부지임 * 꿈동산길 8-4 [면온리 799-7] 목조 스레이트지붕 단층주택 68.77㎡ 건물은 멸실되었음 * 건3) 공부상 "목조 스레트지붕"이나 현황은 "목조 스레트위 함석지붕"임, 공부상 면적은 68.77㎡이나 현황은 54.8㎡임 * 건5) 공부상 도로명주소는 "태기로 463"이나, 현황은 "태기로 461"임, 공부상 면적은 30.9㎡ 실측현황 55.1㎡임 * 토5) 건1,2의 건물부지임 * 토6) 공부상 전이나 현황은 진입로임 * 토3) 지상에 소재하는 비닐하우스 1동은 매각에서 제외 * 토4) 일부 지상에 임차인 소유로 탐문된 개두릅 약 10주가 소재하므로 참고바람 * 토6)토지 일부가 비포장인도이므로 이점 감안하여 평가하였습니다 * 건4)면온리 799-3 지상소재
전문가 코멘트
☞ 물번이 여러 개인 경우 모든 물건이 매각된 후 배당기일이 지정됩니다. 배당기일 이후 인도명령결정이 가능하므로 임차인의 인도명령결정까지 다소 기간이 소요될 수 있으니 참고하시기 바랍니다.
☞ [농지취득자격증명] 농지를 취득하려는 자는 신청서와 농업경영계획서(주말·체험영농계획서)를 작성하여 농지 소재지를 관할하는 시·구·읍·면장에게서 농지취득자격증명원을 발급받아 매각결정기일 전까지 법원에 제출하여야 하고 미제출 시 보증금이 몰수될 수 있으니 입찰 전 발급 가능 여부를 확인하시기 바랍니다. (정부24시를 통하여 발급 신청도 가능합니다.) ※ 2021.08.17. 개정된 농지법에 따라 농업진흥지역 내 농지의 주말ㆍ체험영농목적 취득을 제한(제6조제2항제3호)하고 있으니 이점 참고하시고 입찰에 참여하시기 바랍니다. ※ 2022.05.18.부터 농지취득 자격심사가 대폭 강화됨으로 증빙서류 추가 및 발급 민원처리 기간이 연장되었으므로 주의하시기 바라며, 농지위원회 심의를 거쳐 농지취득자격증명 발급 여부를 판단하는 경우에는 14일 이내에 발급하도록 되어 있으므로 입찰 전에 미리 해당 행정관서에 농지취득자격증명의 신청도 가능함을 참고하시기 바랍니다.
등기부 현황
건물
| 순위 | 접수일자 | 권리종류 | 권리자 | 채권금액 | 소멸여부 | 비고 |
|---|---|---|---|---|---|---|
| 1(갑5) | 2014-04-16 | 소유권이전(매매) | 진OOOOO | 0 | 각 1/2 | |
| 2(을6) | 2014-04-16 | 근저당 | 케OOOOOOOOOOO | 650,000,000 | 소멸 | 말소기준등기확정채권양도전:송림신용협동조합 |
| 3(갑6) | 2025-03-26 | 임의경매 | 케OOOOOOOOOOO | 509,456,031 | 소멸 | 2025타경30413 |
관련 문서 (PDF)
클릭하면 원본 파일이 열립니다